TRANSCRIBER’S NOTE

Footnote anchors are denoted by [number], and the footnotes have been placed at the end of the paragraph.

The new original cover art included with this eBook is granted to the public domain.

Some minor changes to the text are noted at the end of the book.


SOME FAMOUS BUILDINGS AND
THEIR STORY


SOME FAMOUS BUILDINGS
AND THEIR STORY

Being the results of recent research in
London and elsewhere.

BY
ALFRED W. CLAPHAM, F.S.A.,
AND
WALTER H. GODFREY

Author of
A History of Architecture in London,
The Parish of Chelsea, &c., &c.

ILLUSTRATED BY 108 PHOTOGRAPHS AND ORIGINAL PLANS

TECHNICAL JOURNALS, Ltd.
CAXTON HOUSE, WESTMINSTER, S.W.


PREFACE.

Not the least interesting branch of modern research is that which opens for us new chapters in the history of our own country and shows us the character and ambitions in the lives of our ancestors. The public have long been familiarised with the results of scientific inquiry into the organic structure and the habits of Nature, but the labours of the historian are too often hidden in treatises of too abstruse a form to attract the general reader. And even where an attempt has been made to present these subjects of human interest in a more palatable form we too often have to lament a looseness of expression and an indifference to historical accuracy which defeat every good purpose in view.

It is in the belief that a series of short papers, each embodying some definite contribution to local or national history, may yet be made of real interest to the average reader, that this collection of studies has been compiled. The majority of the articles appeared in the pages of the Architectural Review under the title of “New Light on Old Subjects.” (February, 1911, to March, 1912.) My friend Mr. A. W. Clapham contributes those on the palaces of Nonsuch, Hertford, Havering, and Queenborough, the Tower of London, the Origin of the Domestic Hall, and the monastic buildings of Cockersand; Barking;⁠[1] St. John’s, Clerkenwell;⁠[2] Blackfriars⁠[3] and Whitefriars⁠[4] London. The reader is referred to the publications mentioned in the footnotes for Mr. Clapham’s detailed archæological examination of all the documentary evidences, and a full description of the excavations superintended by him at Barking Abbey.

[1] The Benedictine Abbey of Barking. Transactions , Essex Archæological Society. Vol. XII.

[2] St. John of Jerusalem, Clerkenwell. Transactions , St. Paul’s Ecclesiological Society. Vol. VII. Part 2.

[3] On the topography of the Dominican Priory of London. Archæologia. Vol. LXIII.

[4] Topography of the Carmelite Priory of London. Journal of the British Archæological Association. March, 1910.

Of the remaining papers, I will merely add that they represent for the most part some particular studies in the more general examination of London buildings which I have undertaken. The articles on Chelsea are an amplification of the material prepared for the Survey of that Parish.⁠[5] That on Crosby Hall is the substance of a lecture delivered before the London and Middlesex Archæological Association, soon after the Hall’s reconstruction. The interpretation of the original Specification of Elizabethan date for the erection of the Fortune Theatre was originally undertaken for Mr. William Archer, and the full details as here presented were first published in the Architectural Review . The only paper that deals with a subject outside London is that on Abbot’s Hospital, Guildford, which provides an excuse for a short account of the chief points of interest in the history of English Almshouses and their plans. I am indebted to Mr. Clapham for details of the building dates of Eltham Palace, which are preserved in the Record Office.

[5] “Survey of London.” Vol. IV. Parish of Chelsea, Part 2. London County Council.

Both Mr. Clapham’s and my thanks are due for the kind permission granted us to reproduce old plans and drawings wherever these are in private hands and also for the use of photographs. Care has been taken to acknowledge the source of each drawing in the text, with the names of those who have extended to us their courtesy and help.

WALTER H. GODFREY.

11, Carteret Street,
Queen Anne’s Gate,
S.W.


[Pg vii]

CONTENTS
AND LIST OF ILLUSTRATIONS.

PAGE
I. The Royal Palace of Nonsuch, Surrey 1
1. Nonsuch Palace, Garden Front—Hofnagle 2
2. Nonsuch Palace, from the South—Speed (1611) 7
3. Nonsuch Palace from the N.-W.—Vetusta Monumenta, Vol. ii. (1765) 8
4. The Banqueting House—drawn by Alfred W. Clapham 12
II. The Fortune Theatre, London (1600) 13
5. View of Interior—drawn by Walter H. Godfrey 14
6. Swan Theatre, Bankside—John de Witt 16
7. The Fortune. Plan (ground floor)—by Walter H. Godfrey 19
8. The Fortune. Plan (upper floor)—by Walter H. Godfrey 20
9. The Fortune. Section through Stage—by Walter H. Godfrey 25
10. The Fortune. Section facing Stage—by Walter H. Godfrey 26
III. The Tower of London and its Development 29
11. Chapel of St. John—Photograph Architectural Review 30
12. Plan of Tower and Roman Wall—by Alfred W. Clapham 33
13. Plan of Tower and its Bastions—by Alfred W. Clapham 33
14. Towers on Eastern Wall—Photograph Architectural Review 34
15. Fireplace, Byward Tower—Photograph Architectural Review 39
16. Blount Monument, St. Peter ad Vincula—Photograph Architectural Review 40
17. Pediment with Arms of William III.—Photograph Architectural Review 43
18. The Horse-Armoury—Photograph Architectural Review 44
[viii]IV. The Royal Palace of Eltham 47
19. The Hall from the South—Photograph by F. W. Nunn 48
20. Bridge over Moat. Photograph by F. W. Nunn 53
21. Complete Plan of Palace—drawn by Walter H. Godfrey, from Plans in the Hatfield MSS. and the Record Office 54
22. Interior of Hall—Photograph by H.M. Office of Works 56
23. The Chancellor’s House—Photograph by F. W. Nunn 61
V. The Origin of the Domestic Hall 67
24. The Guildhall, York 68
25. Plans of Halls of Winchester Castle, York Guildhall, and Oakham Castle—drawn by A. W. Clapham 72
26. Plans of Halls of Ashby Castle, Hertford Castle, and Warnford—drawn by A. W. Clapham 73
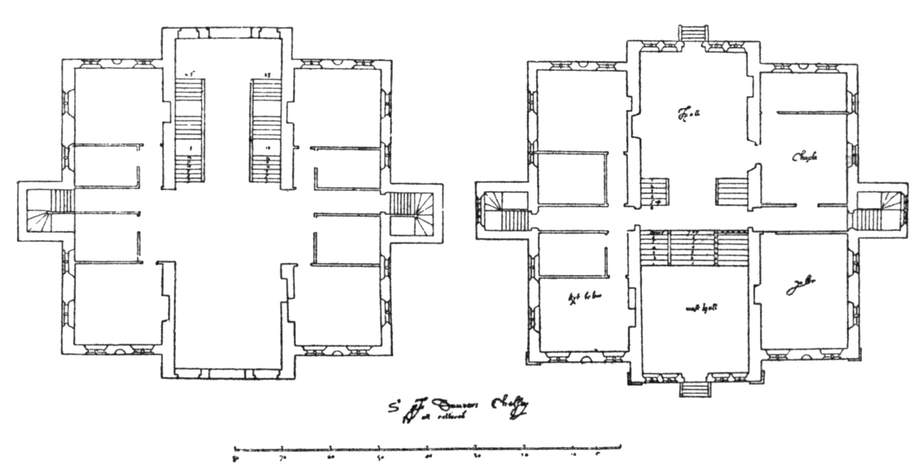
VI. Sir Thomas More’s House at Chelsea 77
27. Sir Thomas More’s Family at Chelsea—by Holbein 78
28. Plan of the House (ground floor)—by J. Symonds (c. 1595) 82
29. Plan of the House (first floor)—by J. Symonds (c. 1595) 83
30. Plan for rebuilding (ground floor)—by Spicer (c. 1595) 86
31. Plan for rebuilding (first floor)—by Spicer (c. 1595) 87
32. Another First Floor Plan—by Spicer (c. 1595) 88
33. Estate Plan (c. 1595) 90
34. Plan of House—by J. Thorpe (c. 1620) 93
35. Key-plan of Estate—by Walter H. Godfrey 95
36. Bird’s-eye View of Chelsea Estate—by Kip (1699) 97
37. Garden of Danvers House—by J. Aubrey 98
38. Plans of Danvers House—by J. Thorpe (c. 1620) 100
39. Elevation of Danvers House—by J. Thorpe (c. 1620) 102
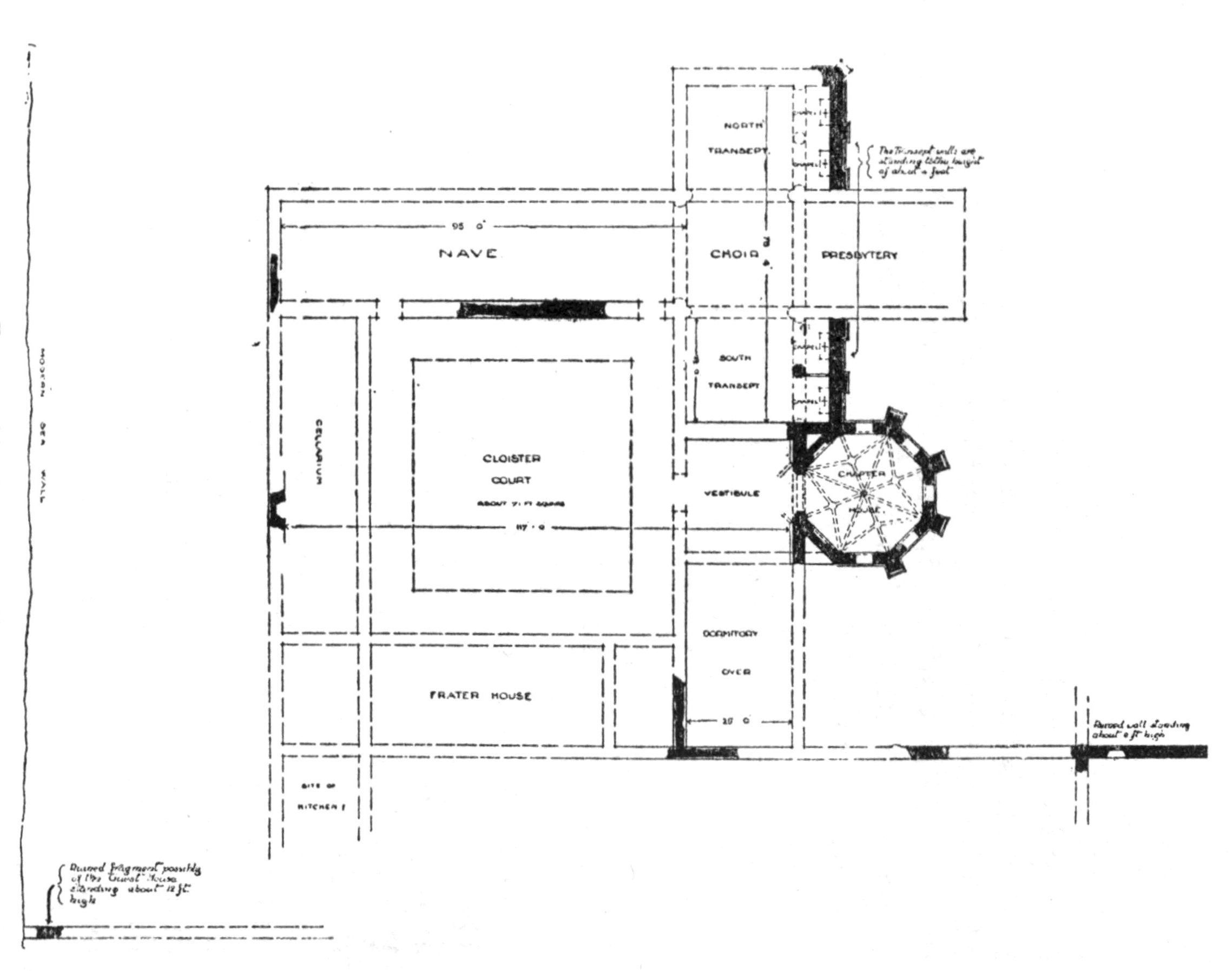
[ix] VII. Cockersand Abbey and its Chapter House 105
40. Interior of Chapter House 106
41. Plan of Abbey—by Alfred W. Clapham 109
42. Pier-capitals in Chapter House 111
43. Exterior from West 112
44. Exterior from East 112
45. Stalls from the Abbey (now in Lancaster) 115
46. Misericorde from Stalls 116
47. Another Misericorde 116
VIII. The Rebuilding of Crosby Hall at Chelsea 119
48. The Roof—Photograph by London News Agency 120
49. Plan of Hall in Bishopsgate—by W. H. Godfrey 121
50. The Hall from the West—Photograph Architectural Review 125
51. Interior of Hall—Photograph Architectural Review 126
52. The Oriel, Exterior—Photograph Architectural Review 129
53. The Oriel, Interior—Photograph Architectural Review 130
54. Vault of Oriel—Photograph Architectural Review 133
55. Detail of Roof and Window—Photograph Architectural Review 134
56. Section through Roof 136
57. Plan of Hall at Chelsea 137
IX. The Palaces of Hertford and Havering 139
58. Gatehouse, Hertford 140
59. Ground Plan, Hertford (Public Record Office) 142
60. Plan of Fortifications—by A. W. Clapham 143
61. Havering, ground plan (British Museum) 148
62. Havering, first floor (Hatfield MSS.) 149
X. The New Exchange in the Strand 151
63. Elevation of Building (c. 1610)—by Smithson 152
64. Durham House and Salisbury House—by Hollar (Pepysian Library, Cambridge) 155
65. Durham House—from Faithorne’s map 156
66. West Central London—from Hollar’s map 156
[x] 67. MS. Plan of Durham House and the New Exchange (1626) 158
68. Plan of New Exchange (c. 1610)—by Smithson 161
69. The New Exchange—by T. Hosmer Shepherd 162
70. Plan of Site of Durham House (Stow’s Survey, Ed. 1720) 162
XI. St. John of Jerusalem, Clerkenwell 165
71. The Monastic Buildings—by Hollar 166
72. Plans showing development of the Church—drawn by A. W. Clapham 169
73. The Crypt looking East—Photograph by H. W. Fincham 170
74. East end of Crypt—Photograph by H. W. Fincham 173
75. South Chapel, Crypt—Photograph by H. W. Fincham 173
76. West front of Church—Photograph by H. W. Fincham 174
77. West door of Church—Photograph by H. W. Fincham 175
78. Fireplace, St. John’s Gate—Photograph by H. W. Fincham 176
XII. Northumberland House, Strand 179
79. North Front (before 1874)—Photograph London Stereoscopic Co. 180
80. Plan in the Smithson Collection 185
81. View from River (c. 1650)—by Hollar 186
82. The same, engraved in Londina Illustrata 191
83. North Front—after Canaletto 192
XIII. The Abbey of Barking, Essex 197
84. Remains of South Transept—Photograph by A. P. Wire 198
85. Plan of the Precinct 202
86. The Curfew Gatehouse—Photograph by A. P. Wire 203
87. The Saxon Cross—Photograph by A. P. Wire 204
88. Plan of Abbey—by A. W. Clapham 207
[xi] XIV. Abbot’s Hospital, Guildford, and its Predecessors 215
89. Front of Hospital 216
90. Plans of Infirmary Types—
Beamsley Hospital, Yorks; St. Mary’s Hospital, Chichester; The Bede House, Higham Ferrers; Browne’s Hospital, Stamford
221
91. Quadrangle, Leicester’s Hospital, Warwick 223
92. Great Chamber, Whitgift Hospital—drawn by W. H. Godfrey 224
93. Leicester’s Hospital, Warwick, Plan 226
94. Leicester’s Hospital—drawn by W. H. Godfrey 227
95. Whitgift Hospital—Plan by W. H. Godfrey 229
96. Abbot’s Hospital, Plan 230
97. Abbot’s Hospital, Courtyard 231
98. Abbot’s Hospital, Lower Hall 232
99. Abbot’s Hospital, Upper Hall 232
100. Abbot’s Hospital, Detail of door—drawn by Sydney A. Newcombe 235
XV. The Friars as Builders—Blackfriars and Whitefriars, London 239
101. Blackfriars, Norwich 240
102. Plan of Austin Friars, London—drawn by A. W. Clapham 249
103. Plan of Greyfriars, London 251
104. Preaching Cross, Blackfriars, Hereford—from Britton 252
105. Blackfriars, London—Plan by A. W. Clapham 254
106. Whitefriars, London—Plan by A. W. Clapham 264
XVI. Queenborough Castle and its Builder, William of Wykeham 269
107. Queenborough Castle—from a Drawing by Hollar 270
108. Queenborough Castle—Plan from the Hatfield MSS. 273

THE ROYAL PALACE OF NONSUCH,
SURREY


Fig. 1.—NONSUCH PALACE, GARDEN FRONT.

Drawn by

Hofnagle.


[3]

I.
THE ROYAL PALACE OF NONSUCH, SURREY.

The wanton destruction of the celebrated palace of Nonsuch, sacrificed to the extravagance and consequent embarrassments of the first Duchess of Cleveland, was probably the heaviest loss which English architecture has suffered since the Dissolution of the Monasteries. As an example of domestic architecture, just at the period of its transition, it was unique in combining in one building the familiar and almost unaltered features of the old English home with the most daring and fantastic ideas of the Italian Renaissance. Any additional information, therefore, which bears upon its character is of special value, not from an archæological so much as from an architectural point of view. Hence the discovery of an entirely new view of Nonsuch Palace is ample excuse for marshalling once again the facts of its architectural history.

The building activity of the first two Tudor kings is a somewhat neglected subject, since nearly all their greatest works have perished and the modern mind refuses to visualise the gorgeous descriptions of the chroniclers, even when illustrated by the somewhat bizarre creations of contemporary artists.

And yet the more the subject is studied the more the conclusion is forced upon one that the old-time historians were guilty of little exaggeration, and that the Tudor palaces were amongst the remarkable buildings of Europe. The Spanish gentlemen who accompanied Phillip II. to England were amazed at the magnificence of the palaces of the English kings, in comparison with which they admitted the Alcazar at Madrid, the residence of Castilian royalty, was a thing of no account.

Henry VII.’s chapel fortunately remains intact as an example of the structure which a Tudor king (otherwise [4]noted for his excessive parsimony) thought suitable for his tomb-house. His palace at Richmond and his great hospital at the Savoy were on a corresponding scale of profusion. With his son Henry VIII. the ideas of the Renaissance were given a freer hand. The father had employed an Italian to design his tomb, and the son, towards the close of his reign, invited Italian architects to design his buildings.

The architectural works of Henry VIII. consist chiefly of a series of palaces, no fewer than five, which he erected in the course of his thirty-eight years’ reign, apart from a number of manorial residences, such as his riverside mansion at Chelsea. Of these palaces, Bridewell, Guisnes, and Nonsuch have entirely vanished, but the gatehouse and other remains at St. James’s exist, and the mutilated remains at Beaulieu, in Essex, are still remarkable.

It is with the latest (in point of date) and in every way the most remarkable of these that we are at present concerned. The palace of Nonsuch achieved a reputation throughout Europe which has never been accorded to any other English building before or since.

Situated on the richly-wooded slopes of the Surrey hills, amongst the fairest prospects in the Home Counties, the ancient manor-house of Cuddington (between Cheam and Ewell) appears to have early attracted the attention of Henry VIII. In 1538 he acquired the manor from Richard de Cuddington, and with a delightfully Tudor directness proceeded at once quietly to remove the church and village and divert the roads, that nothing might interrupt the view from his windows or destroy the symmetry of his house and grounds. The site being thus cleared of its ancient buildings, the new palace was begun.

Many tons of stone quarried at Merstham, in the Reigate hills, were used on the works, and the great priory church at Merton was destroyed piecemeal to provide materials. The accounts still existing for the year 1539 preserve the names of every man employed, from the clerk of works to the labourers and apprentices, some 230 in all.

[5]

Although it had been in progress for nine years, Nonsuch was still incomplete at Henry’s death in 1547, but was nevertheless far enough advanced to be habitable.

The celebrated Sir Thomas Cawarden, Master of the Revels, was warden of the palace and parks of Nonsuch during the final years of Henry VIII. and in the time of Edward VI., but in 1557 Queen Mary granted the building and parks to Henry, Earl of Arundel, and his son-in-law, Lord Lumley, who eventually completed it by adding the outer courtyard.

Under Queen Elizabeth Nonsuch reached its zenith. For many years it was her favourite residence, and after her death it rapidly declined. Sold by the Commonwealth, it reverted to the Crown at the Restoration, and finally came to an ignominious end at the rapacious hands of the Duchess of Cleveland, who destroyed the house and cut up the park into farms.

What is known of the building itself is derived chiefly from the Parliamentary Survey taken in 1650 (which gives a detailed account of the palace and grounds) and from two views—one by Hofnagel (published in Braun and Hohenberg’s “Civitates Orbis Terrarum”) and the other an inset in Speed’s Map of Surrey. Both of these represent the garden or south front of the house, and the appearance of the north front and sides has up to the present time been quite conjectural. I am able, however, to reproduce a third view, taken from the north-west, showing this front and the flank of the building. The original engraving (from a picture then in the possession of Lord Fitzwilliam) was published by the Society of Antiquaries in 1765, with the title “Richmond Palace from the Green.” That this picture is not Richmond, but Nonsuch, is capable of easy proof. The angle-turret on the extreme right at once suggests this, and a careful perusal of the Parliamentary Survey leaves not the slightest doubt on the point. The avenue, the bowling-green, and the two gatehouses, the inner one with its clock-turret, are all fully described, and one can only be [6]surprised that this interesting fact has never before been discovered.

The palace consisted of two main courtyards surrounded by buildings and almost equal in size (the outer 115 ft.⁠[6] by 132 ft., the inner 137 ft. by 116 ft.). The style employed in the first of these presents nothing extraordinary. Built, according to Evelyn, by Lord Lumley, but more probably by his father-in-law, the Earl of Arundel, early in Elizabeth’s reign, it was constructed of stone throughout, with a handsome gatehouse three stories high, with octagonal angle-turrets in the centre of the north front. This gate stood on the axis of the great avenue that led up to the house from the London Road.

[6] The transcript of the Survey in Archæologia , Vol. V., gives this dimension incorrectly as 150 ft., an error copied by all succeeding writers.

Nonsuch had the unusual arrangement amongst English Tudor plans of two gatehouses, the one behind the other. This was probably due to the outer courtyard not having been contemplated in the original design. The inner gate stood between the two courts, and was, with the whole of the buildings behind it, the work of Henry VIII.

The architect appears to have been a Florentine artist named Antonio Toto dell’ Nunziata, upon whom Henry VIII. conferred a patent of denization in 1538. He is referred to by Vasari (Lives of the Painters ), who asserts that he entered the service of the King of England, for whom he executed numerous works, and more especially the principal palace of that monarch, by whom he was very largely remunerated.⁠[7] His name occurs with some frequency in the records of the later years of Henry VIII. He resided in the parish of St. Bride, Fleet Street.

[7] Professor Blomfield throws doubts upon Toto as the author of the design.

Fig. 2.—NONSUCH PALACE, FROM THE SOUTH.

Drawn by

Speed (1611).

Fig. 3.—NONSUCH PALACE, FROM THE NORTH-WEST.

Vetusta Monumenta, Vol. ii. (1765).

In 1544 that much-discussed Italian, John of Padua, makes his appearance as Devizer of the King’s Buildings, and as Nonsuch was the most important then in progress, [9]it is quite possible that he also was employed upon the works.

This first building, the joint product of Italian design and English craftsmanship, was entered from the north by an ascent of eight steps under the inner gatehouse, which is described in the Survey of 1650 as “of free stone three stories high, leaded and turreted in the four corners, in the middle of which gatehouse stands a clock case turreted and leaded all over wherein is placed a clock and bell.” The remarkable appearance of this gate is best shown in Speed’s view, which also shows the charming oriel window (somewhat similar to that at Hengrave Hall, Suffolk) over the inner arch, and the sundial above.

The remainder of the building was two stories high, of which the walls of the ground floor, according to the Survey, were of stone and the upper portions of timber. Externally, however, the garden or south front was of timber construction from the ground up. Facing the privy garden, with its marble fountains, obelisks, and pyramids, this front was flanked by two polygonal turrets five stories high, carried up well above the main building and finished with lead parapets and lanterns with heraldic lions bearing standards, “the king’s beastes” of Tudor documents, on every angle. “These turrets,” says the Survey, “command the prospect and view of both the Parks of Nonsuch and of most of the country round about and are the chief ornament of the whole house of Nonsuch.”

In the centre of the front was a large oriel window, probably to the Presence Chamber, which was on the first floor.

The building was a timber frame, the spaces between the studding being occupied by pargetted panels bearing the celebrated series of “statues, pictures, and other antique forms,” which aroused such universal admiration during the century and a half of their existence.

Nonsuch appears to have been one of the earliest instances of this type of work in England. Le Neve, [10]who saw the house when half destroyed, describes them as done in plaster-work made of rye-dough [sic], very costly. “There are,” says Evelyn, “some mezzorelievos as big as life—the story of ye heathen Gods, emblems, compartments, &c.” On the garden front were represented the labours of Hercules. There is evidence that these reliefs were painted, and to enhance further the richness of the whole design the faces of the half-timber work were covered with gilded scales of lead or slate nailed on, after the fashion still to be seen in many Continental towns.

Apart from the abstract question of taste, it can easily be imagined that a building so adorned must have presented an appearance of extreme sumptuousness, and while it is impossible to regard it quite as a serious essay in architecture, yet as an example of a rare exotic grafted on an alien stem it is of extraordinary interest.

It can only be compared in the history of English art with that lordly pleasure-house which King Henry VIII. erected near Guisnes in the Calais pale on the occasion of the Field of the Cloth of Gold. That a marked similarity existed between the two buildings is evident from the minute description of the Guisnes palace to be found in Hall’s Chronicle.

The existing remains of the palace consist solely of the base of a chalk wall, faced with red brick in Old English bond, some 275 ft. in length and lying at right angles to the great avenue leading from the London Road. In all probability this formed a part of the wall surrounding the privy garden, and the main building lay rather to the north of it, on the axis of the avenue.

Some little distance to the west of the house was a building known as the Banqueting House. It is described in the Parliamentary Survey as “one structure of timber building of quadrangular form pleasantly situated upon the highest part of the said Nonsuch Park commonly called ‘the Banquetting House’ being compassed round [11]with a brick wall the four corners whereof represent four half moons or fortified angles.” The house itself was three stories high, with a lantern above and a balcony placed “for prospect” at each of the four corners.

Considering the material, it is not surprising that it has quite disappeared; but the artificial platform upheld by brick retaining walls is in existence. The “fortified angles” which caught the eye of the Parliamentary Commissioner are still preserved, and, with them, remains of the double flight of stone steps leading up to the entrance.

“The Banquet House” figures largely in Elizabethan literature, though its origin and date of introduction are somewhat obscure. There can be little doubt that it was due to one of those vagaries of fashion, combined with the sixteenth-century passion for the new and strange, which attempted to transplant a custom from its native southern soil to the uncongenial air of England. The fashion once started, however, held its place with remarkable tenacity, and received its final form under the hand of Sir Christopher Wren and his school in the Orangeries at Kensington and Richmond.

The example at Nonsuch is one of the earliest in this country to which a definite date can be assigned. It is mentioned as a completed building in the first year of Edward VI., and consequently must have formed part of the original work of Henry VIII. and his Italian advisers.

A document preserved at Loseley Place contains an inventory of goods received for furnishing the Banqueting House in 1547. They include nine Turkey carpets and one carpet of green satin embroidered upon with sundry of the king’s beasts, antique heads, grapes and birds, &c. Evidently the interior decoration of Nonsuch fell little short of the exterior in magnificence.

One other building deserves a passing mention. “The Standing” in the park was used by Elizabeth as a convenient vantage ground from which to view the hunting. No trace of it remains, but, fortunately, a complete [12]structure of this class is still standing in the Hunting Lodge in Epping Forest, and it too is associated with the name of this queen. The upper stories of the timber framing were left open between the studding or uprights, forming a convenient gallery from which to view the sport.

Fragments of the destroyed palace found their way to Gaynsford Hall, Carshalton, to Durdans by Epsom, and to the vicarage at Ewell; but these houses have since been rebuilt and all the authentic remains of the most remarkable of Tudor buildings lie buried beneath the turf of Nonsuch Park. The archæologist is apt to think that monastic houses and feudal castles are alone worthy of his attention; but the recovery of the ground plan of Nonsuch would be an achievement of even greater architectural value, while its wealth of historic associations places it far above them all in sentimental interest.

—A. W. C.

Fig. 4.—THE BANQUETING HOUSE.

Drawn by

Alfred W. Clapham.


THE FORTUNE THEATRE,
LONDON (1600)


Fig. 5.—VIEW OF INTERIOR.

Drawn by

Walter H. Godfrey.


[15]

II.
THE FORTUNE THEATRE, LONDON.

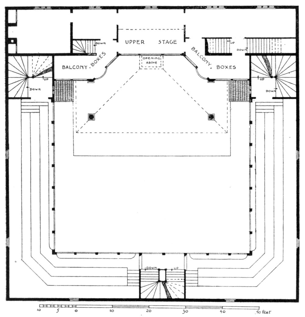
The original contract, dated 1599–1600, for the building of the “Fortune” Theatre was brought under my notice by Mr. William Archer, the well-known author and dramatic critic, to whose friendly criticism and help this article chiefly owes its inspiration. The document is preserved at Dulwich College, and was transcribed by J. O. Halliwell Phillipps in his Outlines of the Life of Shakespeare , and it is from his transcript that the quotations below are taken. Apart from its interest to architects of the present day, as illustrative of building methods of over 300 years ago, the contract has considerable value in the light it throws upon that most controversial of all topics—the form of the Elizabethan stage. It is not my intention here to consider in detail any of the theories heretofore advanced, but I wish in as brief a space as possible to place before the reader just sufficient of the available data to enable him to understand the reconstruction of the Fortune Theatre which has been attempted in the accompanying plans.

The sources from which these data have been drawn fall naturally into two classes. The first, which has as yet by no means been exhausted, although used almost exclusively by the literary critics, is to be found in the internal evidence which the plays of the period afford, partly in their text, but chiefly in their stage directions. The second is to be found in the contemporary evidence of descriptions or drawings made while the theatres still existed, of which the most important are the “Fortune” and “Hope” contracts, the early maps, and the remarkable drawing reproduced here of the interior of the Swan Theatre preserved in the commonplace book of a certain Van Buchell, at the Utrecht University Library, and purporting [16]to be drawn from a sketch by a traveller named Johannes de Witt, who visited London about the year 1600. The interpretation of this latter evidence falls as naturally into the province of the architect as that of the former belongs to the sphere of the literary and dramatic critic.

Fig. 6.—SWAN THEATRE, BANKSIDE.

Drawn by

John de Witt.

Everyone familiar with Visscher’s beautiful drawing of London in the year 1616 will remember seeing in the foreground, on the south side of the Thames, three buildings resembling amphitheatres in form, marked respectively (reading from east to west), the “Globe,” the “Bear [17]Garden,”⁠[8] and the “Swan.” The correctness of the two former inscriptions may very reasonably be questioned, but I do not think there is any ground for doubting the veracity of the drawing, since two theatres existed on Bankside in 1616—the Rose (1592) and the Hope (1614), besides the more celebrated Globe, which lay probably beyond the limit of the map. The Swan is correctly placed, as we know by its position in Paris Garden. But whether depicted or not, the Globe Theatre of 1616 could not be Shakespeare’s Globe, which was erected in 1598–9 and burnt down in 1613, and it is important to bear this in mind in considering the “Fortune” contract, which definitely states that the new theatre is to follow the pattern of the “late erected plaie-howse on the Banck ... called the Globe.” There are many other early maps both anterior and subsequent to Visscher which show the Bankside theatres, but their examination and collation are not as yet sufficiently advanced to give us any trustworthy information, although a valuable step towards this end has already been taken by Dr. William Martin. (Vide Home Counties Magazine , Vol. IX.)

[8] The “Bear Garden” was pulled down in 1613, and the Hope Theatre erected “neere or uppon the saide place where the same game place [the Bear Garden] did heretofore stande.”

Fig. 7.—THE FORTUNE. PLAN (GROUND FLOOR).

Drawn by

Walter H. Godfrey.

The “Fortune” document itself consists of rather more than a mere contract, and possesses somewhat the character of a specification, being not unlike the hasty compromise between the two which has been known to be indulged in even in these days of careful architectural practice. The portion which bears on the actual form of the building reads as follows:⁠—

This Indenture made the eighte daie of Januarye 1599, and in the twoe and fortyth yeare of the reigne of our sovereigne ladie Elizabeth, by the grace of God Queene of England, Fraunce and Irelande, defender of the faythe, &c., betwene Phillipp Henslowe and Edwarde Allen of the parishe of Sainte Saviours in Southwark, in the countie of Surrey, gentlemen, on th’ one parte, and Peeter Streete cittizein and carpenter of London on th’ other parte.——Witnesseth that, whereas the saide Phillipe [18]Henslowe and Edward Allen the daie of the date hereof have bargayned, compounded and agreed with the saide Peter Streete for the erectinge, buildinge, and settinge upp of a newe howse and stadge for a plaie-howse, in and uppon a certeine plott or parcell of grounde appoynted oute for that purpose, Scytuate and beinge nere Goldinge Lane in the parishe of Sainte Giles withoute Cripplegate of London; to be by him the said Peeter Streete, or somme other sufficyent woorkmen of his provideinge and appoyntemente, and att his propper costes and chardges, for the consideracion hereafter in theis presentes expressed, made, erected, builded, and sett upp in manner and forme followeinge; that is to saie, the frame of the saide howse to be sett square, and to conteine fowerscore foote of lawfull assize everye waie square withoute, and fiftie five foote of like assize square everye waie within, with a good suer and stronge foundacion of pyles, bricke, lyme, and sand, bothe withoute and within, to be wroughte one foote of assize att the leiste above the grounde; and the said frame to conteine three stories in heighth, the first or lower storie to conteine twelve foote of lawfull assize in heighth, the seconde storie eleaven foote of lawfull assize in heigth, and the third or upper storie to conteine nyne foote of lawfull assize in height. All which stories shall conteine twelve foote and a half of lawfull assize in breadth throughoute, besides a juttey forwardes in eyther of the saide twoe upper stories of tenne ynches of lawfull assize; with fower convenient divisions for gentlemens roomes, and other sufficient and convenient divisions for twoepennie roomes; with necessarie seates to be placed and sett as well in those roomes as througheoute all the rest of the galleries of the saide howse; and with suche like steares, conveyances and divisions, withoute and within, as are made and contryved in and to the late erected plaie-howse on the Banck, in the saide parishe of Sainte Saviours, called the Globe; with a stadge and tyreinge-howse to be made, erected and sett upp within the saide frame; with a shadowe or cover over the saide stadge; which stadge shal be placed and sett, as alsoe the stearecases of the saide frame, in suche sorte as is prefigured in a plott thereof drawen; and which stadge shall conteine in length fortie and three foote of lawfull assize, and in breadth to extende to the middle of the yarde of the saide howse; the same stadge to be paled in belowe with good stronge and sufficyent newe oken bourdes, and likewise the lower storie of the saide frame withinside, and the same lower storie to be alsoe laide over and fenced with stronge yron pykes; and the saide stadge to be in all other proporcions contryved and fashioned like unto the stadge of the saide plaiehowse called the Globe; with convenient windowes and lightes glazed to the said tyreinge-howse. And the saide frame, stadge, and stearecases to be covered with tyle, and to have sufficient gutter of lead, to carrie and convey the water frome the coveringe of the saide stadge, to fall backwardes. And alsoe all the saide frame and the stairecases thereof to be sufficyently enclosed withoute with lathe, lyme and haire. And the gentlemens roomes and twoepennie roomes to be seeled with lathe, lyme, and haire; and all the flowers of the saide galleries, stories and stadge to be bourded with good and sufficyent newe deale bourdes [21]of the whole thicknes, wheare neede shal be. And the saide howse and other thinges before mencioned to be made and doen, to be in all other contrivitions, conveyances, fashions, thinge and thinges, effected, finished and doen, accordinge to the manner and fashion of the saide howse called the Globe; saveinge only that all the principall and maine postes of the said frame, and stadge forwarde, shal be square and wroughte palasterwise, with carved proporcions called satiers to be placed and sett on the topp of every of the same postes; and saveinge alsoe that the saide Peter Streete shall not be chardged with anie manner of paynteinge in or aboute the saide frame, howse or stadge, or anie parte thereof, nor rendringe the walls within, nor seelinge anie more or other roomes than the gentlemens roomes, twoepennie roomes and stadge, before remembred. Nowe theereuppon the saide Peeter Streete dothe covenaunte, promise and graunte for himself, his executors and administrators, to and with the said Phillipp Henslowe and Edward Allen and either of them, and the ’xecutors and administrators of them, and either of them by theis presentes, in manner and forme followeinge, that is to saie; that he the said Peeter Streete, his executors or assignes, shall and will, at his or their owne propper costes and chardges, well, woorkmanlike and substancyallie make, erect, sett upp and fully finishe in and by all thinges, accordinge to the true meaninge of theis presentes, with good, strong and substancyall newe tymber and other necessarie stuff, all the saide frame and other woorkes whatsoever in and uppon the saide plott or parcell of grounde, beinge not by anie aucthoretie restrayned, and haveinge ingres, egres and regres to doe the same, before the fyve and twentith daie of Julie next commeinge after the date hereof; and shall alsoe, att his or theire like costes and chardges, provide and finde all manner of woorkemen, tymber, joystes, rafters, boordes, dores, boltes, hinges, brick, tyle, lathe, lyme, haire, sand, nailes, leede, iron, glasse, woorkmanshipp and other thinges whatsoever, which shal be needeful, convenyent and necessarie for the saide frame and woorkes and everie parte thereof; and shall alsoe make all the saide frame in every poynte for scantlinges lardger and bigger in assize than the scantlinges of the timber of the saide newe erected howse called the Globe....

Fig. 8.—THE FORTUNE. PLAN (UPPER FLOOR).

Drawn by

Walter H. Godfrey.

The remainder of this interesting document sets forth the conditions under which the contractor is to be paid the sum of £440 “of lawfull money of Englande,” the total cost of the works. In the absence of the “plott” or plan mentioned in the document, we are fortunate in having the main dimensions of the theatre so precisely laid down for us,⁠[9] and it is an easy matter to put them on paper. But [22]beyond these main dimensions of height and area we have really little indication of the arrangement of the stage, or the disposition of the main features of the theatre. We have, therefore, to draw our inferences from other sources, and see that their application does not clash with the terms of the specification.

[9] The “Hope” contract referred to above is a document second only in interest to the one under consideration. Its deficiency, however, in omitting all dimensions, prevents any satisfactory attempt at reconstruction. The theatre was to be built on the model of the Swan, and to be of similar “large compasse, forme, wideness and height.”

It must be first remembered that the prototype of the Elizabethan public theatres was the old galleried innyard, of which London itself possessed some of the finest examples in the land. In these inns the companies of players first gave their performances, and several names of the early theatres are reminiscent of these first associations. The Fortune was, as far as we know, the only theatre that was square on plan like the inns themselves. With the help of their analogy and of our main dimensions we are therefore able to construct the “frame” itself fairly safely, with its three tiers of open galleries supported, towards the “yard,” with posts, “wrought pilaster-wise,” adorned with carved satyrs—if thus we may interpret the description. But how is the yard entered? Various documents bearing on the disputes between proprietors and players regarding the profits of the theatres, make it almost certain that the main body of the public entered at one door into the yard, each person making the same payment, and that those who wished could then proceed to the galleries, where an extra sum was exacted from them by the “gatherers,” who made a circuit of these parts of the house, probably hence described as the “twopennie-rooms.” There was one other door, the “tyring-house door,” or stage door, through which privileged members of the public were also admitted, but whether these went thence to the gentlemen’s rooms in the galleries or whether they were accommodated with seats on the stage itself, is still a matter of much controversy.⁠[10]

[10] These and many other points regarding the Shakespearian Stage have been ably discussed by Mr. W. J. Lawrence in his two volumes entitled The Elizabethan Playhouse and other Studies .

[23]

The staircases themselves are our next difficulty. It is quite clear from the Fortune contract that some of these were within the yard, since their roofs are distinctly specified, but their position must remain the subject of conjecture. I am inclined to think that they would be circular stairs placed in the angles of the yard nearest the entrance, but in the accompanying plan they are shown on each side of the stage, thus making use of a space for which any other purpose is not easily conceived, and obviating the obstruction of view which the first-named positions would entail. For information on this point we naturally turn to the Swan drawing, but meet with some disappointment, for the indication of “ingressus” there appears to suggest an impracticable staircase, unless it were a temporary access from the arena to the first tier of seats. This may be so, as it is known that the Swan was used for wild beast shows as well as theatrical performances, and indeed the whole appearance of the stage and mimorum ædes suggests a temporary or movable character.

So far our task has been comparatively simple, but the stage itself, its “shadow” or roof, and the buildings behind, afford a problem which is far from having been as yet finally solved. I have, however, followed Mr. Archer’s views in these drawings, and must refer the reader to his and Mr. Lawrence’s writings on the subject for more detailed information. The following will indicate the idea in outline.

The contract specifies that the stage is to be 43 ft. wide and to extend to the centre of the yard; it also definitely mentions the “shadowe or cover” which is to be tiled, and provided with a lead gutter brought back to the rear of the stage. This latter direction certainly points to a roof similar to that shown in the “Swan” drawing, and it is reasonable to suppose that in like manner it was supported by independent columns. The lords’ boxes or minstrels’ [24]gallery,⁠[11] in the centre of which is the upper stage, again merely follows Van Buchell’s sketch, which is corroborated by such stage directions as that in Marston’s Antonio’s Revenge (v. 2): “while the measure is dancing, Andrugio’s ghost is placed betwixt the music-houses.” This upper stage fulfilled such separate functions as Juliet’s balcony, Christopher Sly’s point of vantage in The Taming of the Shrew , or the battlements of Angiers in King John . But in the Swan Theatre there is no sign of an “inner” or rear stage beneath this gallery, and it is here that we are bound to fall back upon the literary evidence. I will quote Mr. Archer’s own words. Writing of a book by Dr. Wegener on the subject he says: “Especially as it seems to me, does he establish beyond dispute the fact that Elizabethan dramatists habitually counted on and employed that rear stage which does not appear in the Swan drawing. It served by turns as a bedroom, a cave, a shop, a study, a counting-house, a tomb. It could be curtained off, and Wegener believes that it could also be shut off by folding or sliding doors; but on this point his evidence is scarcely conclusive. That the upper stage was immediately over the rear stage is proved by the situation in Marlowe’s Jew of Malta , in which Barabas is caught in the trap he had planned for Calymath. He says to Ferneze:⁠—

“‘Now as for Calymath and his consorts,
Here have I made a dainty gallery,
The floor whereof, this cable being cut,
Doth fall asunder, so that it doth sink
Into a deep pit past recovery.’”

[11] John Melton, in his Astrologaster: or the Figre Caster (1620), speaking of a visit to “the Fortune in Golding-lane,” says: “There indeed a man may behold shagge-hayr’d deuills runne roaring ouer the stage with squibs in their mouthes, while drummers make thunder in the tyring-house, and the twelve-penny hirelings make artificial lightning in their heauens.”

Ferneze, however, is so shocked by the atrocious plan that he cuts the cable while Barabas, instead of his intended victim, is on the trap door. At the same moment the [27]curtains of the rear stage are opened and a boiling cauldron is revealed, into which Barabas is precipitated. It is manifest that this cauldron must have been on the inner stage. Indeed the evidence for a rear stage is even stronger than Wegener represents it to be. He says that we have no explicit mention of this stage region; forgetting, it would seem, the direction in Greene’s Alphonsus, King of Arragon , ‘Let there be a brazen head set in the middle of the place behind the stage out of which cast flames of fire.’”⁠[12]

[12] Tribune , Aug. 10, 1907.

Fig. 9.—THE FORTUNE. SECTION THROUGH STAGE.

Drawn by

Walter H. Godfrey.

Fig. 10.—THE FORTUNE. SECTION FACING STAGE.

Drawn by

Walter H. Godfrey.

“It is no exaggeration to say that the great majority of plays contain evidence of the use of the rear stage, either as a curtained recess or as an open corridor, supplementing the two doors by providing two additional entrances. In many plays it is alternately a curtained recess and a corridor. The plays are very few in which no use at all seems to have been made of it.”⁠[13]

[13] Tribune , Jan. 11, 1908.

From the body of evidence on this point we must conclude that the Swan drawing does not correctly show the back of the stage; or, as I would suggest, the rear wall as there represented is possibly merely a temporary stage property with its imitation of heavy barred doors, required for the one play, concealing in this exceptional case the more usual inner stage.

This point considered, the remaining arrangements are more or less a matter of detail. It would be quite unnecessary to go into the reasons for the canted side walls, the railing to stage, the planning of tiring-rooms, all of which must be to a great extent a matter of opinion. The existence of one other feature alone is incontestable—it is the turret from which the trumpeter gave the signal to the people without that the play was about to commence. It appears clearly in the “Swan” sketch, and also on nearly every external indication of the theatres in the early maps, where it rises from the encircling roof, being made the [28]more conspicuous by the flag which bore the symbol of the theatre’s name. In some drawings there appear to be three turrets, but two of these are probably the terminal finish to the staircases. As it rose above the stage of Shakespeare and the galleried courtyard with its Elizabethan audience, this timber turret crowned with picturesqueness a scene only second in dramatic interest to the ancient hillside theatre of Athens, which nursed the Hellenic drama—a drama unfolded in like manner beneath the open sky and the inspiring light of the sun.

—W. H. G.


THE TOWER OF LONDON AND ITS
DEVELOPMENT [30]


Fig. 11.—CHAPEL OF ST. JOHN.

Photograph by

Architectural Review.


[31]

III.
THE TOWER OF LONDON AND ITS DEVELOPMENT.

Most of the great capitals of modern Europe are cities of comparatively recent growth and importance. Berlin, Madrid, The Hague, and St. Petersburg fill little or no space in the mediæval history of their respective states, while Vienna and Brussels have been promoted from a humbler position. Rome, London, Paris, and Lisbon may, however, claim that exalted status which accrues only to the city that has been for centuries the centre of the national life. Such a position inevitably leaves its mark on the civic architecture, which, however, has been too often expunged and obliterated by the varying fashions and fortunes of more modern times. Thus it happens that London devastated by the great fire, Lisbon by the earthquake, and Paris, to a less extent, by the revolutionary changes of recent times, retain comparatively few of the concrete monuments of their great past, and even Rome herself is a memorial rather of the Renaissance than of the Middle Age. It is not surprising, then, that in the great palatine fortress of the Tower, London possesses a building, standing as it does largely intact, which is almost without a parallel amongst the European capitals. The mediæval military architecture of England generally can hardly be said to approach, far less to rival, that of the Continent, for the more settled condition and greater cohesion of the English state rendered these huge defensive works unnecessary. Scores of English castles have no recorded siege, and comparatively few of the English towns, save those on the Scotch and Welsh borders and on the coast towards France, were defended by walls. Nevertheless the fortress projected by the Conqueror and built by his successor is perhaps the most important example of military architecture which the country affords, and an attempt to explain its origin and growth will not be without interest.

[32]

The Norman Conquest found London defended on the landward side by its Roman walls, repaired in Saxon times, and by the remains of the wall, also of Roman date, along the river front. These walls were protected at intervals by semi-circular bastions more or less regularly spaced, the positions of many of which are shown on Ogilby and Morgan’s survey of the city taken in 1677. The south-eastern angle of the area thus enclosed was the site chosen by the early Norman kings for their new fortress, which was to overawe and keep in check the London citizens. It has long been a matter for some surprise that, with the exception of the White Tower or Keep and the basement of the Wakefield Tower, no trace of Norman work exists in any other part of the fortress, all the remaining towers and walls being of more recent date. The explanation of the circumstance which I here offer appears to me, from its very simplicity, to contain all the elements of probability.

Fig. 12.—PLAN OF TOWER AND ROMAN WALL.

Drawn by

Alfred W. Clapham.

Fig. 13.—PLAN OF TOWER AND ITS BASTIONS.

Drawn by

Alfred W. Clapham.

Fig. 14.—TOWERS ON EASTERN WALL.

Photograph by

Architectural Review.

At the date of the building of the White Tower the Roman wall at this angle was probably standing intact, and the Norman builders determined to incorporate a portion of it in the defences of the castle. The course of the Roman wall on the east side of the city is well known, but the position of the southern or river front has been the subject of much conjecture. The existing evidence is, however, in my opinion, sufficient to establish this, at any rate with regard to the south-east angle. The mediæval building known as the Wardrobe Tower, of which a portion still remains standing, has been proved to stand on the base of a Roman bastion. The line of the still existing city wall between Aldgate and the Tower Ditch when produced southwards exactly strikes this point, and a portion of its base adjoining the tower has been uncovered. The lines of this fragment, however, prove that from here the wall turned slightly and headed in a direct line for the centre of the modern Lanthorn Tower, which stands partly on the foundations of its predecessor destroyed in the eighteenth century. From this there seems little doubt that the Lanthorn, like the [35]Wardrobe Tower, was built on the base of a Roman bastion. Now, the bastions to the north and south of Aldgate shown on Ogilby’s map of London are spaced about 200 ft. apart, which is approximately the distance between the Wardrobe and Lanthorn Towers. The wall must of necessity have turned at this point, and the same dimension set off on a line running parallel to the river gives the positions in succession of the Wakefield, the Bell, and the northern bastion of the Middle Tower. It seems, then, almost more than probable that we have here the river line of the Roman wall and the position of the first four bastions on its southern face. It may be further noted that all four towers are in perfect alignment, and that each of them is or was of circular form. The Norman builders probably found some of these towers still standing with the wall between them, and constructed their Keep as near as possible to the eastern line, without disturbing it, and leaving a considerable space on the south side between it and the southern wall. By this proceeding they obtained a bailey ready made enclosed on the north by the Keep and on the east and south by the Roman wall and the bastions which later became the Wardrobe, Lanthorn, and Wakefield Towers. All that was needed to complete the defences was a protection on the western side, and this was temporarily provided by a wooden stockade, the remains of which were brought to light some years ago. Subsequently a great gatehouse, called “Coldharbour,” and a strong curtain were erected on its site. These buildings formed the whole extent of the early castle, which was probably isolated by the destruction of a portion of the city wall immediately outside its limits. There is no evidence that its defences included either a fosse or mound, and thus two of the most characteristic features of Norman castle-building were absent.

It may seem improbable that buildings still standing in the twentieth century should have retained the exact positions, through successive rebuildings, of their Roman predecessors; but the more one studies the features of [36]London topography the more one is struck by the extraordinary persistence of ancient building lines. To mention two instances only: the modern warehouse on the site of the old Barbers’ Hall in Monkwell Street reproduces exactly the lines of the Roman bastion which formed its western termination, and the Apothecaries’ Hall in Blackfriars represents exactly, in position and dimensions, the hall of the guest-house where the Emperor Charles V. lodged during his visit to London in 1522.

The great Keep of the Tower of London, in spite of the unfortunate repairs and alterations of Sir Christopher Wren, must always remain amongst the finest examples of its class in the country. If it does not cover so much ground as Colchester, and is less lofty than Rochester, it possesses, in the Chapel of St. John, a feature which is unapproached by any other Norman keep in the country; and here, fortunately, the structure has been left largely in its original state. The chapel at Colchester, which occupies the same relative position, is also apsidal, but at the Tower alone is found the encircling ambulatory and the aisled nave. In the stages beneath the chapel are two crypts, the lower a gloomy vault, with massive walls and barrel roof, which carries the mind back irresistibly to the early days of Norman rule. The many writers on the Tower have found themselves unable to identify the original entrance to the Keep, but once the early arrangement of the castle is understood its position becomes quite obvious. In the western bay on the south side, at the first-floor level, is a large arched opening with a small niche cut in the thickness of the wall on either side; this, now fitted with a modern window, is the original door. It was approached by an external and probably roofed staircase from the bailey, all trace of which is now lost. A similar arrangement is found in most of the existing keep-towers of this period, the examples at Newcastle and Rising (Norfolk) being perhaps the best preserved.

The first great enlargement of the Tower probably took place in the latter half of the twelfth century, when the great [37]ditch was begun, and the western half of the inner circle of fortifications projected, which eventually transformed the castle from the early keep-and-bailey type to the concentric form which it afterwards assumed. Here again the position of the Roman city wall appears to have played a part, for this enlargement consisted of that part only of the later fortress which was within its limits, bounded outwardly by the Bell, Devereux, and Bowyer Towers. The great ditch was begun by Longchamp, Bishop of Ely and regent of the kingdom during the absence of Richard I.; but the buildings—the curtain with its towers—appear to be of slightly later date. It is evident from the remarks of Fitzstephen (temp. Henry II.) that at this date the southern wall of the city was in great part undermined and castdown by the action of the tides, and consequently the Bell Tower, though on its line, presents no more ancient features above ground than the time of John. It is, however, an exceedingly massive work, being built solid for a considerable height, and may well incorporate in its base the remains of a Roman bastion.

The line of the inner circle of defence was completed under Henry III., when the eastern half, without the ancient city wall, was added, bounded by the Martin, Salt, and the intermediate towers. Most of the existing towers were rebuilt under this king, with the exception of those already noted, but many have been marred by nineteenth-century restoration, and the Flint, Brick, and Constable’s Towers have been almost entirely rebuilt. It may be noted (if our theory be correct) that where the position of these towers was not determined by the pre-existence of the Roman works they are spaced much closer together. The first of the later towers on the east, the Salt, is comparatively close to the Lanthorn, and the straight line of the southern Roman wall is at once abandoned when nothing in the shape of old foundations could assist the thirteenth-century builder.

King Henry III. was also responsible for the second and outer line of fortifications, and for the construction of the [38]Tower Wharf. The former is on the east, north, and west sides, little more than a revetment to the great ditch. It is pierced, however, with loops, and two sally-ports are observable on the north front. On the river front this line also was defended by towers, which include the great water-gate called St. Thomas’s Tower.

There is little doubt that a great hall of timber existed in the inner bailey in Norman times, but it was not until the thirteenth century that the hall of stone was erected against its southern curtain. This building has now entirely disappeared, and even in Elizabethan times it was in a ruinous state. It abutted on the west against the Wakefield Tower, and an idea of its appearance is given in the well-known fifteenth-century view of the Tower. The upper stage of the Wakefield Tower was rebuilt with it, and communicated by a short passage with the dais end, forming a feature corresponding in some respects to the oriel of purely domestic work. The deep embrasure of the eastern window forms a small oratory—one of the many that the Tower formerly contained.

One of the most remarkable features of the fortress is the elaborate system of defences guarding the entrance from the outside world. To reach the Keep from Tower Hill it was necessary to pass through no fewer than six gatehouses—the Bulwark and Lion Gates, the Middle and Byward Towers, the Bloody Tower, and Coldharbour. The other entrances included two water-gates, and a small postern and bridge on the eastern side, protected by the Irongate and Develin Towers.

To Henry VIII. must be assigned the final important changes to the building—the construction of the two great bastions on the north face, now called Legge’s and Brass Mount. They appear in a view of Edward VI.’s coronation procession, and can hardly be earlier than his father’s time. The Lions’ Tower, now vanished, was a work of similar character, so called from the small zoological collection kept there by the later kings.

[39]

Fig. 15.—FIREPLACE, BYWARD TOWER.

Photograph by

Architectural Review.

[40]

Fig. 16.—BLOUNT MONUMENT, ST. PETER AD VINCULA.

Photograph by

Architectural Review.

[41]

Turning now, more particularly, to the architectural part of our subject, it will be found that the towers on the inner and outer circuit, which have not been rebuilt, present an infinite variety of form and construction, and each of them retains some feature of interest. The Bell Tower, besides its early vaulting, possesses a charming early eighteenth-century bell-cote; the fifth gatehouse, called the Bloody Tower, has remains of a richly-ribbed vault of the fifteenth century and a massive portcullis of timber still in working order. The great water-gate, called St. Thomas’s Tower or the Traitor’s Gate, has its little hexagonal vaulted oratory, while the water-gate of the Palace, called, for some reason unknown, the Cradle Tower, is, where unrestored, an excellent example of fourteenth-century work with a graceful vault springing from embattled corbels. The Salt Tower contains an original thirteenth-century fireplace with a massive stone hood and a curious joggled arch; the Well Tower, though small, contains an early vault; and the Martin Tower, with its eighteenth-century patchwork, has an appearance equally picturesque and venerable. The Devereux Tower adjoins a large Tudor casemate of brick, and the Beauchamp is well known for the tragic list of noble names cut upon its walls of those whom ambition or misfortune led to their final resting place in the little chapel near by.

The two outer gatehouses, called respectively the Middle and Byward Towers, are worthy of careful study. Both are of similar form—an entrance flanked by two circular bastions, the ground floors of which have groined and ribbed vaults of the fourteenth century. In addition to this the Byward Tower contains a fine early fireplace with a stone hood not unlike that in the Salt Tower, but rather more ornate. The inner face of this tower was transformed in Tudor times into a dwelling-house, and its half-timber walls and mullioned windows are still intact. Another example of Tudor domestic work is to be found in “The King’s House,” the lodging of the Lieutenant of the Tower. A succession of [42]picturesque gables with enriched bargeboards looks on to the green, made pleasant in summer by a number of trees—a scene of peace and retirement which needs the ominous presence of the two Tower ravens to recall the fact that this was the place of private execution.

Not the least interesting building in the Tower is the Chapel of St. Peter ad Vincula. Quite apart from the overwhelming associations of the place that enshrines the bones of queens and would-be kings, the victims of Tudor despotism or Stuart spite, there is sufficient in the building to demand attention on its architectural merit alone. One monument, that of the Blounts, father and son, is of quite unusual excellence. The mouldings and enrichments, and especially the carved masks which ornament the frieze, are of almost Italian delicacy and charm, while the pomp of heraldry in the many quartered shields adds considerably to the richness of the design. The armed alabaster effigy of Sir Richard Cholmeley, Lieutenant of the Tower under Henry VIII., stands near by, and is an excellent example of the period.

Two buildings of considerable merit were erected within the precincts during the second half of the seventeenth century. The earliest in date is the horse-armoury built by Sir Christopher Wren, and reputed to be his first work in London. It still stands against the inner eastern wall between the Salt and Broad-Arrow Towers, and while marked by a suitable simplicity of design its proportions with the roof brought out over a broad projecting cornice are admirable.

The Great Armoury, begun under James II., and completed in the time of his successor, occupied the site of the modern barracks. It was a large building with projecting wings, and an enriched façade with a sculptured pediment in the centre. It was unfortunately destroyed by fire in 1841, and nothing was saved with the exception of the carved pediment adorned with the arms of William III., now built into a wall on the eastern side of the Tower.

[43]

Fig. 17.—PEDIMENT WITH ARMS OF WILLIAM III.

Photograph by

Architectural Review.

[44]

Fig. 18.—THE HORSE-ARMOURY.

Photograph by

Architectural Review.

[45]

The modern history of the Tower is a long record of destruction and misguided restoration, and its position has sunk to the level of a show. To the average Londoner it ranks with the Zoo and the waxworks, and he regards a visit to the Tower as one of those childish things which he has long put away.

—A. W. C.


THE ROYAL PALACE
OF ELTHAM


Fig. 19.—THE HALL FROM THE SOUTH.

Photograph by

F. W. Nunn.


[49]

IV.
THE ROYAL PALACE OF ELTHAM.

If Eltham Palace were not overshadowed by the close proximity of London it would undoubtedly receive a greater share of public attention, and the lordly buildings that were for long the favourite resort of our kings would, if situated in a more distant county, attract as many visitors as numerous less interesting buildings receive as a matter of course year by year. Eltham, once a fair village of Kent, is now becoming rapidly swallowed up in the ever-widening geographical expression “the suburbs of London,” and in that unsympathetic atmosphere it is almost as completely buried as is Pompeii beneath the dust and lava of a volcano, or Dunwich beneath the waters of the North Sea. Yet the remains of the royal buildings are not only exceedingly beautiful, but are of extraordinary interest as representing a palace which must have been one of the largest and most elaborate of the mediæval period. Its moat enclosed a building averaging 340 ft. by 300 ft. in area, and the total length of the courts of the palace probably approached 1,000 ft., with a width of from four to five hundred. This rivals Hampton Court, which is 720 ft. by 400 ft., and is not insignificant even when compared with the great scheme of Inigo Jones for Whitehall, which was to have measured 1,200 ft. by 900 ft.

A most remarkable plan of the whole of the apartments within the circumference of the moat has just come under my notice, preserved among the many treasures in the Hatfield papers, and with Lord Salisbury’s kind permission I have used it in preparing the plan on pages 54–55. The original drawing is in outline, and is endorsed “Eltham House,” the second word being in Lord Burghley’s handwriting. In the Public Record Office (State Papers Domestic, Elizabeth, Vol. 234, No. 78) is a plan of [50]the outer courtyard of offices, beyond the moat, of which Hasted publishes a reproduction and Mr. Gregory⁠[14] includes a copy, apparently from an engraving, in his book. This plan, which has puzzled many earlier writers, including Pugin (who in spite of the explicit wording seems to have supposed it to be of the main court and was surprised at the absence of the hall), is signed by John Thorpe, and has the date 1590, in pencil, on the back. The plan at Hatfield is unsigned, but is to the same scale (20 ft. to the inch), and may well have been also the work of Thorpe, although it is executed with much greater care than the plan of the offices in the State Papers. Together the two plans give us the whole extent of the palace and the buildings within its precincts. (See pp. 54 and 55.)

[14] The Story of Royal Eltham , by R. R. C. Gregory.

The site at Eltham has never been properly investigated, and the field is open for a very considerable amount of work in verifying or correcting these plans and identifying the positions of the buildings shown thereon. In presenting, therefore, the general arrangement as outlined on the existing manuscripts I intend to do no more than introduce the subject and place one or two considerations at the disposal of those who may complete the work. By the courtesy of Mr. R. R. C. Gregory and Mr. F. W. Nunn I am permitted to reproduce some interesting photographs which were specially taken for the former’s book on Eltham, showing a few of the remains as they stand at the present day.

Although the two plans are full of detail, and evidently drawn with great care, they share with practically all ancient plans a certain inaccuracy which is often very puzzling. There can be no doubt at all about the competence of the surveyors of the Elizabethan period to make perfectly accurate drawings, and their draughtsmanship is surprisingly similar to that of the present day, showing moreover a care which is often above the modern [51]average. Yet they fail us repeatedly, wherever enough of the old work remains to test their accuracy, and their errors are apparently so needless that we are quite at a loss to account for them. Not a little controversy has been waged over the collection of Thorpe’s drawings in the Soane Museum on this very point, and while the draughtsman has incurred serious blame, and much scepticism has been aroused as to the genuineness of the plans, the problem has been left unsolved, and one continues to find at least as much evidence to corroborate as to confute their author. Perhaps if the architect of the present day would reflect upon his own experience he would find less to surprise him in the work of his sixteenth-century predecessor. It is not a rare but a frequent occurrence, even in these days of accurate instruments and multiplied facilities for drawing, to meet with plans that are hastily drawn and inaccurately set down. The surveyor has often to make a rapid survey; he occasionally misreads his own notes and figures; a few important dimensions are sometimes omitted, and when the drawing is made at some distance from the site a little guesswork intrudes; and so much is this so that even official surveys—though absolutely trustworthy for their own purposes—are found to have their percentage of mistakes. But if these lapses occur in finished plans, how numerous are the errors in unfinished drafts or sketch-plans which are made for general purposes only! And who is to say, when we come upon an old drawing, often accidentally preserved in a parcel of MSS., that this is merely a first sketch—a rough draft of which the corrected version has long ago perished? These considerations, I submit, should make us less ready to blame the draughtsman, but at the same time will prepare us for a greater vigilance in checking his work and taking his evidence with the greatest caution.

The plan of the palace proper at Eltham, comprising the buildings within the moat, is, as far as one can judge, very fairly accurate. The foundations of the outside line [52]of fortifications still exist, and correspond in the main to those shown. This outer wall is apparently of sixteenth-century date, and is not unlikely to have been partly the work of Queen Elizabeth. It formed on three sides a broad terrace between the moat and Bishop Bec’s original walls. That the palace was first fortified by Bec⁠[15] is made extremely likely by the general resemblance of the plan to his castle at Somerton, where the area enclosed by the moat has a square plan similar to that of Eltham, with one side lengthened in the same manner, making one of the angles less and one more than a right angle.

[15] Pugin gives the following note: “Somerton Castle in Lincolnshire built also by Anthony Beke, was of a quadrangle plan with four polygonal towers at the corners, and was encompassed by very strong banks and deep moats beyond the walls.” Robert de Graystanes, an ancient historian of the Church of Durham, in his account of Bishop Bec’s works, says: “Castrum de Somerton juxta Lincoln, et manerium de Eltham juxta London, curiosissime ædificavit; sed primum regi et secundum reginae postea contulit” (Anglia Sacra i. 755).

The three principal towers at the angles and the one in the centre of the south front are probably his work. The last-named tower evidently guarded the south entrance, and it may have been the remains of this that have been spoken of as “castle-like” in earlier descriptions of the ruins. Some later hand probably inserted the fireplaces in these towers.

A reference to the large-scale Ordnance map will show how accurately the fortifications follow the line of the Elizabethan plan. The view of the palace and moat published by Samuel and Nathaniel Buck in 1735, of which there is a copy in the King’s Library (British Museum), shows the north-east part of this wall fairly intact, and the eastern bastion raised like a tower and covered with a shaped lead roof resembling a cupola. It is probable that most of the building shown by Buck upon the outer walls was erected after the palace was despoiled, and the roofed bastion is not unlikely to have been but an eighteenth-century summer-house, the work perhaps of one of the line of Sir John Shaw.

[53]

Fig. 20.—BRIDGE OVER MOAT.

Photograph by

F. W. Nunn.

[55]

Fig. 21.—COMPLETE PLAN OF PALACE.

Drawn by

Walter H. Godfrey.

[56]

Fig. 22.—INTERIOR OF HALL.

Photograph by

H.M. Office of Works.

[57]

The western line of the outer wall is overhung by buildings evidently of the Tudor period, and the fine range of bay windows shown on the Elizabethan plan is borne out in all but a few minor particulars by existing foundations. Further than this, a large portion of the main block of buildings that crosses the fortified area from west to east is here to corroborate the survey, and the great hall with its apartments to the east is found upon the precise line indicated on the drawing. The hall itself is correctly shown, except for the position of one buttress and an adjoining piece of brickwork, and the beautiful fifteenth-century bridge adds valuable evidence supporting the plan.

Of the things revealed by this plan, none will prove of greater interest than the beautiful chapel which, to gain its right orientation, was placed so picturesquely across the great courtyard.

In the Parliamentary Survey of Eltham in 1649 the “fair chapel” is mentioned first in the list of royal apartments, before the hall itself, and in this document we come upon a little bit of unexpected news regarding London. Sir Theodore Mayerne, formerly physician to James I.—he was seventy-six years of age at the time of the survey—is found to be ranger of the park at a salary of £6 1s. 8d., paid from the customs of the Port of London. The survey tells us, however, that he no longer resided at Eltham, but at his house at “Chelsey,” thus confirming the tradition that it was he who originally built the only one of Chelsea’s old palaces that remains—the house which, rebuilt by the Earls of Lindsey, still stands, although divided into several dwellings, overlooking the Thames, just west of Battersea Bridge.

This survey goes on to relate that, beside the fair chapel and great hall, there were forty-six rooms and offices on the ground floor, with two large cellars; and on the upper floor, seventeen lodging rooms on the king’s side, twelve on the queen’s side, and nine on the prince’s side,—in all thirty-eight. Further research would no doubt identify [58]the position of these three suites of apartments, which are not, of course, evident on a plan of the ground floor. The survey mentions the outer “green court” with its thirty-five “bayes of building” on three sides, which contained the offices to which we refer below.

It appears from the building accounts of the reign of Henry VI. that the chapel was being completed in his reign, as mention is made of the construction of a screen and of the two staircases to the gallery above. But the “fair chapel” of the Parliamentary Survey, shown on the Hatfield plan, was the work of Henry VIII. The accounts still exist of the taking down of the old chapel, and of its rebuilding by Henry some twelve feet nearer to the hall. The very massive wall standing west of the chapel on the plan probably marks the position of the western end of the former building. Henry VIII. has left detailed directions as to the erection and furnishing of this chapel, which must have been one of the most beautiful buildings of its time.

The accounts also fix the date of the great hall, which has so far been only conjectural. One of the fortnightly returns of expenditure when the roof was being framed together is headed “Coste and expence don upon the bildying of the newe Halle wytn the manor of Elthm in the charge of James Hatefeld from Sonday the xixth day of Septembr the xixth yer of the reigne of our Sovreign lord King Edward the iiijth unto Sonday the iiid of Octobr the yer aforeseid.” The wages of the freemasons, hardhewers, carpenters (including chief warden and underwarden) plumbers, smythes, labourers, and clerke are all given. We also learn that thirty great iron “spykynggs” for the roof were bought, such, no doubt, as were found in the framework of the roof of Crosby Hall, and ten great “clampes of yron for the bynddyng of the princyples.” Moreover there is a note of six loads of “Raygatestone” at four shillings a load, the same stone employed at Crosby Hall, commonly known as Reigate firestone. In all £140 13s. 6d. was spent in the fortnight.

[59]

From this it appears that Crosby Hall, built in 1466, was started some ten years or more before the hall of Eltham Palace; and yet the former is of much later character in almost all its details, and particularly in its panelled roof. The royal palace evidently clung to the traditional methods of design, and they were certainly capable of a more magnificent effect. It will be seen that the octagonal hearth, about which there has been much conjecture, is shown clearly in the plan in front of the throne.

The fame of Eltham will ultimately rest upon the exquisite beauty of this great hall with its timbered roof, heavily moulded and adorned with finely shaped pendants, its two rectangular bay or oriel windows with their elaborate vaulting and the splendid range of windows along both sides, which set the scale and still enrich the design in spite of mutilation and decay. All these have been happily recorded with infinite care and loving detail by Pugin, in the seven plates which form almost the best work in his Examples of Gothic Architecture (Vol. I.).

We are reminded by Mr. Arthur Stratton, in his notice of the hall roof at Eltham, in The Domestic Architecture of England during the Tudor Period , of an interesting point regarding the oak pendants. Pugin, in the description which accompanied his drawings, quotes Mr. J. C. Buckler’s book on Eltham to the effect that the long shafts of the pendants, above the moulded drops, were originally surrounded by delicate carved tracery, one example of which he measured and recorded before it fell from the roof. The present bareness of the pendants has often been noticed, and we are glad to see that Mr. Stratton has included a copy of Buckler’s sketch in his work, Pugin having merely shown it in dotted lines around his own detail of the roof. There is little doubt that the mediæval carpenter regarded the timber roof as the highest subject on which to exercise his skill, and both in vigour of design and delicacy in carving and modelling his efforts at Eltham met with wonderful success.

[60]

There has been much discussion as to the existence of one or more courts on the south side of the hall, and the plan seems to show that the space was gradually utilised for extensions of the kitchens and offices, since considerable capacity was required from the royal custom of keeping Christmas at Eltham. The outbuildings which are nearest the hall were in all probability but single-story erections, and may have been late in date.

The survey of the green or outer court gives greater difficulty. All evidence of the courtyard has disappeared; its gatehouse has gone, and what must have been a superbly picturesque approach to the palace, with its timbered buildings on either side as it widened towards the moat, is now a curtailed strip of greensward, occupied by lofty trees, and traversed by a road which yet retains some reminiscence of its ancient purpose in its name—“The Courtyard.” The only definite clue to the site is a range of private houses along its western side, which chiefly date from the eighteenth century, but of which the southern end is without doubt much older, and is happily identical in plan with the building described by John Thorpe as “My Lord Chancellor his Lodgings.” The house is a most charming weatherboarded building with the upper floor overhung, and has a fine stack of chimneys. Its southern end projects into the courtyard and has a large timber gable which overshadows a square bay-window below. The building is at present divided into two houses, but Thorpe’s plan shows how complete an example it was of the moderate-sized dwelling of the period. Its hall was approached by the usual porch and screen, and had the accustomed oriel window and fireplace. At the upper end was a private room or parlour, and behind the screen was a larger room—the great chamber, whose square bay-window overlooked the courtyard. From the screen again access was obtained to the kitchen (which has disappeared, but is clearly shown on the plan) and to the wooden newel staircase that still exists, furnishing an excellent example of its type.

[61]

Fig. 23.—THE CHANCELLOR’S HOUSE.

Photograph by

F. W. Nunn.

[63]

The houses to the north of the Chancellor’s Lodging continue the frontage line, and appear to occupy the site of the rooms marked “Buttery” and “Spicery” on Thorpe’s plan. If this is so, we have the west side of our courtyard definitely marked out for us. The initial difficulty, however, is that Thorpe has marked his western range at a different angle to the moat, and the direction of his bridge does not correspond with its relative position to the timber buildings. But too much importance must not be attached to this, as the moat has been apparently sketched in without the intention of placing it in its proper position. A more serious matter is, that if the old plan be placed so that the west side coincides with the existing buildings, then the southern end of the eastern range trespasses on the area of the moat as shown in the Hatfield plan of the main part of the palace. Here, again, the draughtsman may simply have drawn the two sides of the moat parallel to one another without measurement, and it is possible that the present boundary of the ditch, at the western end of its northern bank, represents the correct line, since if produced it coincides with the southern wall of the “Privy Bakehouse,” and the otherwise curious position of the “Scalding House” beyond becomes explained by the return of the eastern side of the moat. Whether this interpretation is correct or not, I have adopted it as the method involving the least modification of Thorpe’s drawings, as I think it is important that they should be put on record in this way before any attempt is made to adjust any further inconsistencies.

Joined together thus, the two plans cannot fail to give us a very fair idea of the palace, and it would be easy to construct a vivid word-picture of the beauty and charm that must have belonged to the whole scene which these old manuscripts can conjure up for us. Even a cursory glance shows its infinite suggestiveness. The way up to the gatehouse is flanked with converging walls and [64]outbuildings of picturesque form and disposition. The gateway itself, massively built in contrast with the timber houses on either side, admits us to the long green court, the irregular boundaries of which lead onwards to the palace in a fair perspective. On each side are the low outbuildings of half-timber work and plaster, and beyond rise the high walls of the fortifications, Bishop Bec’s towers still amongst them, and the gatehouse to the great court standing out in the centre. As the visitor proceeds, he will see the waters of the wide moat, the banks of which still show the unusual width of a hundred feet. Between him and the gatehouse is the stone bridge, with its four beautiful pointed arches, the last of which reaches the wall of the terrace, built probably over the ancient place of the drawbridge (which Henry VIII. mentions) before the porter’s gate.⁠[16]

[16] Mr. C. R. Peers has confirmed this by discovering the actual opening formed for the drawbridge.

Within the great court the scene is one of royal splendour. The battlemented gable of the chapel is close at the visitor’s right hand, and immediately opposite is Edward IV.’s great hall, which even now is glorious in its ruinous condition.⁠[17] Its coupled windows (like the southern lights only of Crosby Hall) divided by buttresses, its square oriel and doorway, its oak lantern, and Henry VIII.’s finial and vane on the summit of the west gable, combine in this great central feature of the mediæval palace a dignity and distinction worthy of its purpose. And all around the court fine work in timber gives a pleasing contrast and relief to the solidity of the masonry. For in a line with the hall to the east were oak gables and bargeboards well moulded and carved—three of which are yet to be seen—and King Henry VIII. himself gave orders for the gallery from the hall to the chapel to have a “clerestory” and to be embattled in timber, and the cloister (pentise) on the opposite side to be likewise wrought and embattled in oak.

[17] H.M. Office of Works is now repairing the Hall, and has kindly lent the photograph reproduced on page 56.

[65]

Henry VIII. spent much money at Eltham, and in his imperious way effected great changes in the ancient palace, though nearly all his work has since perished. If the visitor of the time of Thorpe’s survey had passed through the door of the great hall and beneath the wonderful roof of Edward IV., he would have found himself in the kitchen court, where on the right was to be seen the “New Lodging” which Henry had built for himself. In the south-west angle of the court a little door gave access to the privy bridge across the moat and turning to the right beyond this he could see the elaborate front of this building, which was prepared with infinite care, as the king’s instructions show. The succession of bay or oriel windows, the centre one of which was of the elaborate form affected in his reign, must have pleased the eye of a king who stopped at nothing in his ambition for truly royal surroundings.

To return to Thorpe’s plan of the green court, there is one point which requires explanation, and which presents the most serious obstacle in the way of our accepting the precise disposition which he gives to the buildings. Just outside the first gatehouse and to the north of the bakehouse is a wall which bounds the outer courtyard to the east. A portion of Tudor walling in this direction still exists, and in it is a fine gateway in about the same relative position as the opening shown on the plan. This wall and gateway, however, are much farther west than those indicated on Thorpe’s plan, and should thus appear where he shows an open space. Either he has omitted to show them, which seems improbable, or his wall and gate are too far to the east. This point affects the important matter of the position of the gatehouse itself, and indeed if decided against the drawing would probably modify the lines of the green court. The identity, indeed, of this so-called “Tilt-yard” gate with that shown by Thorpe may prove to be the key to the proper placing of his plan, but the evidence at present is fragmentary, and, as I have already said, the subject invites much careful investigation. The [66]combined plans have been purposely reproduced here to the scale of the Ordnance (88 ft. to the inch) to facilitate comparison, and I have no doubt that it will not be long before we have enough further information to give a corrected plan of the whole building.

—W. H. G.


THE ORIGIN OF
THE DOMESTIC HALL


[68]

Fig. 24.—THE GUILDHALL, YORK.


[69]

V.
THE ORIGIN OF THE DOMESTIC HALL.

The invariable and, indeed, the only essential feature of the English mediæval house is the Great Hall. It is the centre alike of the castle and the manor-house round which the lesser buildings are grouped. In Saxon times the great or mead hall was, so far as the evidence goes, almost always built of wood and closely resembled in form and structure the great aisled barns, which have carried on the old tradition without a break almost to the present day. Some indication of their remote and semi-barbaric origin is to be found in the rude method of roof construction, for while something in the form of a truss is always visible, yet it is scarcely ever framed together to form a rigid whole. On the other hand certain peculiarities, born of a long and intimate acquaintance with the material used, are also observable, the most striking being the constant practice of planting the posts or uprights in the contrary position to that occupied when they were living trees, and thus preventing the rise of the moisture from the damp earth. It is a hall of this type that is described in the early Mercian poem of Beowulf as the scene of the great struggle with the demon Grendel.

For some time after the coming of the Normans, the conquering race was little more than an army of occupation, a state of affairs which was unduly prolonged by the internecine warfare of the Great Anarchy. The direct outcome of this unsettled and unnatural state was the erection of the numerous Norman castles, built purely for defence, of which so many were subsequently destroyed by King Henry II. The Norman castle at this date consisted of a stone keep with a large enclosure or bailey, surrounded by a wooden palisade or stone curtain and occupied by the timber dwellings of the lord and his retainers. It cannot be too much insisted on that the keep-tower hardly ever represents the ordinary dwelling-house of the lord of the [70]castle. It was, in fact, only made use of for habitation when the stronghold was in a state of siege, and it is probable that their enforced residence there was little relished by its inmates, as the confined space and limited accommodation would lead one to expect. It is consequently futile to attempt to trace in the internal arrangements of the keep-tower the origin of the domestic hall. Even at the Tower of London, where the Conqueror or his successor built an immense keep, using the south-east angle of the Roman fortifications to enclose their bailey, a great hall was erected at an early date against the southern curtain.

In three of the early Norman castles the great hall still remains standing, at any rate in part. At Richmond, Yorkshire, it adjoins the curtain on the south side, and is apparently of earlier date than the keep at Christ Church, Twynham which stands on the east or river front of the castle; while at Wolvesley, by Winchester, the ruined Norman hall is ascribed to Bishop Henry of Blois.

The comparatively small number of halls of this date remaining is some evidence that the majority of these structures were of wood, and there is documentary evidence that in several important cases, as at Hertford and Pleshy, the halls were still of this material at the time of their destruction in the seventeenth century.

The Norman conquerors of England brought with them their own architecture, and must necessarily, at any rate at first, have introduced their own masons and craftsmen to carry it out. The wealth of the great Saxon abbeys was largely put to this use by their new owners, for the Norman prelates, accustomed to the glories of Jumièges and Caen, would not tolerate the insignificant proportions of Saxon building, and the result was perhaps one of the greatest eras of local building activity the world has seen. The great Benedictine houses, whose numbers so largely increased in the first few decades succeeding the Conquest, built not only large churches but also conventual buildings on a corresponding scale. The conventual establishment [71]consisted of the claustral block, occupied by the monks themselves and grouped round a central cloister, and a number of subsidiary and outlying blocks of which the infirmary and guest-house were the chief, quite detached from the main building. All except the very richest monasteries found it impossible to reconstruct at once the whole of these buildings in stone, and consequently we find in many instances the claustral block only was erected in this material, while the infirmary and guest-house, as a temporary expedient, were constructed of timber. The truth of this is evidenced by the discovery in several instances (e.g. Kirkstall and Waverley) of the original posts of the early infirmary hall encased in later masonry.

Now, the domestic portions of a monastery fulfilled most if not all of the functions of a mediæval house, or rather cluster of houses, as in each case the claustral block, the infirmary, and guest-house possessed its great hall, its separate kitchen, and the usual adjuncts. At a somewhat later date in the abbot’s or prior’s lodging yet another complete dwelling was added to the list. With regard to the guest-house particularly, it was in intention and fact an ordinary dwelling-house on a large scale. The inviolability of monastic property even in the dark period of the Great Anarchy has preserved more trace of the early arrangement of these buildings than is to be found in most of the purely secular houses of the same early date. The superior wealth and greater culture of the Church tended to make it the leader in domestic architecture no less than in ecclesiastical. All through the Middle Ages the purely secular-house plan showed a tendency to a closer approximation to the monastic type, until the quadrangular dwelling of the fifteenth and sixteenth centuries becomes almost its exact counterpart even to the cloister alleys on each side, the place of the great church being taken by the gatehouse. It is consequently amongst the monastic remains of the country, and not amongst the Norman keeps, that we are most likely to recover the early type of the domestic hall.

[72]

The conventual plan affords examples of two very different types of hall. The first is that almost always adopted for the great frater or dining hall in the claustral block, and is a plain rectangular apartment solidly built of stone; the second type is found only in the infirmary or guest-houses, and is in the form of a nave with one or two aisles.

We have shown that the frater was part of the block first rebuilt by the Norman abbots and priors. It was consequently built in stone after the Norman fashion by Norman masons. The infirmary and guest-halls on the contrary were commonly first constructed of wood, and consequently present all the features of native planning in that material. In most cases this latter class of building was subsequently reconstructed in the more durable material, but even then in many instances the original form was preserved, and stone columns and arcades like the aisles of a church took the place of the original barn-like structure of the Saxon type.

Fig. 25.—PLANS OF HALLS OF WINCHESTER CASTLE, YORK GUILDHALL AND OAKHAM CASTLE.

Drawn by

A. W. Clapham.

Turning now to the contemporary castle-building, we find precisely the same varying plans in common use. The [73]three halls mentioned above, at Richmond, Christchurch, and Wolvesley, follow the model of the monastic frater, while the halls at Oakham, Warnford (Hants), and probably Westminster are examples of the aisle type, which survived in isolated instances right through the Middle Ages, one of the latest examples, the Guildhall of York, being an interesting return to the timber originals of this class of structure.

Fig. 26.—PLANS OF HALLS OF ASHBY CASTLE, HERTFORD CASTLE, AND WARNFORD.

Drawn by

A. W. Clapham.

The aisled hall is so uncommon a feature in purely domestic architecture that a brief reference to the most important examples will be of value in this connection. Four examples at least remain intact, the well-known structure at Oakham (65 ft. by 43½ ft.) being the earliest. The great hall of Winchester Castle is a thirteenth-century building, five bays long (111 ft. by 56 ft.), and another example of similar date is to be found at Bishop Auckland, where, with the addition of a clerestory, it now does duty as a chapel. The Guildhall at York dates from the fifteenth century, and its long ranges of oak columns and handsome roof are exceedingly effective. (See p. 68.) The ruined examples include the halls of Ashby-de-la-Zouche (56½ ft. by 38 ft.) and Warkworth (58 ft. long, with one aisle only), the latter a thirteenth-century structure with a later porch and traces of a central hearth. Lastly the timber hall of Hertford Castle, which has entirely disappeared, bore a close resemblance on plan to the stone structure at Ashby Castle. [74]The hall of Nurstead Court, Kent, has been destroyed, and that at Leicester Castle and at the “Savoy,” Denham, Bucks, have been cut up into rooms and much altered.

These halls are, however, chiefly of interest as examples of an ancient and discarded method of construction, and it is to the other type that we must turn for the true origins of the domestic hall.

The finest remaining example of an early monastic frater is to be found at St. Martin’s Priory, Dover. It forms a hall 101 ft. long by 27 ft. wide, and is lit by a range of eight windows on each side. Though St. Martin’s was never more than a cell of Christchurch, Canterbury, these dimensions compare favourably with those of the secular buildings of the same class. The hall of Christchurch Castle, Twynham, was 70 ft. by 25 ft., and Scolland Hall, Richmond, 79 ft. by 26 ft. Wolvesley Castle Hall was, however, larger, being 135 ft. by 29 ft. In the internal economy of the monastic frater no less than in its plan we may recognise the prototype of the domestic hall. At the east end was the dais for the abbot’s table, at the west the screens masking the entrance from the kitchen and cloister. It has been asserted that the Norman builders placed the windows of their halls high in the walls for fear of draughts, but in the monastic frater we find them in the same position, for the adjoining pent-house roof of the cloister prevented any other arrangement, and here again it seems likely that the secular but copied the monastic fashion.

A characteristic feature of the later monastic frater-house is the reader’s pulpit from which one of the brethren during meal time read edifying extracts from the lives of the saints and similar works. In the Norman fraters, however, this feature seldom appears in structural form. There is no trace of it at Dover, and none likewise in the plans of Lewes and Castle Acre. In the late twelfth century, however, it became universal, and is generally enclosed in a square projection near the dais end of the frater, approached by a flight of stairs in the thickness of the wall.

[75]

In position and outward form it approximates closely to the domestic oriel, and one is tempted to suggest it as the true original of this much-discussed feature of the secular plan which, it may be noted (like the pulpit itself), never appears in early work. In any case the beautiful oriel formerly existing in the infirmary at Easby Abbey is one of the earliest known examples of the feature, and implies its monastic origin.

One other point may be noted in conclusion. According to monastic rules, the frater was never supposed to be artificially heated, and consequently it was left to the unaided secular mind to invent something new, or to adhere to the ancient form of the central hearth. The secular mind chose the easier course, and only in occasional instances like that at Christchurch do we find a proper fireplace and chimney in the great hall.

Even the final destruction of the monasteries, under Henry VIII., did not entirely terminate their influence on English domestic work. Numerous abbeys and priories, of which Ford and Laycock are familiar examples, were transformed into dwelling-houses by their first lay proprietors. After the destruction of the conventual church, the claustral block, with one or more of the cloister alleys retained, and the chapter-house used as a private chapel, became the prototype of a numerous class of houses which remained in general favour throughout Elizabethan and Jacobean times; and even in the throes of dissolution monasticism left a deep and lasting mark on the architecture of the country.

—A. W. C.


SIR THOMAS MORE’S HOUSE
AT CHELSEA


[78]

Fig. 27.—SIR THOMAS MORE’S FAMILY AT CHELSEA.

Drawn by

Holbein.


[79]

VI.
SIR THOMAS MORE’S HOUSE AT CHELSEA.

Sir Thomas More’s house at Chelsea, where he received the intimate but fatal companionship of King Henry VIII., and held more congenial intercourse with Erasmus, Holbein, and other of his friends, enshrines perhaps one of the most familiar domestic scenes in English history. Yet we have hitherto known little about the house itself beyond the mere fact of its position, and the names of its more or less famous owners until its destruction by Sir Hans Sloane in 1739. Led, however, by a hint of Mr. Randal Davies, I have lately been carefully through the MS. drawings in the possession of the Marquis of Salisbury, and have been rewarded by finding a set of six plans (circa 1595) which undoubtedly relate to this house. Two of them are evidently surveys of its earlier condition, and probably represent its arrangement during the life of Sir Thomas More. The remainder embody some of Sir Robert Cecil’s intentions regarding the refashioning of the house when it came into his possession, intentions which were only partially carried out, and were relinquished by him in favour of his more ambitious project at Hatfield. The plans are beautifully drawn in ink, and throw a most interesting light on the methods of drafting a building scheme, the skill of which seems no whit behind the work of the modern architect.

The information available regarding the riverside estate of Sir Thomas More is by no means slight, although it is lacking in many of the details necessary for the completion of its history, and we have, moreover, no remains of the house with which to compare the early plans, beyond the long garden walls of Tudor brickwork which still divide the rows of modern houses erected upon the site. The whole property has a singularly interesting architectural history, for three other houses were subsequently built upon parts of the [80]estate, and all have a different claim upon our attention. To the west of The Great House, nearer the river, was the original “Farm House” which More had bought and which was rebuilt by Sir Theodore Mayerne, physician to James I., and afterwards altered by the Earl of Lindsey (circa 1674). This house remains, much mutilated and changed, divided into several dwellings, but still retaining the name of Lindsey House and preserving much of the appearance it had in the days of its occupation by Count Zinzendorf and his Moravian followers (1751–1770). To the north of Lindsey House was Gorges House, built probably in the last years of the sixteenth century by the Earl of Lincoln for his son-in-law Sir Arthur Gorges. Surrounding three sides of a courtyard open to the west, and surmounted by a succession of Dutch gables, it eventually came into the possession of the Milman family, and was pulled down about 1726 to make way for Milman’s Row. The third house was to the east of The Great House and its gardens, and was built in 1622–3 by Sir John Danvers, who bought the land from the third Earl of Lincoln. Danvers House was remarkable as being one of the earliest houses to take on the Later Renaissance manner, and its planning and that of its gardens delighted the heart of Aubrey and of Pepys, a detailed description by the former being preserved at the Bodleian. John Thorpe has left us plans of the house, and Aubrey a sketch of the garden. It was pulled down about 1720, and Danvers Street now passes over its site, the present position of the rebuilt Crosby Hall marking roughly its distance from the river.

Before examining in detail the various features of these houses, it may be useful to set out a table of the drawings which are so far available:⁠—

In the Hatfield Papers (1595–6).

(1) and (2) Survey of The Great House: ground plan and first floor, by J. Symonds.

(3) and (4) Proposed rebuilding: ground plan and first floor by Spicer.

(5) First-floor plan of alternative scheme, also by Spicer.

(6) Estate plan showing house and gardens.

[81]

In the Thorpe Collection, Soane Museum.
(Early 17th century).

(7) Plan of The Great House and lodges.

(8) (9) and (10) Sir John Danvers’ house: ground plan, first floor, and sketch elevation.

In the Smithson Collection (Colonel Coke).

(11) Summer-house, Chelsea (shown also in Kip’s view).

There are also—

(12) Kip’s bird’s-eye view of The Great House, showing also Lindsey House, Gorges House, and the garden of Danvers House, dated 1699, drawn by Knyff.

(13) Danvers House: plan of garden, drawn by Aubrey (Bodleian).

(14) and (15) Lindsey House: drawings in the Moravian Archives at Hernhutt; and engraving in Malcolm’s “Londinium Redivivum.”

From this list it will be seen that if there is not enough material to satisfy the topographer and to enable him to plot the exact position of these houses on the banks of the broad highway of the Thames, yet there is more than enough to interest the student of architecture. Let us first consider the earlier plans of The Great House, which I have the kind permission of Lord Salisbury to reproduce.

Fig. 28.—PLAN OF THE HOUSE, GROUND FLOOR

Drawn by

I. Symonds (c. 1595).

Fig. 29.—PLAN OF THE HOUSE, FIRST FLOOR.

Drawn by

I. Symonds (c. 1595).

It was on the death, in 1595, of Anne, Lady Dacre—well known as the foundress of the beautiful Emmanuel Hospital which used to stand in Westminster—that The Great House at Chelsea came to the Cecil family, Lord Burleigh, who is thought to have stayed here, giving it up to his son Sir Robert in 1597. The house, as we have seen, had already had historic associations, from its first builder, Sir Thomas More, who lived here for about fourteen years until his attainder in 1535. It had then passed successively to Sir William Paulet (first Marquis of Winchester), his son the second Marquis, and in 1575 to Lady Dacre, who was a daughter of the Marchioness of Winchester by her former husband, Sir Robert Sackville. The possession of what must have been a fine old house of [82]the early sixteenth century, amidst the charming Thames scenery just west of the picturesque village of Chelsea, fired the future builder of Hatfield with a desire to remodel the building and bring it up to date as his country seat. With this in view, immediately upon possession Cecil had the house measured up, and commissioned one or more of his “surveyors” to plan the additions and alterations. In a letter dated September 3rd, 1595, from H. Maynard to Sir [83]Robert Cecil, mention is made of “the plattes of Chelsey house made by Torrington, with the Controller of the Works’ additions.” This seems to imply that Torrington had plotted the place as it stood, and that the additions had been made by the Controller of the Works whose identity is not disclosed. The drawings here reproduced do not seem, however, to be the ones referred to in the letter, and it is difficult to say how far any of them represent the form [84]of the original house as acquired by Cecil. To the historian this is unfortunate, but to the student of architecture it will be a matter of congratulation that the “sketch-plans” survived instead.

The two plans which seem most likely to represent the already existing buildings have not the name of Chelsea attached to them, but they are clearly of this house. They are each inscribed: “This Plat is after 10 foot in An ynch. p. J. Symands.” More roughly drawn than the others, they represent less coherent planning, and show an earlier type of house. Most significant of all, the figured dimensions are given in fractions of feet or with inches, and the heights of the stories are shown on the ground and first floors. This John Symonds was the author of the remarkable plans of Aldgate Priory (also in the Hatfield Collection), which Professor Lethaby published in the Home Counties Magazine (vol. ii, pp. 45–53). Professor Lethaby has established that Symonds was employed by Lord Burghley on the harbour works at Dover, and that he died probably in 1597. It is interesting to find another set of plans which associates him again with the neighbourhood of London. The early features of his plan will be seen to consist in the numerous staircase and other projections upon both the north and south fronts, the square porch with shafted angles (as in the western room), and the oriel over the front door. The house had doubtless been altered since Sir Thomas More’s time. Its front elevation is symmetrical between the two slightly projecting wings, the porch being in the centre; but towards the west a further wing had been built with a width and projection similar to the others. This western wing is shown on all the plans of the house, and it was evidently the intention of Sir Robert Cecil to remove the projections between it and the eastern wing, making a symmetrical elevation between them, broken only by the porch. We see, therefore, in all the other plans that the porch has been shifted westwards, and with it the Great Hall, and the planning of the north side has been altered to [85]correspond. This part of the scheme was actually carried out by Cecil, as we can see by referring to John Thorpe’s plan, and to Kip’s view of the house a century later. The Great Hall in Symonds’s plan is of one story, and, beside the usual screen, has posts to support the passage above, a feature which suggests that this was once an open gallery. The hall is shown with a dais, which communicated with a long wing leading northwards, in which were the grand staircase, the chapel, and a cloister. This wing, with its Long Gallery on the first floor, looks at first sight to be of quite Elizabethan character, and may well have been an addition by Lady Dacre. But the chapel, cramped though it is, with its window to the east, is not unlikely to have been the private chapel of Sir Thomas More, and the “Parte of ye Tarras” shows the commencement of his favourite terrace, which appears in Cecil’s estate plan and in Kip’s view, and is described with its “banqueting house” in the conveyance to Sir Hans Sloane (1737). On the first floor may be seen the little balustrade which surrounds the opening into the chapel below, and on the two floors there are no fewer than four rooms having those internal porches which are so characteristic of Elizabethan houses, and which came in those days under the comprehensive term of “oriel.”

The closer one examines these two plans of Symonds the more evident it becomes that they represent an early Tudor house which had been enlarged in the latter part of the sixteenth century—if the north-east wing were really in existence when the house was measured up, and was not the draughtsman’s suggestions for an extension. If our deduction is correct, we have here the substantial arrangement of Sir Thomas More’s house, and one of the rooms, possibly the chapel, formed the background for Holbein’s famous sketch of the family group.

Let us now consider the four other Hatfield plans, two of which are marked “Chelsey,” while the remaining two—undoubtedly of the same place—bear the name of the [86]draughtsman, “Mr. Spicer,”⁠[18] in Cecil’s own handwriting. I do not think that any of these plans represent accurately the actual changes which were made, although to the title of one, “Mr. Spicer’s platt without a gallery,” Cecil has added the word “allowed.”

[18] Of Spicer I have not been able to find any other mention than the following reference in the Hatfield MSS. In a letter dated 9 December, 1598, written in Italian by Federigo Genibelli to Sir Robert Cecil, the writer, in speaking of the wages due to himself and other workmen in building fortifications in the Isle of Wight, refers to “Mr. Speicer” as also employed. It is quite possible that he was the Surveyor of Works at Chelsea.

Fig. 30.—PLAN FOR REBUILDING, GROUND FLOOR.

Drawn by

Spicer (c. 1595).

Fig. 31.—PLAN FOR REBUILDING, FIRST FLOOR.

Drawn by

Spicer (c. 1595).

The plans are drawn with scrupulous care, and, like [87]a fair proof that they were not carried out. The dimensions are marked in whole figures without fractions, and no heights of rooms are given. They exhibit most complete and ideal plans of the period. The scheme for which the ground and first-floor plans are drawn shows the south front reduced to perfect symmetry, the western room already referred to being brought out in a bold wing, and a corresponding projection being placed to the east. This latter contains an imposing chapel with screen, and two shaped balconies to the gallery over. Each wing is flanked by an octagonal stair-turret. The hall (50 ft. by 21 ft.) which replaces the larger Gothic hall (59 ft. by 31 ft. 6 in.) has been moved westward, to allow of a central porch and the addition of an extra retiring-room of important dimensions to the private apartments eastward. The hall [88]retains a screen, but loses its dais and oriel window. The porch is treated with columns in the approved Renaissance manner, which are repeated in the upper storey and take the place of the little oriel that is shown over the earlier doorway. The old north-western wing is modified a little, but to the east a repeat is shown, and in the former, false windows are indicated against the oven walls to balance the bay on the other side! Over the east wing is a long gallery (99 ft. by 19 ft.) overlooking the garden, with three bay windows. The old octagonal projections on the north side are retained, and the plan is noteworthy in having seven newel stairs, beside the principal staircase and one other straight flight.

Fig. 32.—ANOTHER, FIRST FLOOR PLAN.

Drawn by

Spicer (c. 1595).

An even more elaborate scheme is shown on the third plan, of which we have the first floor, or “seconde storie,” only. Here the hall, which is the same length as the old hall, i.e., 59 ft., goes up two storeys, and a gallery is shown [89]over the screen. The apartment to the east of the hall is occupied by the grand staircase, and a fine well-stair flanks each of the front wings, being brought out as square towers behind the octagonal turrets. The chapel shows further elaboration with three balconies, evidently forming private pews, not unlike Queen Elizabeth’s pew in the chapel of the Croydon Archiepiscopal Palace. The kitchen shares with the hall the dignity of embracing two storeys, but the main feature of the plan is the range of building which unites the two northern wings, and forms a magnificent gallery 123 ft. long by 19 ft. wide.

The fourth plan is by far the most interesting from the topographical point of view, for it gives the divisions of all the gardens and forecourts and the outline of the riverbank. The northern boundary is now the south side of King’s Road, and the stable-yard is the Moravian Burial Ground. The open square to the north-east is Dovecote Close, now largely occupied by Paulton’s Square. And down by the river may be seen the quay, and the little street of houses (called Duke Street and Lombard Street) whose picturesque buildings gave way to the making of the Embankment. The lines of garden-wall running north and south are still largely intact, and bear out the general accuracy of the plan, although the measurements are wrong in many places. The terrace, with its archway and steps, is to be seen; but the house is drawn more as a feat of draughtsmanship than as a serious attempt to make it to scale. It represents perhaps another of Sir Robert Cecil’s schemes, but neither a comparison with Symonds’ earlier or Thorpe’s later plans will be found to support its exact arrangement.

Fig. 33.—ESTATE PLAN (c. 1595).

Dr. King, the antiquary, and rector of Chelsea, writing in the early part of the eighteenth century, relates from his own observation how “in divers places [in this house] are these letters, R.C., and also R.C.E., with the date of the year, viz., 1597, which letters were the initials of his [Cecil’s] name and his lady’s, and the year 1597 when he new-built, [91]or at least new-fronted it.” A letter in the Hatfield MSS. from Roger Houghton to Sir Robert Cecil, endorsed “Mr. Steward to my master,” and written “From your Honour’s House in the Strand” (June 22nd, 1597), says: “The bed chamber and withdrawing chamber at ‘Cheallseay’ are matted, and this day they are about to hang them. There wanteth your direction what stone you will that the ‘ffootpasses’ be made of to the chimneys in these two rooms, as also to the gallery, also whether you will have the hangings in the great chamber to be hung at their full length or tucked up.”

Sir Robert Cecil seems soon to have become tired of his new possession. We find him desirous of selling the property in 1599, and on the last day of February of that year it was bought by Henry, second Earl of Lincoln. The new owner was father-in-law to Sir Arthur Gorges, upon whom and his wife the estate was settled. Apparently at this time, too, a site was found for a new house, behind Lindsey House, which was occupied by Sir Arthur Gorges during the Earl of Lincoln’s lifetime. There seem to have been very serious quarrels between the two families, and much interesting and vigorous correspondence is extant concerning their differences. Mr. Randal Davies, in his Chelsea Old Church , has told the subsequent history of the house and of its notable tenants. The Earl of Lincoln died in 1615, and the house and land which he had purchased from Sir Robert Cecil passed to Sir Arthur Gorges. This, however, was not the complete estate of Sir Thomas More, for it appears that the property lying south of Dovecote Close and east of the terrace and garden of The Great House, was in the hands of the descendant of William Roper, who married More’s daughter and received it in dowry, for which reason it is not shown on Cecil’s estate plan. The Tudor home of the Ropers, Well Hall, is still to be seen, in part, at Eltham, where its fine brick walls and chimney-stacks overhang the ancient moat. Before his death the Earl of Lincoln reunited More’s former property [92]by purchase, but in 1615 the two portions were again in separate hands, since he bequeathed his house and grounds to Gorges, but left Roper’s land to his son, the third earl. This latter parcel of the estate, which for a few years was thus a second time in the same ownership as The Great House, has quite an interesting history. It is specified in the grant of Chelsea to William Pawlet after More’s attainder as “the house and one pightell or close of land.” Evidently, therefore, there was already a building upon it, and Mr. Randal Davies confirms a suggestion of Mr. Horne that this was the “place called the new buylding wherein was a chappell, a library, and a gallerie, which Roper tells us More built a good distance from his mansion house.” To this I would add that it seems extremely probable, since the high terrace from The Great House to this site was not a natural one, but apparently built of brick and stone, that it formed a covered way communicating with the “new building.” However this may be, the association of the place with the name of More was so strong that it is mentioned by Aubrey as “the very place where was the house of Sir Thomas More, Lord Chancellor of England,” and Aubrey adds that “he had but one marble chimneypiece, and that plain, but indeed very good if it be not touch, which remains there still in the chamber that was his lordship’s.” These remarks are not inconsistent with the conclusions arrived at above, but so fixed was the tradition as to this being the site of More’s home, that even the clear evidence in favour of The Great House was assailed. The misapprehension was probably strengthened by the name of “Moorhouse,” perhaps bestowed upon it by Roper and his wife, and mentioned by the third Earl of Lincoln in a letter of 1618. The property was sold by the last-named to Sir John Danvers in 1622–3—three years after The Great House had again changed hands through its purchase by Lionel Cranfield, Earl of Middlesex.

Fig. 34.—PLAN OF HOUSE.

Drawn by

I. Thorpe (c. 1620).

The general date of the drawings of John Thorpe in the Soane Museum would seem to assign his plan of The Great [94]House, Chelsea, to the time of the Earl of Lincoln, or that of the Earl of Middlesex. The plan, which bears no inscription, was identified by Mr. J. A. Gotch, by a close comparison with Kip’s view. In its south elevation it corresponds exactly with the engraving, and, most significant of all, both drawings show the two square lodges set anglewise about the gate that divides the two front courts. Assuming, as seems probable, that Cecil did not alter the northern side of the original house very much, that portion might well have become too antiquated for the Earl of Middlesex, who, when pulling down the northern wing, may have modified the south front and the other features of the house. It must be conceded that the presence of the plans of the adjoining Danvers House (built 1622–3) in the Soane collection renders it possible that Thorpe was the architect, and in such case he may easily have been consulted regarding The Great House itself. This theory would account for the inclusion of both houses in the same collection of plans. Thorpe’s plan of Chelsea House is disappointing in that the new arrangement appears distinctly uninteresting when compared with the earlier plans in the Hatfield MSS. But it has the corroborative evidence of Kip’s view, and is therefore probably more accurate than some other of his plans have been found to be. Mr. Gotch has pointed out the interesting fact that in the plan we have one of the first examples of the corridor or passage of modern times, attention to which is called by the draughtsman in his quaint phrase “A long entry through all.”

The Earl of Middlesex added to the estate by the purchase of “Brickbarn Close” and “The Sandhills,” two properties lying to the north of the present King’s Road, and these he converted into the Park, shown in Kip’s view. Till recently this district, though partly built upon, retained much of its old character and a goodly number of its trees. Its northern part, the Elm Park estate, was built over some years ago, and more recently the remaining portion has been cut up into [96]roads, and, amid unavailing protests, is completely given over to the builders.

Fig. 35.—KEY PLAN OF ESTATE.

Drawn by

Walter H. Godfrey.

As a result of the royal displeasure which Cranfield incurred, Chelsea House was surrendered in 1625 to the Crown, and in 1627 Charles I. bestowed it upon the Duke of Buckingham. After the assassination of the latter his duchess continued to reside here, and Mr. Davies gives us the interesting information that his daughter, the Duchess of Lennox, decided to come in 1646 “to her house at Chelsea to be under Dr. Mayerne’s hands for her health.” This brings under notice the other house on More’s estate, now called Lindsey House, which was then in the occupation of Sir Theodore Mayerne. Tradition says that it was he who bought the original farmhouse which Sir Thomas More had purchased and left standing, and that he rebuilt it for himself. On page 57 will be found a quotation from the Parliamentary Survey of Eltham, to the effect that Sir Theodore Mayerne, formerly physician to James I., and ranger of Eltham Park, no longer resided there, but at his house in “Chelsey,” which confirms the other evidence to be found in the parish records. The house still stands as rebuilt by the Earl of Lindsey in 1674, and not much altered in appearance since its delineation in Kip’s view.

After The Great House had been occupied during the Commonwealth by the Parliamentary Commissioners (Sir Bulstrode Whitelocke and John Lisle), the second Duke of Buckingham regained possession. Lost to him, through his debts, the house ultimately passed (1674) into the hands of the trustees for George Digby, Earl of Bristol, and his Countess sold it in 1682 to Henry, Marquis of Worcester, afterwards Duke of Beaufort, the house remaining in his family until 1720. It was during this period, about the year 1699, that Kip’s beautiful view of the mansion—then called Beaufort House—was published, a priceless record of the property, so ruthlessly defaced and destroyed by Sir Hans Sloane after he had purchased it in 1737.

[97]

Fig. 36.—BIRD’S-EYE VIEW OF CHELSEA ESTATE.

Drawn by

Kip (1699).

[98]

Fig. 37.—GARDEN OF DANVERS HOUSE.

Drawn by

J. Aubrey.

[99]

Mr. Randal Davies, whom I have followed in the account of the occupants of the house, has printed⁠[19] the interesting conveyance of the property to Sloane, and if its description is carefully collated with the information in Kip’s view one is struck by the wonderful accuracy of the latter. Here is The Great House, as shown by Thorpe, its lodges and its forecourts, the wharf with its brick towers east and west, the orchard, and “one garden environed with brick walls ... and a terrace on the north end, with a banqueting house on the east end of the terrace,” as well as the “one great garden ... extending from the terrace and banqueting house unto the highway on the north.”⁠[20] The “banqueting house,” as already stated, is alike in detail with the sketch of “A Summer House, Chelsea,” in the Smithson collection of seventeenth-century drawings now in the possession of Colonel Coke. But, valuable as is the representation of The Great House, the print has much more information to give us. The great park is there shown in all its original beauty; the Duke of Beaufort’s stables and yard, since converted into the historic chapel and burying-ground of the Moravians, is to the west; and nearer the river are the beautiful Jacobean House of Sir Arthur Gorges (our sole evidence of its character and design) and the house and garden of the Earls of Lindsey. And to the east, below the wide area of Dovecote Close, laid out as a large kitchen-garden, are the beautiful pleasure grounds of Danvers House, which had been destroyed but three years before the drawing was made.

[19] Chelsea Old Church , by Randal Davies, F.S.A.

[20] The gate into the King’s Road, shown in the engraving, is probably that stone gateway now at Chiswick which was designed by Inigo Jones and taken to Chiswick on the destruction of Beaufort House.

Fig. 38.—PLANS OF DANVERS HOUSE.

Drawn by

J. Thorpe (c. 1620).

As already described, Sir John Danvers bought the land shown to the right of Kip’s view in 1622–3. That he built the house shown in the Thorpe drawings is corroborated by John Aubrey’s minute description of house and garden in his MS. “Natural History of Wiltshire,” preserved at the [101]Bodleian. His rough sketch of the garden is here reproduced for the first time, to show how it confirms the general lines of the drawing published by Kip. It would be interesting to quote Aubrey in full, but a few sentences must suffice. He says: “’Twas Sir John Danvers, of Chelsey, who first taught us the way of Italian gardens. He had well travelled France and Italy and made good observations.... He had a very fine fancy, which lay chiefly for gardens and architecture.” There is no doubt that the plan of the house was greatly in advance of its time. Pepys “found it to be the prettiest contrived house that I ever saw in my life,” and Aubrey describes it as “very elegant and ingeniose.” He adds that “as you sit at dinner in the Hall you are entertained with two delightful Vistos: one southward over the Thames and to Surrey, the other northward into that curious garden. Above the Hall is a stately Roome of the same dimension, wherein is an excellent organ of stoppes of cedar. Sir John was a great lover of musick, and especially of J. Coparario’s Fansies.” Again of the garden he tells of its “boscage of lilacs,” its “syringas,” its “long gravelled walks margented with hyssop” and “several sorts of thyme.” “Sir John was wont on fine mornings in the summer to brush his beaver hat on the hyssop and thyme, which did perfume it with its natural essence and would last a morning or longer.” He also tells of the “figure of the gardener’s wife in freestone coloured,” and “the like of the gardener, both accoutred according to their callings,” of which the King’s mason, Nicholas Stone, notes thus in his diary: (1622) “Unto Sir John Daves at Chelsey, I made two statues of an old man and a woman and a diall, for which I had £7 a piece.” And finally Aubrey thus continues: “At the four comers of the garden, about the ovall, are four low pavilions of brick leaded flatt and some firre and pine trees, shumacks, and the quarters all filled with some rare plant or other. On the east side of the Hall is a neat little Chappele or oratorie finely painted; next to it a Drawing room whose floor is chequered like a chesse [102]board of Box and Ewgh panels of about six inches square. At the east and west end of the House (without) are two high fastigiated turrets the Fans whereof are the Crest of Danvers sc. a golden Wyvern volant.” Aubrey says the garden was 8 chains 9 yards by 4 chains 9 yards wide.

Fig. 39.—ELEVATION OF DANVERS HOUSE.

Drawn by

J. Thorpe (c. 1620).

From these descriptions we obtain a charming idea of the beautiful little house which has gone the way of nearly all the buildings that peopled this “Village of Palaces.” The Earl of Radnor was a tenant here from 1660 till 1685, and after him Thomas Lord Wharton, who inherited the property, lived there. The house was not demolished until 1720, but in 1696 on the site of the garden were built the first houses of Danvers Street by Benjamin Stallwood, as may still be seen recorded on a little tablet at the corner of the [103]street. The foundations discovered when Crosby Hall was built on the site were sufficient to determine the general position of the building, but were not sufficient to plot it exactly.

I am indebted to Mr. Walter L. Spiers for his kind permission to make the copies of the Thorpe plans that are here published.

—W. H. G.


COCKERSAND ABBEY AND ITS
CHAPTER-HOUSE


[106]

Fig. 40.—INTERIOR OF CHAPTER-HOUSE.


[107]

VII.
COCKERSAND ABBEY AND ITS CHAPTER-HOUSE.

With but little variation the great majority of monastic establishments follow the well-defined lines which custom and the exigencies of the conventual life had laid down in the early years of the Church. It is consequently only occasionally that an abbey or priory ruin in this country presents any important deviation from the general plan of them all, and it is in the endless variety of their detail that most of their interest is centred. The Abbey of Cockersand is thus fortunate in having possessed and retained a chapter-house of that polygonal form which flourished in this island alone, and even here never became a common feature. In addition to this, the abbey choir stalls, a unique example of early wood-carving, have also been preserved, though removed from their original position. The chapter-house at Cockersand, while it does not challenge comparison with the great structures at Lincoln and York, being indeed of comparatively small size, is yet a refined and beautiful expression of “Early English” art which has hitherto almost escaped notice. The stalls also, though a cast of part of them rests in the Architectural Museum in Tufton Street, have hardly received the recognition they deserve.

Fig. 41.—PLAN OF ABBEY.

Drawn by

Alfred W. Clapham.

Situated on a flat tract of land lying between the estuaries of the rivers Lune and Wyre, half-way up the coast-line of Lancashire, the Abbey of Cockersand is remarkable for the dreariness of its surroundings. The level meadows, intersected in every direction by dykes that stretch for two miles inland from the ruins, were at one time little better than a great salt-marsh, inundated by the spring tides and fit for little else but pasture. The outer walls of the abbey itself, built upon a slight eminence looking over the desolate sands of Morecambe Bay, were again and again undermined by the attacks of the sea. “St. Mary in the Marsh upon the [108]Cockersand” was indeed, in position and surroundings, no desirable retreat, and it is singular that a convent of considerable wealth and importance should have risen in so remote a spot. Founded first as a hospital towards the close of the twelfth century, it soon rose to the dignity of an abbey, being colonised by Premonstratensian canons from Croxton in Leicestershire. Its history is chiefly a record of disputes with the neighbouring priories of Lancaster and Cockerham, and presents few features of interest to the general reader. At the close of the fifteenth century the records of the successive visitations of Bishop Redman provide a more intimate picture of the life of the inmates. Excessive drinking, it appears, was indulged in, and two of the canons had to be exiled to other houses for a more serious offence. When the abbey fell amongst the greater monasteries in 1539, it was tenanted by twenty-three canons. Their home soon after came into the hands of the lords of Thurnham Hall, whose successors hold it at the present time. With the exception of the chapter-house there is little of interest to be found amongst the ruins. The accompanying ground plan (which is sufficiently indicated by the remaining fragments of walls and the mounds of fallen masonry) will show the general arrangement of the building. The aisleless nave of the church, a feature of common occurrence in convents of the Premonstratensian order, was no doubt similar to those still partially standing at Bayham, Titchfield, and Egglestone. The chapter-house was approached from the cloister by a vestibule, probably divided into three aisles and vaulted in stone. Externally the building has been refaced with a red sandstone, and consequently all the features of interest it may once have possessed have now disappeared. It is finished on the three eastern sides with an embattled parapet, and has a low-pitched pyramidal slate roof. The original entrance on the west face still remains, though the mouldings are much weathered. It is a plain semi-circular arch, formerly springing from side shafts, which are now missing, and [109]probably dates from the foundation of the abbey. Internally the chapter-house is an octagonal apartment, 27 ft. 9 in. in diameter, having a fine vaulted roof springing from a central column and forming, on plan, four quadripartite bays. This arrangement is very unusual, as it throws the window openings out of the true centre of the vaulting cells above [110]them. There is, however, no apparent awkwardness in the result. The central pier is formed of eight clustered and engaged shafts, keeled on the outward face and having each a moulded capital, the bell of which is ornamented with the stiff leaf foliage of the Early English period. The vaulting ribs, consisting of three main members divided by deep hollows, are all of similar section, except the wall ribs, which are formed with a simple hollow only. At the intersections are foliage bosses, four in number, of excellent workmanship. It is unfortunate that the building was for long used as a burial-place for the owners of the neighbouring Thurnham Hall, as this has necessitated the raising of the floor level, which is now some distance up the central column and above the sills of the windows, and has quite destroyed the original proportions of the building. The window tracery, if any existed, has now entirely gone, some portions of geometric work on the north side being of very doubtful date. Each opening had two shafts on either side, one free and one engaged, and the internal hood mouldings terminate in sculptured heads, all much defaced.

The polygonal or circular chapter-house became a favourite feature of English work in the thirteenth century. There is evidence of the existence of some twenty-four of these buildings, and of these ten still remain complete. The form was most popular amongst the secular canons, amongst whom it received its highest development. The Benedictines came second with five examples,⁠[21] followed by the Augustinians with five and the Cistercians and Premonstratensians with two each. The example at Alnwick Abbey, which with Cockersand is representative of the last-mentioned order, was a circular structure some 25 ft. in diameter, of which only the foundations remain. In regard to geographical distribution, these buildings were spread over the whole of England from Tavistock in Devon to [113]Carlisle, while three instances occur in Scotland, at Elgin, Inchcolm, and Restalrig. Elsewhere they are almost unknown. The earliest example and the prototype of all the rest is the chapter-house of the Benedictine cathedral of Worcester, which dates from circa 1130. It was originally circular, and still retains this form internally, and is surrounded by a Norman wall arcade. It is possible that the form was suggested by the earlier round churches, some of which, as at Ludlow Castle, were aisleless and roofed with a timber pyramid “spire form.” The close proximity of other monastic buildings, and the consequent fear of fire, led to the insertion of the central column and the stone vault. The column was, however, always looked upon as an incumbrance, and was finally dispensed with and the building vaulted in one span. Of the later examples of this class of building the best instance is the beautiful little fifteenth-century chapter-house at Howden (Yorks), which apart from the fall of its vault, is still practically complete.

[21] There were also doubtful examples at Belvoir Priory and St. Margaret’s, Lynn.

Fig. 42.—PIER-CAPITALS IN CHAPTER-HOUSE.

Fig. 43.—EXTERIOR FROM WEST.

Fig. 44.—EXTERIOR FROM EAST.

The traditional removal of fittings and furniture from the dissolved monastic houses to neighbouring parish churches is generally found on examination to be devoid of any foundation, the unusual richness or lavish decoration of a screen, a roof, or a piece of tabernacle work having alone given rise to the popular belief. There are, however, a few instances of the genuine transfer of monastic “loot” to parish churches, which are all the more surprising when one considers the low repute into which the Gothic craftsmanship was rapidly falling at that period. The choir stalls at Richmond, Yorks (brought from Easby Abbey), and the still finer series at Whalley, Lancashire, are well authenticated instances of this practice, while at Lancaster there is every probability that the magnificent fourteenth-century stalls in the parish church originally adorned the choir of Cockersand Abbey. It is true that an alien priory was long attached to the church at Lancaster, but the fact that the existing fabric is almost entirely of later date than the confiscation [114]of the alien houses makes it more than improbable that the stalls were transferred from the earlier church. On the other hand there is the persistent tradition of their Cockersand origin and the neighbouring instance of a similar transfer at Whalley.

As at present arranged they stand on either side of the sacrarium, the returned stalls (two on each side) being placed against the east wall. The seats, fourteen in all and 2 ft. 5 in. from centre to centre, are provided with misericordes more or less mutilated and carved with grotesque figures. The canopies are supported on buttressed shafts at the back and front, carried up in the form of crocketed pinnacles and finished with carved finials of unusual form. Above each seat is an ogee arch richly crocketed and filled in beneath with a pierced panel of flamboyant tracery, each bay being of different design. Rising slightly behind these arches are lofty gables filled with similar panels, the crockets forming a nearly continuous edging of carving and presenting an almost infinite richness and variety. The comparative scarcity of “Decorated” woodwork adds largely to the value of the present example, which is undoubtedly the richest specimen of fourteenth-century wood-carving now remaining in this country.

The church of Cockerham is said to possess the Cockersand bells, and at Mytton near Clitheroe is a rood-screen said to have been derived from the same source. In the latter instance, however, the screen was undoubtedly intended for its present position, and was erected at the cost of the abbey, which then held the advowson of the church. Be this as it may, the forgotten and inconspicuous Lancashire convent has transmitted to the present day, in its octagonal chapter-house and its splendid stalls, some indication of the beauty and originality of monastic work even in the remoter parts of England, and has preserved for itself two monuments of its days of prosperity, while the very existence of so many of its greater fellows is rescued from oblivion only by lingering tradition and their written records.

[115]

Fig. 45.—STALLS FROM THE ABBEY (NOW IN LANCASTER).

[116]

Fig. 46.—MISERICORDE FROM STALLS.

Fig. 47.—ANOTHER MISERICORDE.

[117]

The foregoing notes, with the accompanying photographs, should therefore be of value to all who take an interest in mediæval architecture, more especially in those examples which are not rendered familiar by constant illustration.

—A. W. C.


THE REBUILDING OF CROSBY HALL
AT CHELSEA


[120]

Fig. 48.—THE ROOF.

Photograph by

London News Agency.


[121]

VIII.
THE REBUILDING OF CROSBY HALL AT CHELSEA.

The removal of Crosby Hall from Bishopsgate to Chelsea, regretful as was the necessity, provides us with an excuse for investigating its claim to our admiration. The vicissitudes of this noble fragment of fifteenth-century domestic architecture have been told many times since it was threatened with demolition, and since the day on which, after escaping the Great Fire of 1666, and also a second outbreak a few years later (when most of the mansion of Crosby Place was destroyed), it fell finally, in 1908, to the business demands of our modern city.

Fig. 49.—PLAN OF HALL IN BISHOPSGATE.

Drawn by

W. H. Godfrey.

Although known for many years, and still known, as Crosby Hall, it must be remembered that the building was merely a fragment of the City-merchant’s palace which was called Crosby Place from the name of Sir John Crosby who built it. Shakespeare calls it Crosbies’ Place in King Richard III. , and we know that it was a house of great size [122]and magnificence—so much so, that it shared with other important palaces of London the distinction of providing lodging for the noblest ambassadors. This was the great Hall or principal apartment of Crosby Place—the sole survivor of all the spacious rooms and galleries that surrounded its many courtyards and overlooked its gardens.

Sir John Crosby rebuilt a large portion of an existing house in Bishopsgate, which was formerly in the occupation of a wealthy Genoese merchant named Cataneo Pinelli. This rebuilding was begun in the year 1466, the sixth year of the reign of Edward IV., some twelve or thirteen years before the king constructed his great Hall at Eltham Palace, which offers many interesting points of comparison with Crosby Hall. (Vide ante pp. 58, 59.)

Now, the fifteenth century saw the third and last period of that unique style of architecture which we call Gothic—a period which lasted from the latter end of the fourteenth century to the dissolution of the monasteries by Henry VIII., and which is generally known by the useful and significant title of Perpendicular.

Although it is the third period only of Gothic architecture which is known by the name of Perpendicular—and this merely from a detail of its window tracery—yet the term might be applied with great truth to the whole style in contrast to the strong preference which the classical builders showed for the horizontal line. The Greek architects confined all their buildings within the uncompromisingly horizontal limits of their cornice or entablature, and even the Romans who had learned to construct the most elaborate edifices with their semi-circular arches were not content until they had imprisoned each row of arches beneath the long cornice of the Greeks. It was not until the Byzantine builders began to design great churches for the Christian faith, and when the Western Church took up the work, that an attempt was made to free the design from its horizontal limits and to encourage its growth upwards, as a symbol of its religious aspiration. The consummation of [123]these efforts, continued for many hundreds of years, was the sudden birth of Gothic art at the end of the twelfth century, and the wonderful forests of vertical lines leading up to a thousand pointed or—as the French say—broken arches, which we see in our great cathedrals. For a time the classical idea was banished—architecture had broken away from the human scale imposed upon it by the Greek artists, and it was striving to express something superhuman, mysterious, and divine. This spirit could not, however, last for long—it was of too ideal a nature—and just as the finest period of Greek architecture is confined to at most a couple of centuries, so in the case of Gothic the same number of years saw the shadow of approaching change. The Renaissance, the great reversion to classical conceptions, did not obtain a firm footing in England until the sixteenth century, but in the fifteenth we can already see signs of its coming if we look for them, and in no detail is it plainer than in the enclosing of the fifteenth-century pointed arch within a square frame. It can be seen most clearly in Crosby Hall in the case of the fireplace, the north-west door, and the main arch to the great oriel window. It appears also in the arches to the ordinary windows which are confined by a square frame of woodwork, in those of the oriel window in its lower lights and its panels, and in every little pierced arch of the oak roof and cornice. The top lights of the oriel window alone cling to the original idea of the Gothic arch, and point upwards amid the curving ribs of the stone vaults, without any check. At the same time that the arch was imprisoned within a square moulded frame, the arch itself became flatter or more depressed, and assumed the familiar shape which architects call four-centred from its being a composite arch of four distinct curves. The arch over the oriel window and that to the fireplace are two good instances of this in Crosby Hall.

This altered character of the arch is the chief architectural point to notice, and the second is the introduction of panelling. Practically all the design in the earlier and purer [124]Gothic work was confined to definite structural forms and to their adornment and enrichment. In the fifteenth century, however, there began the custom of dividing wall and other surfaces up into panels, again by the introduction of horizontal lines among the vertical ones—and thus was started the type of decoration which remained the most popular method from the sixteenth to the eighteenth centuries. First the long lights of the windows were divided by transomes or horizontal bars as in the oriel window, which is separated into three tiers. Then the vaults themselves were no longer divided only by the structural ribs which carried the weight of the stone roof, but were subdivided again by cross-ribs into the delightful network of panels which is shown in the vault of the oriel, where each intersection has a beautiful carved boss. From this it was an easy matter to repeat the outlines of the windows in stone upon the walls as is here done on those sides of the oriel that did not admit of being pierced for light. The square frames round the arches provided little triangular panels or spandrils, such as those above the oriel and fireplace, and in other similar places. Above all, the timber framing of the roof was specially suited to the panel treatment, and whether we look at the long rectangular divisions into which the great arched ceiling is divided, or at the succession of little squares with pierced quatrefoils in the cornice and round the stone corbels, we cannot fail to appreciate how completely this method of design had gained favour with the fifteenth-century builders.

Let us now consider briefly what light Crosby Hall has to throw upon the arrangements and planning of a mediæval house.

Fig. 50.—THE HALL FROM THE WEST.

Photograph by

Architectural Review.

Fig. 51.—INTERIOR OF HALL.

Photograph by

Architectural Review.

In the thirteenth and fourteenth centuries the English country house—apart from the castles and other fortified places—was a very simple but most dignified building. Its main apartment was the Great Hall, where the whole household lived, dined, and sometimes slept—a room designed on such a scale as to give the necessary shelter to [127]all the servants as well as to the members of the family. To this hall was generally attached, at the upper end, a small withdrawing room or sleeping chamber for the master and mistress of the house, and to the lower end a kitchen for the preparation of food. The system of the family and its dependents, as assembled in their hall, constituted a little hierarchy like that of the feudal State or that of the Church. Privacy was discouraged; every man lived his life in the presence of his fellows, and beneath the fine timber roofs of the great Gothic halls the plan worked out well and produced good men and noble women. Community of living was understood by the people of the Middle Ages in a way that is hard for us to understand now; it was a familiar thing to them, and it is illustrated over and over again in their social customs. So much was this so, that when at the end of the fourteenth and the beginning of the fifteenth centuries we find people adding private apartments to their houses, we also meet with protests from men like William Langland, who saw in this new practice a loss of interest in the household and a consequent shirking of duty towards its members. In his Vision of Piers Plowman we read concerning the Great Hall:⁠—

“Each day in the week
There the lord nor the lady liketh not to sit,
Now hath each rich man a rule, to eat by himself
In a privy parlour—for poor men’s sake.
Or in a chamber with a chimney, and leave the chief hall,
That was made for meals, for men to eat in,
And all to spare to spill that spend shall another.”

Now, by the time that Sir John Crosby came to build his mansion, the privy parlour had become a settled institution, and with it a multitude of other private rooms had found their way into the necessary domestic equipment. But these new rooms had not yet completely ousted the Great Hall, nor was this time-honoured and central feature of the house superseded until well on into the seventeenth century. The Hall was still used on many important family occasions [128]it was still the place for general meeting and the exchange of courtesies, and it happily retained its mediæval plan and arrangement with scarcely any modification of importance.

We have, therefore, in Crosby Hall the Great Hall of a fifteenth-century mansion, which resembles those of two centuries before and two centuries after its time, all of which followed the same pattern, if with certain slight modifications in design.

Fig. 52.—THE ORIEL, EXTERIOR.

Photograph by

Architectural Review.

Fig. 53.-THE ORIEL, INTERIOR.

Photograph by

Architectural Review.

Let us imagine that we have entered the front courtyard of Crosby Place through the gatehouse in Bishopsgate Street. We approach the Hall which lies directly in front of us, passing the Chapel on our right and the private apartments on our left. We enter at the chief door, and find ourselves at the lower end of the Hall behind a beautiful oak screen and beneath a projecting gallery. Every Hall was provided with a screen to divide the entrance passage from the room. Here unfortunately we have lost all trace of this end of Crosby Hall. Quite probably it suffered in the fire that destroyed the southern part of the mansion in the seventeenth century. We have not even the old doorway left to us, for a large archway had been driven through the walls and under the gallery to Crosby Square, and horses and carts passed to and fro. Only when we came to pull down the building did we find some traces of the original beams of the gallery still left in the ceiling over this roadway. It can be seen that the gallery formed part of the hall, and its windows were designed to harmonise with the long range on the west side. The high roof of the hall, however, was not carried over the gallery, and so its two windows were drawn together, there being no need for a stone corbel between them. Some doubts have been cast on the genuineness of this double window since it had been much restored, probably when the archway was made. I have little doubt, however, that it shows the original arrangement, and it may be noted in its support that all the windows in Eltham Palace are grouped together in this way in twos, the stone corbels and roof beams being divided [131]by each coupled window. The corresponding wall on the east side of the gallery had long been destroyed, but from the presumptive evidence of the rest of the hall and of its careful balance of features, we have ventured to place a new counterpart of the double window here also. The oak roof over the gallery is again a conjectural restoration, and it is hoped before the rest of the buildings are completed that we shall be able to replace the missing screen as well with one which will properly fulfil its function and reflect in part at least the beauty of the hall roof.

Having passed through the screen into the hall, the visitor would be at leisure to examine its various features. The windows on either side are placed high in the wall, but towards the upper end a beautiful bay-window or oriel is thrown out in order that the principal members of the family might have the use of its space for comparative privacy and from its lowered windows might look out upon the courtyard. Beyond the oriel on the same side is the door to the great parlour or private dining-room, above which was the great chamber—a reception room in much favour in this and the succeeding century. Mr. Gotch reminds us that Slender in The Merry Wives of Windsor boasts of his Great Chamber. The blank windows between the oriel and the end wall show the position of this room which was misnamed the Throne Room while Crosby Hall was still a restaurant, and it was felt advisable to keep up the legend of Richard III. and his crown. These and the two windows on the east wall, corresponding to the blank ones, are a smaller size than the others, perhaps to allow loftier hangings to be placed round the dais. Opposite to the oriel was the beautiful fireplace of a size and proportion befitting this fine apartment. By it the upper end was well warmed, but it was not sufficient to heat the lower hall where the servants were gathered, and it is more than probable that the louvre, or opening in the fifth bay of the roof, represents the position below of the central hearth which would be used in addition to the fireplace.

[132]

Fireplaces had been known and used since Norman times, but they were never so popular in the great halls as the open brazier, and we find that even in the King’s Palace at Eltham there was an open hearth provided to the exclusion of the fireplace, though, as we have seen, it was built several years afterwards. This I think disposes to a large extent of the popular assumption that the open hearth was primitive and inconvenient.

Fig. 54.—VAULT OF ORIEL.

Photograph by

Architectural Review.

Fig. 55.—DETAIL OF ROOF AND WINDOW.

Photograph by

Architectural Review.

All these features above described constitute together the normal arrangement in practically every mediæval domestic building of any size. Whether one visits the halls of Hampton Court, Eltham, or Croydon Palace, or the later halls at the Charterhouse, the Middle Temple, Gray’s Inn, or Lambeth, one recognises the same scheme with such slight variations as the two oriels at Eltham and the Temple, and the occasional absence of the fireplace already noticed. But the greatest glory of these mediæval halls was the timber roof which crowned the whole building and which, here in Crosby Hall, constitutes the most valuable part of the original work. This roof is of particular interest, as it represents a transition from the open timber roof to the later ceiling. The roof of Westminster Hall and those of Hampton Court and Eltham belong to the former class and are among the finest examples of the famous hammer-beam construction. The tradition of the open timber roof remained, indeed, so strong that even in the sixteenth and seventeenth centuries the hammer-beam was still employed, and the Halls of the Temple and Lambeth Palace show it in its later treatment. But in the case of most of the buildings of the latter half of the fifteenth century the curved and panelled ceiling had come into vogue, and it became the most fashionable method of roofing our parish churches. At Crosby Hall we have, as far as I know, a unique example of this type, for its little forest of pendants—from each of which spring four arches in different directions—make a most original design of great charm. It has been likened to an attempt to gain the effect of fan-vaulting in [135]wood, and no doubt its elaborate detail prevented its repetition in other places. It would have been a great loss to students of architecture if this roof had perished. Happily it was in beautiful preservation, and no single feature of any importance was lacking when put together.

It should be noticed most especially how the roof governs the design of the whole room, bringing each part into harmony with the rest. It is divided into eight bays or compartments by seven arched principals. In each of these compartments on the wall below is a window of two lights brought beneath one deeply moulded arch. The oriel itself occupies two bays. Each roof-principal is carried down to a fine stone corbel which exactly fills the space between the windows and is an integral part of the massive wall stones. Unfortunately one or two of these corbels were replaced at the restoration of the building in the last century. Between the windows and the roof runs the simple cornice of battlements and quatrefoils, the spandrels, or triangular panels on either side of the windows being filled with pierced tracery.

Fig. 56.—SECTION THROUGH ROOF.

Fig. 57.—PLAN OF HALL AT CHELSEA.

It remains now to state how much of this building is old and how much new, for the visitor will notice a great difference between its appearance here in Chelsea and its old aspect in its restaurant days. It must be remembered that although the fine roof, windows, and other features had remained intact, yet the old hall had suffered grievously from various alterations and additions. Several architects of the Gothic revival period had given it such features as a modern gallery to the south, an organ loft, arch and screen at the north end, and doorways which were not of its original plan. Besides these additions in questionable taste, the west wall which fronted Bishopsgate had been robbed of its original Reigate stone facing and covered with perishable Bath stone, and the eastern wall had been disfigured to a terrible extent by the modern buildings which adjoined it. The chief aim in rebuilding the Hall was to set each original piece which had form or beauty left to [137]it in its proper relative position to the main building. It was necessary, therefore, to use all that was left and to discard the faulty modern reparation, supplying their place with durable work to ensure the safety of what was genuinely old. The walls were built of brick in place of the old rubble which was of little use. The Bath facing stones were replaced with Portland, and each window and door stone was carefully set in its place. Only on the east wall had the external masonry to be entirely replaced, and the stones of the windows severed to preserve the old work on the inside. The two end walls were formerly internal walls of Crosby Place, but they had completely perished. Their position is taken by what will be similarly the internal walls of the College. The original walls were plastered within, and the same treatment was followed here; in fact, the old example was followed minutely in every particular, with the one exception of the floor. There is evidence that the old floor was of Purbeck marble unpolished—but it was decided that it [138]would be unwise to attempt to replace this, and an oak door has been made instead. The Hall, therefore, is older on the inside than the outside, and this is perhaps as it should be, for it may be claimed that wherever a building be planted its interior can never lose its old associations, but its removal destroys much of the historical significance of the external appearance which rightly belongs to its old site in Bishopsgate.

The most interesting part of the work of rebuilding was not the roof but the little vault over the oriel. No one who had not seen it would believe the wonderful precision and delicacy with which each of its numerous parts fitted into their places. The joints of each rib of Reigate stone were so beautifully cut and had required so little cement to join them together that the original lines drawn upon them by the fifteenth century builders, in setting out, were still plainly visible. Only one temporary support was required beneath the central boss, which is richly carved with Sir John Crosby’s helm and crest. This and one of the similar bosses, which bears an almost obliterated coat of arms, are the only evidences left of the builder of the Hall, since all the stained glass with its heraldic shields has perished. The present glass, the best pieces of which were designed by Willement, is all subsequent to the first quarter of the nineteenth century. Finally Sir John Crosby’s armorial bearings have been used as a basis for the design on the back of the fireplace.

—W. H. G.


THE PALACES OF
HERTFORD AND HAVERING


[140]

Fig. 58.—GATEHOUSE, HERTFORD.


[141]

IX.
THE PALACES OF HERTFORD AND HAVERING.

The two palaces which are the subject of the present article differ from most of those in the neighbourhood of London in being of very early origin, their history in each case stretching back to Saxon times. They differ also from each other, one, Hertford Castle, being a fortress of no mean strength, and the other, Havering Bower, a country retreat entirely without means of defence; while together they present examples of early domestic planning on a large scale such as are, perhaps, available in no other quarter.

The Castle of Hertford was one of a ring of strongholds, of early Norman date, forming an advanced and outer line of defence to the capital. This series began at Windsor and passed via Berkhampstead, Hertford, Stortford, and Ongar to Rayleigh, and in most instances, save for massive earthworks, has left comparatively little trace of its existence.

The remains at Hertford consist at present of the red brick Tudor gatehouse, the ruins of a small tower, and a long line of curtain wall, enclosing broad lawns and gardens, by the side of the River Lea. Hitherto there has been no available information with regard to the internal arrangements of the castle, but amongst the State Papers of Edward VI. is preserved a large scale plan of an important and extensive building arranged for the accommodation of the courts of law. During Tudor and later times the courts were housed at Westminster Palace, and consequently the plan was assumed to represent some portion of that building. I have been able to identify it, however, as a part of the palace of Hertford Castle, to which the courts were temporarily removed in 1582, and again in 1592, owing to the prevalence of the Plague in London.

[142]

Fig. 59.—GROUND PLAN, HERTFORD.

From the

Public Record Office.

The plan, unfortunately mutilated, is the work of H. Hawthorne, who was also employed upon the alterations to Windsor in the early part of Elizabeth’s reign.

Hertford Castle in its early days was evidently a place of considerable strength and importance, for when besieged in 1216 by the forces of Louis of France it held out for twenty-four days, while the neighbouring castle of Berkhampstead (the elaborate earthworks of which remain) was reduced by the same army in a fortnight.

Hertford was the occasional residence of the later Plantagenet and Tudor kings, and was successively held in dower by the consorts of the three Lancastrian sovereigns. Later it was found to be a convenient [143]residence for the children of Henry VIII.—Edward, Mary, and Elizabeth having all resided there at various times during their father’s life.

Fig. 60.—PLAN OF FORTIFICATIONS.

Drawn by

A. W. Clapham.

Five documents in the nature of surveys of the castle exist at the Record Office, dated respectively 1327, 1523, [144]1559, 1589 and 1610. The first of these is the most interesting. The castle then consisted of a great inner ward surrounded by a double moat with a circular shell keep at the north-east angle, and a massive curtain wall. The narrow space between the inner and outer moats was defended by a wooden palisade, and at the western end broadened out into a large outer ward.

Henry VIII.’s survey describes “a fair river running along by the north side of the said castle and arear a very little garden ground, but there is a fair courtyard and large, which is almost finished round about with fair houses.”

By 1610 most of the buildings had been destroyed, and mention is only made of “one fair gatehouse of brick, one tower of brick, and the old walls of the said castle.”

This represents fairly accurately the present condition of the castle. The brick gatehouse, though somewhat altered, is still entire, the outer archway being obscured by a modern porch, while the inner one is converted into a window. Above the former is a sunk panel with the royal arms of the Tudors surmounted by a crown. The “tower of brick” is the great angle bastion shown on the plan. It formed the segment of a circle externally about 60 ft. in diameter, the chord of which is a brick wall which is the only portion of the structure now standing. On the outer face at the southern end are the remains of the circular stair, including a ramped portion of the brick handrail sunk in the wall.

The most noticeable feature of the plan is the extreme thinness of the walls. This can hardly be ascribed to faulty draughtsmanship, as the curtain and bastion walls, together with the fireplace backs, are all shown of reasonable thickness. One is bound to conclude that the whole structure was timber-framed on dwarf walls, the remains of which have from time to time come to light under the present lawn. This would largely account for the continual state of disrepair in which the buildings are found on every occasion on which there is evidence of their condition.

[145]

On the east side of the great courtyard, opposite the gatehouse, stood the hall, a comparatively small building of very early type. The aisled hall is now to be found only in comparatively few instances (as at Oakham and Winchester Castle) and is almost certainly a survival of the Saxon type of wooden structure whose form has been preserved in use almost to our own times in the great timber barns, of which there are numerous examples. The contemporary Norman type is preserved at Richmond, Wolvesley, and Christchurch, and in a number of monastic frater-houses, and was a plain rectangular structure of quite a different character. (Vide ante p. 70.)

The hall at Hertford was only three bays long, with screens and two porches at the northern and a square oriel at the southern end. One large fireplace appears at the back of the dais, and a small lantern in the centre of the roof is shown on Speed’s bird’s-eye view of the town (probably taken just before its destruction, 1610).

The lesser court on the south side was probably of early Tudor date, and evidently had galleries on the first floor with projecting bays, an arrangement similar to that of the second quadrangle of Queen’s College, Cambridge. At the south-eastern angle was a small building projecting into the court and clearly a chapel or oratory.

The arrangement of the kitchen and offices at the north end of the great hall is by no means clear. The only apartment with a fireplace of sufficient dimensions for the kitchen is that marked “Court of Requests,” but the lack of direct communication with the hall itself renders this identification doubtful. In spite of its lack of completeness and the difficulty surrounding it, the plan is of considerable interest both on account of its early form and the importance of the building which it delineates.

The Manor, Palace, or Bower of Havering was, like Hertford, of Saxon origin, but its early history is of far greater interest. It was undoubtedly a retreat of King Edward the Confessor, and some of the best-known legends [146]of the Saxon saint are connected with the Bower House. You may read in Caxton’s Golden Legend of how St. John the Divine appeared in the form of a beggar at the consecration of his chapel here, and of how he received the celebrated ring as alms from the king. It was here, again, at the prayer of the Confessor the nightingales were banished without the pales of the park, lest they should interrupt the royal devotions.

In later times it was a favourite hunting seat for the forest of Hainault, and a long line of Chief Foresters of Essex—Mountfitchets, de Clares, and de Veres—held the office of keeper of the park of Havering.

The place is also closely connected with the history of Richard II.’s treacherous seizure of his uncle Gloucester at Pleshy. It was from Havering he set out to decoy the doomed man from the midst of his family to hurry him to Calais and his death.

During Tudor times the palace, with the neighbouring house of Pyrgo, fell gradually into disuse and disrepair, and a visit of Charles I. in 1637 is the last recorded occasion on which Havering received a royal guest. In the time of the Commonwealth, some twelve years later, we find it described as “being a confused heape of old, ruinous and decayed buildings” of value only as materials. Since that time the destruction has gone on till now no fragment of the old building survives.

The situation of Havering Palace is amongst the most beautiful round London. Some three miles north of Romford, it once crowned a rounded hill about 300 ft. high commanding an extensive view, and was surrounded by a park of 1,311 acres, many of the noble trees of which yet line the lanes and hedgerows of the country-side. The quiet village, with its broad green and ancient stocks, has the unusual merit of being not only entirely unspoiled but almost untouched by the modern builder. The royal demesnes of the Bower and Pyrgo are still represented by the great parks and seats which hem the village in on every side.

[147]

The plan of the ancient palace is preserved in its entirety in two drawings here reproduced—one showing the kitchen court and offices and published as long ago as 1814 in Ogborne’s “History of Essex,” and the second, from the Hatfield MSS., now printed for the first time, showing the main block of the palace buildings. The old royal manor-house was chiefly remarkable for its extreme irregularity, and it is difficult to determine its original form.

It is obviously a building of many dates and the subject of many additions and alterations. The windows of the smaller or private chapel with the bold buttresses appear to be indicative of a thirteenth-century building, while the wooden galleries and stairs are no doubt of Tudor date.

Most of the buildings shown are on the first-floor level. “The Presence Chamber” (40 ft. by 22 ft.) may be taken to represent the original hall with the screens at the west end. Running south from the dais end is “The Great Chamber,” a large apartment (originally 61 ft. by 24 ft.) communicating on the south with the Great Chapel (45 ft. by 16½ ft.) used by the parish and dedicated, in reference to King Edward’s adventure, to St. John the Evangelist.

This building was claimed by the tenants, at the time of the Commonwealth, as the parish church, on the grounds that they had used it time out of mind and, furthermore, that there was another chapel within the palace. They apparently gained their point, and the old edifice remained in part until the erection of the present building.

The plan shows a rectangular structure of three bays, the western one being occupied by the Royal Pew approached by a wooden staircase.

A view of this building, much altered, is given in Ogborne’s “Essex,” from which it appears to have been of fifteenth-century date and to have retained the timber annexe at the western end shown upon the plan.

The modern church which has now replaced it contains a square twelfth-century font and some leger-stones said to have come from the chapel of Pyrgo Palace long ago [148]destroyed. It stands approximately on the site of its predecessor, and is consequently of value in determining the precise site of the palace buildings, which extended to the north-west, the Privy Garden adjoining Havering Green upon the west.

Fig. 61.—HAVERING, GROUND PLAN.

From the

British Museum.

The Second or Private Chapel adjoins the south-west corner of the hall, and is shown in considerable detail. [149]It was lit by four or five windows in the south wall and a trio of lancets with detached shafts at the west end, the whole building being only 32½ ft. by 14 ft.

Fig. 62.—HAVERING, FIRST FLOOR.

From the

Hatfield MSS.

The large block of buildings lying to the north of the Great Hall formed the private apartments of the sovereign [150]and are called “the Queen’s Lodging.” They consist of a privy chamber, withdrawing chamber, bedchamber, closet, and two other apartments, with a private stair leading to the garden.

To the west of this range lay the courts and offices shown upon the second plan. (The original is said to be in the Lansdowne MSS. in the British Museum.) They include the privy kitchen and larder with a small court adjoining, with a long range of timber lodgings stretching southwards, and some of the ground-floor apartments of the main block being also indicated. The whole group forms an example of a large domestic plan of distinctively early type, uninfluenced by any considerations of military defence, and can only be paralleled by the buildings of old Westminster Palace.

The two plans are by the same hand, although the scales differ, for both are signed J. S., presumably standing for John Symonds, the well-known Elizabethan draughtsman, and the second is furthermore named and dated 1578 in Lord Burghley’s hand.

—A. W. C.


THE NEW EXCHANGE IN
THE STRAND


[152]

Fig. 63.—ELEVATION OF BUILDING (c. 1610).

Drawn by

Smithson.


[153]

X.
THE NEW EXCHANGE IN THE STRAND.

In reopening what to many readers may be a long-forgotten chapter in London’s commercial history, I wish to call attention to a beautiful little drawing from the Smithson Collection which has already been published⁠[22] but has not been identified with any known building. It is apparently the original plan and half elevation (to a larger scale) of the New Exchange which the first Earl of Salisbury built in the Strand in 1608 as a rival to the Royal Exchange in the City. The fine drawing and delicate detail of the design will speak for themselves as an illustration of the work of the period, and its value is increased in that the later drawings of the Exchange bear out its general accuracy. The presence of the Cecil arms reminds us of that indefatigable builder Sir Robert or “Mr. Secretary” Cecil, whose activities were not exhausted by his work at Chelsea, Hatfield, and at his neighbouring house in the Strand.

[22] The drawing appeared in a paper by Mr. J. A. Gotch in the Journal of the Royal Institute of British Architects for Nov. 21, 1908. I am indebted to the author and to the Institute for their kind permission to use the block.

I shall not pretend to bring any new information, beyond the plan, to the wonderfully interesting history of this building, for a most exhaustive paper from the pen of Dr. T. N. Brushfield appeared as recently as 1903, and was published in the Journal of the British Archæological Association under the title of “Britain’s Burse or the New Exchange,” wherein the reader will find a very large amount of entertainment and instruction. It may, however, be of interest to recall one or two of the historical facts regarding the site and its surroundings, and to examine the available topographical material.

[154]

Sir Robert Cecil, who built his new house in the Strand in 1602 (where now stands the hotel named after him), was naturally interested in the adjoining property to the west—that occupied by the ancient courtyards of Durham House. The Bishops of Durham had lived in this house for many centuries until they were dispossessed by Henry VIII. Stow says that the house was built by Thomas Hatfield, Bishop of Durham (from 1345 to 1381); but we know that Otho, the papal legate, lived here in 1238, and in the following passage the topographer Norden traces it back to the famous thirteenth-century bishop who built and fortified the manor-house of Eltham, afterwards the royal palace: “This howse, called Durham or Dunelme House ... was buylded in the time of Henry 3 by one Anthony Becke, Bishop of Durham. It is a howse of 300 years antiquitie, the hall whereof is stately and high, supported with lofty marble pillars. It standeth upon the Thamese veriye pleasantly.” Norden wrote in 1593, and he thus places the date of the aisled hall as the latter part of the thirteenth-century, a period which would agree with his reference to Purbeck marble shafts, and with the character of the windows indicated on a sketch-plan of 1626, which we shall consider later on.

The Bishops of Durham returned to the house for a brief period under Mary, and were finally reinstated by James I., after which they continued there until 1640. From 1584 to 1603, however, the house was tenanted by Sir Walter Raleigh, who, says Aubrey, “lived there after he came to his greatness.” He adds, “I well remember his study, which was on a little turret that looked into and over the Thames, and had the prospect which is as pleasant perhaps as any in the world.” During this period, in 1600, the buildings of the outer courtyard facing the Strand were destroyed by fire, and it was these ruins which Cecil replaced by his New Exchange when he purchased the frontage in the first years of the reign of King James.

[155]

Fig. 64.—DURHAM HOUSE AND SALISBURY HOUSE.

Drawn by

Hollar. (Pepysian Library, Cambridge.)

[156]

Fig. 65.—DURHAM HOUSE.

Map by

Faithorne.

Fig. 66.—WEST CENTRAL LONDON.

Map by

Hollar.

[157]

The principal apartments of Durham House lay right on the river bank and occupied the position of the present Adelphi Terrace. The relative position of this Gothic building and Salisbury House is well shown in one of Hollar’s charming little riverside views, a facsimile of which we reproduce here with the kind permission of the Trustees of the Pepysian Library, Cambridge. The drawing shows the gables of the New Exchange appearing over the top of the older buildings. Another drawing of Hollar’s—that beautifully executed map of the west-central part of London—gives us in its extreme south-west corner a good idea of Salisbury House, and the three buildings are shown with less care in Faithorne’s valuable panoramic map of London. A plan in Strype’s Stow (ed. 1720) gives miniature drawings of the buildings of the Exchange and Cecil’s house, and shows also the tower-shaped river gateway which stood in the garden of the latter, and of which particulars are preserved in the Record Office under date 1610, being a “Specification of a plan by a Mr. Osborne, for making a portico at the south end of the Earl of Salisbury’s garden in the Strand.”⁠[23]

[23] Vide Wheatley and Cunningham, London Past and Present .

Fig. 67.—MS. PLAN OF DURHAM HOUSE AND THE NEW EXCHANGE (1626).

Much, however, as we are helped by the skill of Hollar and Faithorne to feel some little of the atmosphere of this historic site on the river bank, we were fain to have some more detailed knowledge of the homes of Sir Robert Cecil and Sir Walter Raleigh. Some fortunate chance may perhaps yet bring more information in the course of further research. Dr. Brushfield indeed has been able to take us one step in this direction in his discovery of a curious sketch-plan of Durham House and the New Exchange, made in 1626, and preserved in the State Paper Office. “It was apparently made,” he says, “to assist the enquiry into some tumultuary proceedings that took place on February 26th of that year at Durham House, then the residence of the French Ambassador, incident to the [159]attempted arrest of some English Roman Catholics who had attended service in the Ambassador’s private chapel there.” As will be seen by the simplified tracing which is reproduced with this article, it is of the rather tantalising form which combines elevations with the plan, and which scarcely gives us accurate details of the arrangements. We can see, however, that it was once a noble house with two large courtyards and imposing gateways. Its great hall and lofty range of apartments towards the east are clearly indicated, and the position of the chapel is well shown, a building which we are just able to distinguish in Norden’s well-known view of Westminster. This plan of 1626, moreover, in giving us an idea of the fine thirteenth or fourteenth-century windows of the great hall, enables us to understand Hollar’s sketch of the river front more clearly. The arches, which Wilkinson, in his interpretation of Hollar in Londina Illustrata , took to be corbelled supports for the battlements, are clearly the windows of the hall which appear over the low curtain wall against the water’s edge. Wyngaerde’s view of London shows the river front⁠[24] and also the Great Gatehouse.

[24] Wyngaerde’s view of Durham House has been sometimes described in error as the Hospital of St. Mary Rouncevall. The hospital is, however, more probably the small building which he shows to the west.

Nor are the suggestions regarding the way in which the rest of the site had been disposed less interesting. “Britain’s Burse” or the New Exchange fills that part of the frontage to the Strand which lies between “the Great Street Gate” and the boundary of the York House property on the west, while the “Common Passage from the Water’s Side” which passed along the rear of the Exchange and down the boundary to the Thames is plainly if not accurately indicated. This passage, shown also on the Smithson plan, led to the river stairs which Hollar places beneath the western tower of Durham House.

Sir Robert Cotton’s house presents at first sight a difficulty. It is shown on the plan of 1626 as lying westward [160]of the boundary within the York House property, but this appears to be a draughtsman’s error. Dr. Brushfield cites the lease (1608–9) “to Thomas Wilson of the Strand” of what is evidently this plot of land “lyeinge and beinge on the south side of the new buildinge lately erected and new builte by the Lorde Treasuror where Durham Stables did stande towardes the west ende of the same new buildinge next to the wall which divideth Yorke garden from Durham Yarde.” The plot measured 8 yards from the New Exchange southwards, and 7 yards from the York garden wall eastwards towards Durham Yard, and Wilson covenants not to build within 6 ft. of any window of the new building. Wilson built his house on this diminutive plot, and in 1618 he sold it for £374, the conveyance, as quoted by Dr. Brushfield, giving further evidence of its exact position, thus: “All that messuage or tenement with a garden ... together with one little yard lying upon the west syde of Durham House ... abuttinge on Brittaine Burse there on the North, the garden of the capital messuage called York House on the part of the West and on the passage leadinge from Brittaine’s Burse to the Ryver of Thames on the parte of the East and South.” The last words show that the passage skirted Wilson’s garden on two sides, and this is borne out by the break in the wall of Durham Court shown in the Smithson plan, the site having evidently been enlarged by purchase since the date of that plan at the expense of the area of the outer courtyard. In the 1626 plan, Sir Thomas Wilson, who was in the service of Cecil and was the first manager of the Exchange, is shown as occupying another house near Durham House Chapel. He seems to have built it before he disposed of his first house, which, as we have seen, was occupied in 1626 by Sir Robert Cotton.

Fig. 68.—PLAN OF NEW EXCHANGE (c. 1610).

Drawn by

Smithson.

Fig. 69.—THE NEW EXCHANGE.

Drawn by

T. Hosmer Shepherd.

Fig. 70.—PLAN OF SITE OF DURHAM HOUSE (Stow’s Survey Ed. 1720).

As regards the fabric of the New Exchange itself, we can see by the Smithson drawing that it was originally intended to be of two storeys in height, with elaborate central and end gables (apparently having false windows) [163]and two small intermediate gables. The elevation to the Strand was skilfully designed, the building having two open arcades of six round arches on the ground floor placed between the end and middle blocks. The front was decorated with two orders of pilasters, superimposed, and the windows of the first floor were circular-headed where they appeared over the arches below, but were square below the gables. Entrances were arranged through the eastern and western arch of the arcade and through a similar archway in the centre.

That this design was carried out is evident from the careful water-colour drawing of T. Hosmer Shepherd, which, though drawn many years after the destruction of the building, must have been based on an actual view. The Exchange is here shown with an attic storey, and the Jacobean gables have disappeared in the general remodelling of the upper part, which, with its long cornice and dormer pediments, suggests the early part of the eighteenth century. An intermediate stage is represented in an engraving reproduced by Dr. Brushfield, where the attic storey is also shown, but the first-floor windows are still with circular heads, and the little medallions of the Smithson plan still appear. The pilasters, however, are lacking above the arcade, and it is possible that these were omitted from the first.

The internal arrangements of the Exchange show an inner and outer walk which was repeated on both floors, each walk being occupied with small booths or shops, the space allowed for the latter being 8½ ft. and for the walk 10 ft. A large number of small traders, such as jewellers and milliners, took advantage of this method of showing their wares, which was already in vogue at the Royal Exchange, and James I. followed Elizabeth’s precedent in regard to the latter building by opening it in person, naming it at the same time “Britain’s Burse.” At one time, notably at the Restoration, the place became very fashionable, and the trade was extremely brisk. A [164]basement (the steps to which are shown at the back of the building in the 1626 plan, and are marked “the alehouse where the priest was taken”) was let as a tavern, and here, too, it seems that Pepys went for his daily glass of whey when that drink was in fashion. The “taverne underneath” is referred to in a series of verses entitled “The Burse of Reformation” (1658), written in alternate praise and depreciation of both the old (Royal) and the New Exchanges. The slope of the bank towards the river would probably raise this basement largely above ground and give the Exchange the appearance of an extra storey towards the south.

The New Exchange undoubtedly proved a great success, and its principle of including many shops under one roof has been often imitated down to our own day, although the great Stores are now doing the same thing more completely under one ownership. We are told that it fell in popularity after the accession of George I., and in 1737, after an existence of 128 years, it was taken down. As one of the well-known resorts of fashion of the seventeenth century it has an important place in the contemporary dramatic and periodical literature, and several books bear the imprint of publishers who hung out their signs at Britain’s Burse. The Smithson drawings are therefore a welcome addition to our information, and are interesting in giving us the architect’s own draft of a Jacobean building of somewhat singular requirements.

—W. H. G.

ST. JOHN OF JERUSALEM,
CLERKENWELL


[166]

Fig. 71.—THE MONASTIC BUILDINGS.

Drawn by

Hollar.


[167]

XI.
ST. JOHN OF JERUSALEM, CLERKENWELL.

Of the numerous and varied by-products of the Crusading spirit, none possess a greater fascination and interest than those extraordinary associations known as the Military Orders. The combined influences of fanaticism and military ardour succeeded in uniting in them the ascetic and the soldier, with so marked a success that their vital force was not finally extinguished until ages after the whole fabric of mediævalism had crumbled away and the Knights of Malta were one of those hoary anachronisms which, like the Holy Roman Empire, were swept ruthlessly away by the new broom of the Napoleonic wars. Of the two great orders the Templars, largely, perhaps, owing to their early and tragic end, have always attracted a greater proportion of attention, and in London their name and memory are kept green by the church and precinct which are still with us. The Hospitallers, on the other hand, are in great measure neglected, as comparatively little is left of their London house to show the extent and magnificence of the great dwelling in Clerkenwell of the Grand Prior of England, who took precedence of all the temporal members of the House of Peers.

The loss that English architecture suffered by the destruction of this building can only be appreciated when one considers that the Priory of St. John of Jerusalem stood alone and unique. The requirements of the order demanded a building equally apart from the usual monastic plan and from the purely secular establishment, and the direct and continuous connection of the order with the East would argue the existence of ideas and arrangements more foreign and less insular than are observable in contemporary English work.

Up to the present the information available as to the buildings of the Hospitallers has been practically nil, a [168]couple of drawings by the indefatigable Hollar being the only record of their appearance.

Amongst the MSS. of Loseley Hall, that collection which has already supplied so much information on London topography, is a short document giving a complete list of the buildings with their approximate dimensions. The survey is one of a numerous class taken at the time of the general suppression in order to arrive at a valuation of the lead from the roofs of the dissolved monasteries. That the surveyor did his work with great care and accuracy is evident from the minute nature of some of the entries, and even the gutters and down-pipes are all included in the estimate. The survey, of course, fails us in regard to the arrangement of the various buildings, and so little is known of structures of this class that it is impossible to argue by analogy. The buildings of the order at Rhodes have been the subject of a recent monograph, but here the “auberge” of the English “langue” is amongst the most fragmentary and ruinous, while the palatial dwellings and gorgeous church at Malta have little bearing on the subject, as they are of late construction and the English “language” was then extinct. Schloss Marienburg in Prussia, the headquarters of the Teutonic order, is perhaps the best preserved of these structures: and here the main building follows the ordinary monastic plan, with such modifications as were necessary to secure also a fortress of no mean strength.

The London church of the Hospitallers has passed through more vicissitudes than almost any other building in the city. Founded during the reign of Stephen, the first building had a circular nave 65 ft. in diameter and a short choir, with a crypt under, probably terminating in an apse.⁠[25]

[25] The foundations of the “Round” have been partially uncovered, and it must have been similar in character and dimensions to the Temple Church. The remains of a third circular church, the first home of the Templars in London, were discovered, many years ago, on the south side of Holborn, so that the metropolis once possessed three buildings of this class.

[169]

Fig. 72.—PLANS SHOWING DEVELOPMENT OF THE CHURCH.

1. c. 1150 2. c. 1185 3. c. 1540

Drawn by

A. W. Clapham.

[170]

Fig. 73.—THE CRYPT, LOOKING EAST.

Photograph by

H. W. Fincham.

[171]

Towards the close of the century the proportions of the choir proved insufficient, and a large aisled structure, four bays long, was raised in its place, being duly consecrated by Heraclius, Patriarch of Jerusalem, in 1185. The church remained in this form until the rising of the commons under Wat Tyler in 1381, when the rebels, besides murdering the prior, set the house on fire, “causing it to burn by the space of seven days together, not suffering any to quench it.” The round nave was never rebuilt, its successor being a rectangular three-aisled building with a magnificent tower at the north-west corner. At the dissolution in 1540 the house was not touched, but a few years later the nave with the great tower fell a victim to Protector Somerset. The choir was walled in and again applied to its original purpose during Queen Mary’s reign, but once more desecrated under her successor. It served in turn as a private chapel and a dissenting meeting-house until 1721, when the remains, patched and repaired, became the parish church of St. John’s, Clerkenwell.

The crypt under the present church is the finest of these structures still standing in London. It is of two dates, the western portion of the central aisle being contemporary with the foundation. The quadripartite ribbed vaulting with broad responds and transverse bands between the bays belongs to the simpler type of Norman work. The two eastern bays with the flanking chapels were added when the aisled choir was built above (1185). The pointed vaulting springs from clustered shafts, and the whole is an elegant example of transitional work of the same date and character as the still existing “Round” of the Temple Church. Of the aisled choir above, the outer walls and the bases of the columns remain, but this part of the building underwent extensive alteration under Prior Thomas Docwra (1501–27), who inserted the windows and constructed two buildings against the south wall. Both of these can be identified from the Loseley Survey as the vestry on the east and “My lord Dockerys chappell.” The latter was [172]entered by two wide brick arches piercing the side wall, the earlier buttresses between being pared away at the angles to form semi-octagonal piers.

The nave of the church was also of three aisles, the length of the leads being respectively thirty, twenty-nine, and twenty yards. The discrepancy of the north aisle is accounted for by the presence, at its western end, of the great tower, described by Stow as “a most curious piece of work graven, gilt, and enamelled, to the great beautifying of the city.” The tower was evidently about ten yards square, and its position is still marked by a set-back in the existing building line; the lead from the steeple was about the same in quantity (five fothers) as that covering one of the side aisles.

The later work in the church all dates from the foundation of the parish in 1721. The massive carved hood over the west door is an admirable piece of woodwork of that date, the carved panel of the three Saints John in the door-head being a modern addition.

The simple and unpretentious reredos is a no less satisfactory example of early eighteenth-century work, but the remainder of the building calls for little remark, the plain west front and galleried interior presenting no features of special interest.

Turning now to the domestic portion of the “hospital,” we find an extensive range of embattled buildings, with a pleasantly diversified outline, depicted in Hollar’s view on the north side of the church, and there is little doubt that the principal apartments occupied this side.

Fig. 74.—EAST END OF CRYPT.

Photograph by

H. W. Fincham.

Fig. 75.—SOUTH CHAPEL, CRYPT.

Photograph by

H. W. Fincham.

Fig. 76.—WEST FRONT OF CHURCH.

Photograph by

H. W. Fincham.

Fig. 77.—WEST DOOR OF CHURCH.

Photograph by

H. W. Fincham.

Fig. 78.—FIREPLACE, ST. JOHN’S GATE.

Photograph by

H. W. Fincham.

Remains of vaulted substructures, on the opposite side of St. John’s Square, prove, however, that the buildings extended far beyond the destroyed nave in this direction. The Loseley Survey apparently starts with the buildings shown by Hollar and passes westward. The first building mentioned is a house called the Priests’ Dorter, 120 ft. long, and evidently the dormitory of the knights; next follows the “Armoury,” 54 ft. long, and very narrow, as the roof [177]measures only 9 ft. on either side of the ridge. The great chamber with other apartments formed a block 120 ft. long, with the great staircase, 24 ft. by 18 ft., at one end of it. Connected with these buildings were numerous smaller chambers, the use of which is generally unspecified, but evidently offices, as they include a “stillitorne,” or distillery, a “comptyng house,” and the wardrobe. The Prior’s Lodging contained a parlour and “my lordes chamber,” and the great hall was a magnificent apartment 105 ft. in length.

Towards the end of the list mention is made of “a tyled rooffe which was called the Yeoman’s Dorter,” so that the house at Clerkenwell contained definite accommodation not only for the knights but also for a lower grade, the yeomen, who were perhaps body servants and attendants.

The great gate of the precinct which still spans St. John’s Lane was built by Prior Docwra, and though drastically restored is still in outward appearance largely as he left it. The finely ribbed vault to the gate itself is untouched, and the interior contains many remains of ancient work. Chief among these is the handsome carved fireplace originally in the “Baptist’s Head” tavern, and bearing the arms of Sir Thomas Forster, who died in 1612. The carving on the frieze is of considerable delicacy, and the design is quite unusual.

It is a singular fact that only two representations of members of the order have survived in English monumental art, namely, an emaciated figure to Prior Weston in St. James’s, Clerkenwell, and the effigy of Prior Fresham at Rushton (Northants). The former died within a few months after the suppression of his house, and the remainder of his monument was removed when St. James’s Church was rebuilt.

The smaller establishments of the Knights Hospitallers in England have suffered even more than the mother house, and their remains are few and inconspicuous. The circular [178]church of Little Maplestead, Essex, is, however, an exception, and the building has suffered far more from restoration than decay. The three “Early English” chapels at Moor Hall (Middlesex), Swingfield, and Sutton-at-Hone, Kent, are also relics of the order, and the little establishment at Chibburn, Northumberland, is still almost complete; but though not lacking in individual interest, they were at best but granges of the great dwelling at Clerkenwell, which was the combined recruiting and receiving house of the order in England.

—A. W. C.


NORTHUMBERLAND HOUSE,
STRAND


[180]

Fig. 79.—NORTH FRONT (BEFORE 1874).

Photograph by

London Stereoscopic Co.


[181]

XII.
NORTHUMBERLAND HOUSE, STRAND.

Of olden time London’s great highway was the Thames, and this important fact must be remembered when we would cast our minds back to the times of Hollar, who portrayed our picturesque city with such infinite art. So busy was the traffic that Stow tells us in the year 1598 “that, omitting to speak of great ships and other vessels of burthen, there pertaineth to the cities of London, Westminster, and the borough of Southwark, above the number, as is supposed, of two thousand wherries and other small boats, whereby 3,000 poor men, at the least, be set on work and maintained.” Nor does this include, presumably, the barges of state and those of the noblemen and rich citizens, to whom the barge was as important a possession as the motor-car of to-day, and an object of even greater pride. The changed position and character of the main artery of the city’s life and movement is responsible—perhaps as much as the passing of its ancient buildings—for the difficulty which we of the present day experience in attempting to enter into the spirit of mediæval and Tudor London.

As was natural, the northern bank of the great highway of the Thames held the most coveted sites for the residences of kings, nobles, and prelates. William FitzStephen, in his oft-quoted description of London towards the end of the twelfth century, tells us that “nearly all the bishops, abbots, and magnates of England are, as it were, citizens and freemen of London, having there their own splendid houses to which they resort, where they spend largely when summoned to Great Councils by the King or by their Metropolitan, or drawn thither by their own private affairs.” From the “Palatine Castle”—the Tower of London—in the east, to the western limits of the city and its liberties, the bank was furnished with fine buildings. “Also upwards [182]to the west the Royal Palace [Westminster] is conspicuous above the same river, an incomparable building with ramparts and bulwarks, two miles from the city, joined to it by a populous suburb.”

As early, then, as 1190 the Palace of Westminster was joined to Temple Bar by a “populous suburb” of houses, described later by Stow as “memorable for greatness,” that looked on to the fair “river of Thames.” The Elizabethan chronicler gives us an interesting account of them in his day. After the new Temple, going westwards, one came upon Essex House, formerly built by the Bishops of Exeter and again new-built by an Earl of Leicester before the Earl of Essex lodged there and gave it the name which the street on its site still bears. Next was Arundel House, first built by the Bishop of Bath, and increased under the occupation of Lord Thomas Seymour, Admiral. Here again the present Arundel Street preserves the name of the Earl who lived there in Stow’s time. West of this was Somerset House, built first by Edward Duke of Somerset in 1549—a building of princely size, upon the site of which stood formerly an Inn of Chancery called Strand Inn—and the three houses of the Bishops of Llandaff, Chester, and Worcester. Beyond the Bishop of Worcester’s stood the great Hospital of the Savoy, founded by Henry VII. on the ruins of the beautiful palace which had had a chequered history since its erection in 1245 by Peter of Savoy. Next came the Earl of Bedford’s house, formerly the London home of the Bishop of Carlisle, and adjoining it the large and stately house of brick and timber the work of Sir Robert Cecil, builder of Chelsea House and Hatfield. The great hotels, the Savoy and the Cecil, still witness to the importance of these river sites, the beauty of which, however, has in such large measure departed. Another bishop, the Bishop of Durham, had the next house to Cecil’s. (Vide ante p. 154.) Then came the house formerly of the Bishop of Norwich, but in Stow’s time belonging to the Archbishops of York, and called of them York House. It came later into [183]the hands of the Duke of Buckingham, and the little water-gate in the Embankment Gardens—still called York Stairs—together with the names of Buckingham and Villiers Streets, commemorates its vanished glories.

York House seems to have been the last of the great houses on the riverside until one came to the precincts of the Palace at Whitehall, but between it and the Palace we learn there were “divers fair tenements lately built,” and also “an Hospital of St. Marie Rouncivall by Charing Cross where a fraternity was founded in the fifteenth of Edward IV., but now the same is suppressed and turned into tenements.” Thus Stow describes the site on which, within seven years of the date of his survey, was to rise the magnificent house of the Earl of Northampton, afterwards occupied by the Percies, and since known as Northumberland House. It remained the principal landmark at Charing Cross until its ruthless destruction in 1874, when it followed the fate of the old hospital, being in its turn “suppressed” and its site disposed among the buildings of the new Northumberland Avenue.

Much as we may regret the sacrifice of this commanding building and all the associations which clung to its fabric, we must remember that it had suffered considerable rebuilding since its first erection in about the year 1605, and even the famous front to the Strand was chiefly an eighteenth-century restoration. The history of the mansion has been hitherto far from clear, but the recent discovery of a contemporary plan of what appears to have been its original arrangement affords an opportunity for a new examination of the little evidence which we have. The plan referred to, and reproduced here by the very kind permission of its present custodian, belongs to the interesting collection of drawings, attributed to one of the Smithsons (a well-known family of architects of the reigns of Elizabeth and James), which was once in the possession of Lord Byron and is now preserved by Colonel Coke at Brookhill Hall, Alfreton. It will be remembered that [184]Mr. J. A. Gotch brought these drawings before the notice of the architectural world some short time ago, by reading a most instructive paper upon them before the Royal Institute. Mr. Gotch was kind enough to draw my attention personally to this plan, which was entitled “The Platforme of my Lord of Northampton’s house in London.” The plan was not dated, but other drawings in the same collection bear dates ranging from 1599 to 1632, and it therefore seems pretty certain that it refers to the house built in the Strand by Henry Howard, Earl of Northampton, about the year 1605. Since, on Northampton’s death in 1614, the house changed its name to Suffolk House, we can safely refer the drawing to the period between 1605 and 1614—and its careful delineation of the garden makes it probable that it is a copy of a drawing prepared to show the design for the general lay-out of the grounds. There is a MS. note by Inigo Jones in his copy of Palladio which is preserved at Worcester College, Oxford, to the effect that the frontage of Northumberland House towards the Strand was 162 ft. long, and that the courtyard was 81 ft. square. The former measurement is exactly borne out by the plan, but the courtyard is drawn and figured as 90 by 86 ft. It is possible that Inigo Jones’s figures were taken between the projecting bay windows and porch.

Of the exterior of Northumberland House in its earliest days we have no drawing, but among a very precious little collection of diminutive drawings by Wenceslaus Hollar, preserved in the Pepysian Library at Cambridge, is a delightful sketch of Suffolk House as it was then called. Wilkinson in his Londina Illustrata published an engraving based on this drawing, but I do not know that the original has been reproduced before. I have, however, been able to obtain by the kind permission of the trustees a direct photograph of Hollar’s sketch, which is reproduced here with Wilkinson’s engraving, and shows, even with so slight a rendering, the charming delicacy and picturesqueness of the artist’s work. Hollar seems to have made these [187]and the companion sketches with a view to his large panoramic drawing of London which was published shortly after the Great Fire, and in which one can easily see how the sketch has been utilised in regard to this particular subject. It would represent the house, therefore, some fifty years after its first building.

Fig. 80.—PLAN IN THE SMITHSON COLLECTION.

Fig. 81.—VIEW FROM RIVER (c. 1650).

Drawn by

Hollar.

Before examining the plan and drawings in detail it may be as well to state briefly the successive occupants of Northumberland House, as we shall have something to say on the changes which certain of the owners are credited with having made in the form of the building. The builder of the house was, as already stated, Henry Howard first Earl of Northampton, the son of Henry Howard Earl of Surrey the poet, and the founder of the three hospitals dedicated to the Holy Trinity at Castle Rising, Clun, and Greenwich. (Vide p. 229.) Letters from the Earl are known to have been written from the house in 1609, and in 1614, at his death, the property passed by will to his nephew Thomas Howard Earl of Suffolk, one of the heroes of the Armada. Northampton House changed its name to Suffolk House during its occupation by himself and his son the second Earl, and soon after the death of the latter it passed by the marriage of his daughter Elizabeth to Algernon Percy, tenth Earl of Northumberland. The new owner of the house—called by Clarendon the proudest man alive—was a son of the “Wizard Earl” who spent sixteen years of captivity in the Tower of London because of his supposed connection with the Gunpowder Plot, and in 1612 the son had joined his father in the Tower in order that his education might be properly supervised. The ninth Earl had moved his home from Blackfriars to Russell House, St. Martin-in-the-Fields (perhaps the same mansion which was called by Stow “Russell or Bedford House,” formerly the Bishop of Carlisle’s “Inn,” to which we have already referred), and had also resided for some time in Essex House. Another river residence, Syon House, Isleworth—still one of the seats of the Duke of Northumberland—was also presented [188]to the “Wizard Earl” by James I., the year after his accession; and when Lord Hay, the future Viscount Doncaster and Earl of Carlisle, was courting Northumberland’s daughter he took a little house in Richmond Park, and we read that his barge came and went twice a day between Richmond and Isleworth.

The marriage settlement of 1642 between Algernon Percy, the tenth Earl of Northumberland, and his bride, the Lady Elizabeth Howard—who was, by the way, granddaughter of the Earl of Northampton—arranged for the transference of Suffolk House to the bridegroom in return for the sum of £15,000. Gerald Brenan in his History of the House of Percy states that the name of the mansion was straightway changed to Northumberland House, but we have the evidence of Evelyn’s Diary and Hollar’s inscription which testify to the persistence of the name of Suffolk House for many years later. Algernon Percy was succeeded by Josceline the eleventh Earl, who died in 1670 and left an only daughter Elizabeth. The house passed out of the Percy family with her marriage in 1682 to Charles Seymour, Duke of Somerset. Since there was already a Somerset House in the Strand it is probable that the mansion was still called Suffolk House, but in 1749 the Duke’s son Algernon, who had succeeded his father the year before as seventh Duke of Somerset, was created Earl of Northumberland with remainder to Sir Hugh Smithson, who had married Lady Elizabeth Seymour, his only surviving child. Sir Hugh on his succession to the earldom assumed the name and arms of Percy, and in 1766 he was raised to the dukedom. From this time the house was certainly called Northumberland House until the time of its compulsory sale in 1873 and its demolition in the following year. Thus on three occasions an heiress of the name of Elizabeth carried the mansion with her dower.

With this historical framework before us, let us now examine briefly the plans and drawings of the building. It has been freely stated that the plan of “Northampton [189]House” as first built constituted only three sides of a quadrangle, and that Algernon Percy, the tenth Earl of Northumberland, added the fourth side towards the river, employing as his architect Inigo Jones. The reason given for this enlargement was that the principal apartments formerly faced the Strand, but that the Earl, desiring greater privacy, removed them to the river front. On the face of it this story seems highly improbable, for a house of this size and position would naturally be approached by a gateway on the north side towards the Strand, and its great hall would be as certainly in the southern range. The plan from the Smithson collection shows this arrangement just as we might expect—the hall, a noble apartment of 73 by 43 ft., having the mediæval form and shape and being screened by a loggia or “cloyster” quite in keeping with the fashion during the opening years of James I.’s reign. It seems scarcely possible that the planning of the southern range as shown here could be by Inigo Jones, especially at so late a date in his career as 1642, and indeed all the evidence of the plan, besides its inscription, tends to support a much earlier period. It remains only then for the sceptic to suggest that the original design of the house was not completed, but we must remember that we have Hollar’s evidence for the southern staircase towers, and it seems more than probable that any work by Inigo Jones must have taken the form of a rebuilding or merely a new facing to the front. The Strand elevation became so famous that Walpole attributes its design to Bernard Jansen and Gerard Chrismas. It must originally have been as fine a composition as any Jacobean building could show. The centre or gatehouse of four storeys, flanked on either side by bold double pilasters, each pair separated by niches, was furnished with a fine oriel window over the archway like those at Burghley and Bramshill.

At the extremities of the front rose the two characteristic towers, carried up two storeys above the roof and furnished [190]with fine lead cupolas; and between the towers and the gateway the intervening wall was divided into three storeys, the upper two being pierced with windows and the ground floor having recessed niches set in square frames. Above was a parapet formed of letters, for Evelyn tells us, when on a visit to Audley End (August 31st, 1654), that “instead of rails and balusters there is a border of capital letters as was lately also on Suffolk House, near Charing Cross.” From the register of burials in St. Martin’s-in-the-Fields we learn, too, that at the funeral of Anne of Denmark a young man was killed by the fall of the letter S from this parapet. It has been stated that part of the letters C Æ remained after the removal of the rest, and Vertue, and Walpole following him, interpreted them as standing for “Chrismas ædificavit.”

It is quite possible that in 1642 the Earl of Northumberland employed Inigo Jones to design some alterations in the house, the more so as we find the general dimensions figured in the famous architect’s own handwriting in his copy of Palladio already mentioned. But I very much doubt whether he really rebuilt the garden front. Inigo Jones died in 1652, and on June 9th, 1658, we find the following note in Evelyn’s Diary: “I went to see the Earl of Northumberland’s pictures, whereof that of the Venetian Senators was one of the best of Titian’s.... This was in Suffolk House: the new front towards the gardens is tolerable, were it not drowned by a too massy and clumsy pair of stairs of stone without any neat invention.” Evelyn is evidently referring to work which had just been executed, and not to an alteration of some fifteen years before. Hollar’s view, too, suggests that the earlier design had been little altered, and his drawing was probably not executed until after Inigo Jones’s death.

Fig. 82.—VIEW FROM RIVER (c. 1650).

Engraved in

Londina Illustrata.

Fig. 83.—NORTH FRONT, AFTER CANALETTO.

We have now to come to eighteenth-century records. An engraving by J. Maurer of Charing Cross in 1740 is the earliest view of the Strand front. The very beautiful drawing by Canaletto, an engraving from which is [193] reproduced on p. 176, shows the same view in 1753, apparently after the front had been rebuilt by Daniell Garrett in 1748–50. The famous lion of cast lead appears here over the centre of the building. It was erected in 1752, and is now preserved at Syon House. On March 18th, 1780, the street front was badly damaged by fire, and was again rebuilt. Its final appearance can be seen from the photograph, with its towers lowered one storey and its whole appearance reduced in picturesqueness, save perhaps where some lingering suggestion remains of its past beauty, within its central group of bold pilasters.

Of the house and its courtyard Seymour, following Strype, wrote in 1735: “A noble and spacious building, having a large square court at the entrance, with buildings round it, at the upper end of which court is a Piazza with buildings over it sustained by stone pillars, and behind the buildings there is a curious garden which runneth down to the Thames.” There is a view of the south front by S. Wale (1761), which if it shows anything of the work which Evelyn criticised will explain the half-hearted praise which it met with from this competent critic. In it we miss the southern towers, which had no doubt been destroyed, but two ungainly wings extend themselves at either side towards the river. A pavilion and wings were designed by Mylne, and a drawing-room by Robert Adam. From Skinner’s History and Description of London and Westminster (1795) we learn that the two wings extending towards the river were 100 ft. long or over; indeed, the left wing was “a state gallery or ballroom, 106 ft. long, the breadth being a fourth part of the length and the height equal to the diagonal of the square of the breadth”! This room had nine windows towards the garden, and over the cornice another row of lights. Altogether the house had 140 rooms, and the last disposition of its buildings may be seen on Horwood’s large plan of London (1799). The pretty garden of the Smithson plan, which afterwards Evelyn commended for its tastefully arranged terraces and [194]copses, had become but a “fine lawn surrounded by a neat gravel walk and boarded next the walls by a border of curious flowers, shrubs, and evergreens.” It was this garden which Evelyn specially mentioned as the occasion of his quaint little work entitled Fumifugium , where he speaks of its flowers as “wrapped in a horrid cloud of smoke, issuing from a brewery or two, contiguous to that noble palace.” We fear the smoke, in spite of his serious protest, is still with us, but the more substantial palace has disappeared and is but a memory.

Robert Adam’s contribution to the sumptuous design of the various interiors of Northumberland House must have been of a very important character. We owe to the painstaking and minutely particular drawings of the Adam brothers, and to the care of Sir John Soane, the fact that the substance of the chief designs executed there remains in safe keeping. Adam was employed by the Duke of Northumberland on very extensive schemes, both at Alnwick and at Syon, and it was evidently intended that his London residence should not be overshadowed by either of his country seats. At the Soane Museum are drawings of the ceilings of both the drawing-room and the dining-room, from which we may see that the former apartment measured 35 ft. 10 in. by 21 ft. 9 in., and the latter 45 ft. 4 in. by the same width. The designs for the ceilings are very elaborate—there being two drawings for the drawing-room, the richest of which is marked as executed. In addition to the last-named there are internal elevations of the drawing-room, showing on one side four lofty windows with mirrors between, and on the other side an elaborate fireplace. Three other drawings for this fireplace are also included, showing quite a different design in considerable detail, even to a complex pattern in marble for the hearth, and this is the one that seems to have been carried out. The drawings show Adam’s fertility of invention and deftness in arrangement at their best, and if any of the features of these rooms have been preserved it would be interesting [195]to compare the charming character of the drawings with their actual execution in marble.

One other relic of the house is said to exist in the East End. In the gardens of Tudor House, Bromley-by-Bow, is a large stone gateway, which, it is stated, was removed from Northumberland House at the time of its demolition (vide The Parish of Bromley-by-Bow , The Survey of London, Vol. I.).

—W. H. G.


THE ABBEY OF BARKING,
ESSEX


[198]

Fig. 84.—REMAINS OF SOUTH TRANSEPT.

Photograph by

A. P. Wire.


[199]

XIII.
THE ABBEY OF BARKING, ESSEX.

The Benedictine nunnery of Barking stood upon the eastern bank of the river Roding, about a mile above its confluence with the Thames. The precise date of its original foundation is a little uncertain, but probably the correct date is that given in the Chertsey register, namely 666.⁠[26] In any case, it was before the founder, St. Erkenwald, became Bishop of London in 675. The Venerable Bede gives the following account of the circumstances:⁠—

This man (St. Erkenwald), before he was made bishop, had built two famous monasteries, the one for himself and the other for his sister Ethelburga, and had established them both in regular discipline of the best kind. That for himself was in the County of Surrey, by the River Thames, at a placed called Chertsey: that for his sister, in the province of the East Saxons, at the place called Barking, wherein she might be a mother and a nurse of devout women.

[26] Brit. Mus., Cott. MS., Vit. A. 13.

Bede makes but slight reference to the buildings of the convent, but mentions “the narrowness of the place where the monastery is built,” which hardly seems applicable to the present site. It is possible, therefore, that the first position was subsequently abandoned. It may be gathered, further, that the chapel of the convent was dedicated to St. Mary the Virgin and that the nuns’ cemetery lay to the west of it.

The next event in the architectural history of the house is its destruction by the Danes in 870. The pagan army had destroyed the convents of Northumbria and, passing southwards, had devastated the great Fen monasteries, Barking sharing the same fate shortly afterwards. It lay waste for about a century, until the reign of Edgar the Peaceable, when one of that monarch’s recurring fits of repentance moved him to rebuild the abbey. He had taken, it appears, a certain nun, Wulfhilda, by force from [200]the abbey of Wilton; and, in reparation, he refounded and endowed the convent at Barking, placing Wulfhilda at its head. Probably, at this period, the name of the first abbess, St. Ethelburga, was included in the dedication.

The house was almost certainly rebuilt early in the twelfth century, when, under a succession of royal and distinguished abbesses, it enjoyed the zenith of its prosperity. The final dedication of the abbey church took place in the time of abbess Mabel de Bosham (1215–1247).⁠[27]

[27] Dugdale’s Monasticon , i., p. 441: 1817.

From this time to the Dissolution, the architectural history of the house is almost a blank, the only record of importance being a licence, dated 24th April, 1319, to the abbess “to fell 300 oaks in her wood of Hainault, for repair of the Church of her Abbey and divers others houses of the Abbey, which are in ruins.”⁠[28]

[28] Cal. Pat. Rolls (1317–1321), p. 327.

The abbey was surrendered into the hands of the King’s Commissioners on 14th November, 1539, by Dorothy Barley, the abbess, and thirty nuns. The house was then valued at £1,084 6s. 2¼d. gross and £862 12s. 5½d. net, making it the third richest in annual revenue of the English nunneries.

In 1541, the destruction of the buildings was begun. Among the accounts of James Needham (Surveyor General to Henry VIII.), preserved at the Bodleian Library,⁠[29] is a lengthy document relating to the undermining and casting down of the abbey church and cloister, of which the following is an extract:⁠—

From Sunday xix. day of June to Sunday xvii. of July, 33rd Henry VIII. Payments made & payd for or Souvraigne lorde the King for work done by his graces comandement in undermynding & casting downe the late Abbey Chyrche of Barking.

Carpenters.—Working not onely in taking downe and breking uppe the bordes of the cloyster wt other tymber & not thus only working but also making the handebarowes & whele barowes & in like manr. helmyng of pyckaxes & other necessares for the myners & laborers to occupie.

[201]

Myners.—Working not onleye in undermynding and casting downe ij. Rounde Towres but also taking uppe the benches in the cloyster & in lyke manr providing of the ffayrest coyne stones & other coyne stone for the loding of lighters, to be ymployed at the Kinges man. of Darteforde.

Comyn Laborers.—Working not onelye in ridding & clering oute the ffayrest & best coyne stone, casting the rubbyshe a syde & not thus working onely but also making & mynding of the hey ways & in lyke manr. leveling the grownde for the lande carr. of the said stone from the late abbey to the water syde.

[29] Bodl. Lib., Cod. Rawl. D. 782.

The account is continued month by month, with little variation in terms, and concludes on 10th December, 1542. In August, 1541, the carpenters were engaged in “taking downe the tymber in the steple,” and the miners “in undermynding the steple and other places of the late Abbey Chyrch.” The lead of the roof was employed in repairs to Greenwich Palace in 1541.

The site and the demesne lands of the abbey were granted by Henry VIII. to Thomas Wriothesley, Earl of Southampton, for life.⁠[30] On his death in 1550, they were given by Edward VI. to Edward, Lord Clinton, the patent bearing date 27th May 6th Edward VI. (1552).⁠[31]

[30] Pub. Rec. Office, Particulars for Grants, 1515.

[31] Ibid.

The earliest view of the site of the abbey is a drawing by Mr. Smart Lethieullier,⁠[32] dating from about 1720–30, preserved in the British Museum.⁠[33] It shows that, at that time, little more of the abbey remained above ground than is at present in existence, the only notable difference being the presence of the north-east gate of the precinct. In 1724 he carried out some excavations on the site of the abbey church, and produced a plan purporting to show the results, which was subsequently published by Lysons.⁠[34] Another original drawing, somewhat different in detail, is [205]in the British Museum.⁠[35] Both plans are, however, so hopelessly inaccurate as to be almost valueless.

[32] Smart Lethieullier (1701–1760), F.R.S., F.S.A., of Aldersbrook, in Little Ilford (where he lies buried), was in his day a well-known antiquary and collector.

[33] Add. MSS. 27,350, fo. 123.

[34] Environs of London , iv., facing p. 71 (1796).

[35] Add. MSS. 27,350, fo. 124.

Fig. 85.—PLAN OF THE PRECINCT.

Fig. 86.—THE CURFEW GATEHOUSE.

Photograph by

A. P. Wire.

Fig. 87.—THE SAXON CROSS.

Photograph by

A. P. Wire.

The limits of the precinct at Barking cannot now be fixed with any precision, but the general lines are not difficult to ascertain. The great gatehouse probably stood in the neighbourhood of the present Heath Street or the Wharf; but no trace or record of its position is known to exist. The Cemetery Gate, which still exists, and is now commonly known as the “Fire Bell Gate” or “Curfew Gate,” was probably first erected in the time of abbess Sybilla Felton (1349–1419) and subsequently reconstructed (c. 1460). The first mention of it appears in a Papal Indult of 1400, when the abbess and her nuns were granted permission “to have mass or other divine offices celebrated by their own or other fit persons in the Oratory called Rodlofte, situate upon the walls of the cemetery of their church; in which Oratory is a certain cross and to which a great multitude of people resorts.”⁠[36] A little later, in the time of abbess Catherine de la Pole (1433–1473), it served as the belfry of the parish church, before the erection of the present western tower. The parishioners petitioned the abbess to be allowed to hang a new bell above the chapel of the “Holy Rood lofte atte gate” and to repair the roof. They were allowed eventually to hang the bell, but were not permitted to do the other repairs, evidently for fear of weakening the rights of the convent over the structure.⁠[37]

[36] Cal. of Papal Letters , v., p. 333.

[37] Lyson’s Environs , iv., pp. 71–72 (1796).

The gate, as it now stands, is a square embattled building, two stages high, with diagonal buttresses at the corners and an octagonal turret. With the exception of the parapet, it is unrestored, and is pierced on the east and west by a large four-centered arch, above which is a small canopied niche with an ogee-shaped head, much decayed. The second [206]stage of the gate is occupied by the chapel of the Holy Rood, originally lit by four three-light windows, one on each side. The eastern is now the only one left open, the rest being blocked with brickwork.

Set in the east wall, below the window, is a remarkably fine carved rood of stone, with the Virgin and St. John, of twelfth century date. The carving of the drapery is unusually free and the figures well designed. The cross itself is of the “raguly” form, to be seen in some of the St. Albans paintings, and the ground-work is diapered fretty in broad interlaced bands.

At a distance of about 350 feet further north there stood another gate, destroyed about 1885.

The Roding undoubtedly formed the boundary on the western side. The modern mill now standing close to Barking Wharf marks, in all probability, the site of the monastic building; while a narrow watercourse, branching off from the river above the abbey precinct, preserves the line of the cutting which fed the great culvert or sewer of the convent with water.

Owing to the treatment of the building at the Dissolution, when the walls and towers were undermined and cast down, the remains of the church itself are not extensive. Practically the whole length of the south wall was, however, retained, up to a certain level, owing to its forming the boundary of the parish churchyard. In addition to this, a portion of the west front, with the walls and foundations of the whole of the east end, have, fortunately, been preserved, so that the complete plan has been recovered.

The twelfth century church (representing the first rebuilding after the Conquest) consisted of a long nave with aisles and two western towers; shallow transepts, with one apsidal eastern chapel in each arm; and an aisled presbytery of five bays, terminating, in all probability, in three graduated apses, as at Shaftesbury and Chertsey abbeys.

[207]

Fig. 88.—PLAN OF ABBEY.

Drawn by

A. W. Clapham.

[208]

Traces were discovered of the southern of these apses terminating the south aisle.

The bays of the presbytery were unusually narrow, measuring only 12 feet from centre to centre. According to some original pencil notes by Mr. Smart Lethieullier,⁠[38] the columns of the arcades were cylindrical; and, judging from the existing remains of the south wall, the aisles were vaulted in stone. One complete bay of this wall and portions of those adjoining remain standing to about 5 feet above the floor level. The responds supporting the vault are rectangular projections and were apparently once finished with a half-column against the face and two sideshafts. The wall between was recessed for a wall arcade of three arches, resting on small shafts, 5 inches in diameter. The moulded base of one of these remains in situ. It is of Binstead stone, and appears to date from about 1150. The axis of the Norman presbytery deviates south of that of the nave, a feature which is still further accentuated in the later eastern additions.

[38] Brit. Mus. Add. MSS. 27,350, fo. 124.

About the beginning of the thirteenth century, the east end of the twelfth century church with its three apses was pulled down and an important extension planned in its place. The object of this rebuilding was, apparently, to provide a more honourable position for the shrine of St. Ethelburga, together with those of her successors, St. Hildelitha and St. Wulfhilda. The new portions may be compared to those eastern extensions, erected at the same time, for a similar purpose, at St. Albans and Winchester. The planning of the saint’s chapel at Barking presents certain features in common with both these buildings, together with one marked divergence. At both St. Albans and Winchester, the chapel is of the same width as the presbytery and aisles; but, at Barking, the width is reduced by 22 feet, the eastern arm being 64 feet 6 inches and the saint’s chapel 42 feet. Access to it was obtained by carrying the Norman aisles one bay further east. Mr. Lethieullier uncovered the [209]foundations of a massive wall terminating the presbytery on the east, which must have belonged to this rebuilding and was probably carried up in the form of an open arcade supporting the east gable of the high roofs.

The saint’s chapel was divided by columns into three equal aisles, three bays long from east to west; and, from the centre aisle, a lady chapel projected two bays still further east. The south wall of the saint’s chapel remains standing for some three feet above the floor level; and in the south-east angle is the circular base, in Reigate stone, of a vaulting-shaft, with “holdwater” moulding and chamfered plinth, all in fairly good preservation. The centre aisle of this chapel was probably appropriated to the feretory of St. Ethelburga, while the sides may have been occupied by those of St. Hildelitha and St. Wulfhilda.

The lady chapel was excavated, some thirty-seven years ago. The walls, some 3 or 4 feet high, remain on the east and south sides. The bases of vaulting-shafts still exist, in the angles at the east end. Three interments were found at the west end, one being in a chalk vault.

A list of interments of abbesses and others, dating from about 1420, is preserved at the Bodleian Library; the names of the abbesses are as follows:⁠—

1. Dame Yolente de Sutton qe gist devant l’auter nostre dame de Salue.

2. Dame Maude de Levelaunde qe gist apres lavaunt dce Yolente.

3. Dame Maud la file le Roy Henry qe gist en la chapele de Salue.

4. Dame Maud la file le Roy John qe gist en la chapele de Salue.

5. Dame Alianore de Westone gist devant la fertre de seint Alburgh.

6. Dame Anne de Veer gist devant le fertre seint Hildelithe.

7. Dame Maud de Grey gist devant l’auter de la Resurexion.

8. Dame Alis de Merton gist en une arche devers la cimterre.

9. Dame Isabelle de Basing gist en une arche a la fenestre.

10. Dame Alimie gist en l’arche devant le haut auter qe ad vii. psaumes en genulaut e messe capitale one kyrie par vers et hominum plasmator et offiz.

11. Dame Marie soer seint Thomas le Martye gist en l’arch devant l’auter et Seint Paul en la yle.

12. Dame Mabile qe fist dedier l’eglise gist en l’arche apres.

[210]

13. Dame Maud Mountague gist en quer.

14. Dame Isabella Mountague soer l’avant dite dame Maud gist de la parte la prioresse en quer.

15. Dame Christine de Valoyns gist en mylieu del chapitre en la pere du marbre.

16. Dame Katherine Suttone gist en la chapele de nostre dame de Salue en l’arche.

17. Dame Christine de Bosham gist a l’entree del chapitre.

18. Dame Maud Mountague gist en l’arche devant le haut auter encontre la hous del sextrie.

The chapel of “Notre Dame de Salut” is probably the eastern chapel, which would identify the interments discovered as those of Abbesses Maud (c. 1200), daughter of Henry II., Maud de Loveland (c. 1276), and Yolande de Sutton (1341). The remains found in the chalk vault probably belonged to the first of these. The note concerning Mabel de Bosham (1217–1247) approximately dates the completion of the eastern portion of the church.

The transept was internally 100 feet long by 31 feet wide. The core of the walls of the southern arm is still standing for some few feet above the floor level, but most of the facing is gone. At the south-east corner is the chamfered base of an angle-pier, with traces of benches against the south and west walls. From the eastern side projected a small apsidal chapel, slightly horse-shoe in form and the inner face of the walls retaining much of the original plastering.

The central tower was destroyed in 1541, but Mr. Lethieullier found some portions of the piers remaining in 1724. His rough sketch preserves the plan of one of them—the north-east. It was rectangular, with a semi-circular respond to the choir arcade, and rectangular projections with side shafts to the tower and aisle arches.

The nave with its aisles was 165 feet 6 inches long by 64 feet 6 inches wide. There were, apparently, ten bays to the arcades, with two western towers, making eleven bays in all. The south wall towards the parish churchyard remains standing about 5 feet high for the six eastern bays and is of somewhat unusual construction. The face of the wall remains in places, and there are sufficient traces of [211]three responds of the aisle vault to show that the nave bays were 14 feet from centre to centre.

The seventh bay from the east was occupied by an elaborate doorway communicating with the parish churchyard. Only the base remains, projecting some 6 feet from the external face of the aisle wall. It was evidently of twelfth century work, with a large arch of three or four recessed orders, and was probably surmounted by a lofty stone gable of the type to be seen at Kirkstall, Brinkburn, Nun Monkton, and elsewhere. Portions of the bases of the side shafts remain on the east jamb; but, below this level, a plain raking plinth has been added at a later date, following the line of the recessed orders. A step crossing the porch proves that, in later mediæval times, there was a descent from the churchyard to the floor level of the nave.

The three bays separating this porch from the south-west tower have quite disappeared, and the foundations of the south-west tower are somewhat fragmentary. The south-west angle of a great clasping buttress, however, remains, projecting some 8 feet in advance of the south aisle wall. The core of the wall has been removed, only the outer face remaining. The two “round towers” mentioned in Needham’s accounts probably refer to these western towers; but, as the foundations are rectangular, a circular or octagonal upper stage is the most reasonable interpretation of the expression he uses.

The total internal length of the church was 337 feet 6 inches, making it the longest in the County of Essex of which there is any record. It was some 24 feet longer than Rochester, and 13 feet shorter than Chester Cathedral. The area within the walls was about 21,700 square feet.

The cloister, about 99 feet square, lay upon the north side of the nave, as at St. Radegund’s (Cambridge), St. Helen’s (London), and other houses of Benedictine nuns. Indeed, in monastic houses in the neighbourhood of London, this position is almost more the rule than the exception. The chapter-house, a rectangular structure, 60 feet 6 inches [212]long by 23 feet 6 inches wide, projected from about the centre of the east walk. In the chapter-house were probably buried most of the early abbesses, the last being Christina de Valoyns (c. 1214) and Christina de Bosham (c. 1258), both mentioned in the list of interments already quoted.

Adjoining the chapter-house on the north, and continuing the eastern cloister range, was a building 53 feet long by 24 feet wide, divided into two unequal portions by the passage leading to the infirmary. In the smaller and southern of these, a small fireplace of early sixteenth century date had been inserted in the east wall. The jambs were of brick and the hearth was laid with plain tiles 9 inches square, with a Reigate stone curb.

The warming house forms the north end of the building. The fireplace, which is in the east wall and is some 4 feet wide, has a hearth set with tiles on edge and traces of a stone curb. In front is an outer hearth, projecting 2 feet 6 inches from the face of the wall and also paved with tiles set on edge.

The frater flanked the cloister on the north side, while the western side was occupied by a long building, measuring 166 feet by 24 feet wide, on the first floor of which was the dormitory. This position (west of the cloister) is of very unusual occurrence, though it is to be found at Durham, Worcester, and in a few other instances. The southern end of this building, adjoining the church, has quite gone; but, further north, the base of the outer or west wall was traced to the end of the building and the northern wall duly located. In two places, one course of ashlar facing in Caen stone was found in situ, fixing the date of the structure as late in the twelfth century.

There is little doubt that the ground floor was vaulted, in two spans, with a central row of columns, but no trace of these or of external buttresses was found. The twelfth century piers and capitals in the north aisle of the parish church were undoubtedly brought from the abbey; and, in all probability, they belonged to this building.

[213]

The rere-dorter, a building of the same date as the dorter, was situated a short distance to the west, on the line of the great culvert.

The infirmary lay to the north-east of the chapter-house and was approached by a passage starting some 12 feet north of that building. This passage ran in a north-easterly direction, the walls, 2 feet 3 inches thick, remaining just above the floor level. A considerable portion of plain tile paving was found in situ. The arrangements of the infirmary building are somewhat obscure, as half the site is covered by the playground of the adjoining school, and could not be examined.

The great hall stood approximately north and south. It was 38 feet wide and a long stretch of the west wall was uncovered, terminating in a massive square pier adjoining the angle-buttress of the chapter-house. This probably represented the original southern termination of the hall; but, in the fifteenth century, it appears to have been shortened by a few feet, and traces of this later end were found. At the point of its junction with the west wall, a small portion of a tile-on-edge hearth was discovered. The opposite or east wall of the hall formed also the west wall of the infirmary chapel, the floor of which was about one foot lower than that in the hall.

The chapel was a fifteenth century building, 19 feet wide and about 45 feet long, though the east wall (being under the school-house garden) was not precisely located. The south wall was heavily buttressed, being divided into three bays. At the south-west corner, a large angular buttress impinged on the area once covered by the original infirmary hall. The chapel was paved with tiles; but, though the screeding and bed on which they lay was practically intact, every tile had gone. The stone altar-step was found in situ, but only a few fragments of the north wall remained.

From the north-east corner of the warming house, a wall was found running in an easterly direction and evidently communicating with the infirmary hall. It was apparently [214]the south wall of a small hall, about 48 feet long, lying east and west, of which the north side had been completely destroyed. At the west end was a screen-wall and, immediately within it, there were traces of a large hearth. It is probable that this building was the misericorde, which is generally found in direct communication with the infirmary.

It is unfortunate that the position of the infirmary group lying partially under the playground should render its complete examination impossible, as the walls of these buildings were found to be in a better state of preservation than those of any other part of the abbey.

—A. W. C.


ABBOT’S HOSPITAL, GUILDFORD,
AND ITS PREDECESSORS


[216]

Fig. 89.—FRONT OF HOSPITAL.


[217]

XIV.
ABBOT’S HOSPITAL, GUILDFORD, AND ITS PREDECESSORS.

The close alliance which exists between architecture and national history is a commonplace, and a review of its connection in each of the several departments into which it is divided is an unfailing and fruitful source of study. The larger classifications of domestic, ecclesiastical, and military building will always absorb the energies of our chief writers, and in them we can see the more important and national movements portrayed, and in no small measure explained. But there are many other ways of pursuing this interesting inquiry, and one of the most attractive is by the examination of a single type of building allocated to a special purpose, which can be traced through succeeding periods, and in which we can see the effect of the larger changes step by step. These sidepaths of architectural history differ from one another in their relative interest and importance, and some lead us only a certain distance, having been deserted by those generations for whom they have had no further use—the blind alleys of a former pilgrimage. Others, however, continue with us to the present day, and furnish in their history a complete and connected story of ancient and modern times.

One of the most complete series of buildings in our own country is furnished by those familiar groups of cottages which we know as almshouses, and which persist even at the present time, impatient though we be of the early traditions with which they are linked. The claims that the almshouse makes upon our attention and our interest are very many. Yet beyond the occasional sketch or monograph, and the modest note in a town or county history, these beautiful buildings have received little of the study and appreciation which they deserve.

[218]

From the time of the Norman kings and in almost all the succeeding years the almshouse, or its ancient precursor the hospital, has handed down to us the most charming specimens of the domestic architecture of each period. More than that, the almshouse, being essentially a home for a number of people, furnishes us with examples of the grouping of several units of building and of the methods of composition and arrangement which were successively in vogue. Nor was it merely a domestic structure even after the secularising influence of the monastic dissolution, for in the majority of cases it had its chapel—reminding us of the private chapels which were once in every mansion—and again it partook of the nature of a public building with its common rooms and dining hall. The very nature of the almshouse and the perpetuity of its endowment was a safeguard against the careless destruction to which private property is so often subject, and the humble station of its occupants averted the ruthless hand of the “improver” until the lamented advent of the Charity Commissioners. This same humble conservatism has preserved for us in many cases that most notable mediæval idea of community of living, which was of the essence of monasticism, and the little families or societies, each with its warden, brethren, and sisters, have not yet been wholly swept away, but survive here and there in the very homes which saw their first gathering. With the persistence of the idea remain also many of the objects which were most intimately connected with its ritual or ceremonial: the courtyard with its gatehouses to isolate and defend it, the cloister and the chapel for common life and worship, beside such insignia and furniture as its gowns and corporate seal, its plate, stained glass, pictures, and books. In a hundred different details we can recognise the wonderful story of the past which has not quite died in the midst of the present. Here is the history of an important institution which, in its successive modification or development, and in the gradual secularisation of its early character, provides a running [219]commentary on English social life. It is also the history of an interesting type of building which in the beauty and variety of its forms provides a significant index to the changing modes of architecture and the allied arts.

The pre-Reformation hospital, maison-dieu, bedehouse, or almshouse has had a careful and generally well-informed historian in Miss R. M. Clay, whose work entitled English Mediæval Hospitals was published by Messrs. Methuen in their Antiquary’s Library. Miss Clay’s work is valuable in its examination of the typical life of the hospital and of its status as compared with the monastic institutions of the Church; but beyond the interesting glimpses which she gives into the customs of this earlier period we are still without a proper comparative study of the whole subject. As is so often the case with a settled institution of this kind, the architectural problem contains the key to many outstanding features of its constitution, and until a complete collection of plans is available we shall not have the material for an exhaustive history. Happily, however, enough is known to allow an intelligible outline to be drawn, in which it is probable that most of the examples will be found ultimately to have their place. In the present paper I shall attempt to set down this outline only in its barest form, making of it a slight introduction to a note on the Jacobean hospital of Archbishop Abbot at Guildford, and a further comment on the types which followed the buildings here illustrated.

The aim and purpose of the mediæval almshouse—to afford rest and help to the needy traveller, the sick, and the aged—was an essentially Christian idea, and was from the first definitely associated with the Church. And, indeed, if it had not been officially identified with the Church it could not have avoided the influence and direction of the great spiritual organisation that absorbed the generous impulses of the period. The monastic orders themselves were at first the chief vehicles for charity, and the giving of alms being one of the first principles of Christian life, the [220]nobles and wealthy ecclesiastics seconded the efforts of the monks by their liberal gifts and constantly open tables, as we may read in the pages of John Stow and other writers. But at the same time there were instituted societies of the poor alone, following in a measure the monastic orders, and endowed by individual philanthropists. It was not necessary for these men to subscribe to the vow of poverty (though sometimes required of them), for they were already destitute, and dependent entirely upon the charity of their founders, and no doubt this very circumstance made their foundations have a more deeply religious aspect in the eyes of the mediæval Church. Thus we find the first hospitals formed into small companies of brethren, each with a master or chaplain elected from their number, each clothed with a special gown and under some rule of religious observance.

F. T. Dollman in his Examples of Domestic Architecture (1858) was one of the earliest writers to point out the two chief models upon which the hospital plan was formed. The original type, and that more convenient for the sick and disabled, followed the plan of the monastic infirmary—an aisled hall with a chapel generally at the east end, looking for all practical purposes like the aisled nave of a church with its chancel. The aisles, or, where they were absent, the two sides of the nave, formed two dormitories along which were ranged the beds for the sick, who could thus hear and enjoy the services without rising from their couch or passing the door of their little cubicles. In large hospitals the nave was divided into two floors, the chapel being taken the total height of both, and being divided from them by a double screen. This may be conveniently termed the dormitory plan, from its central and distinguishing feature. The hall itself was not, however, an isolated building, but, like its prototype the infirmary, had its own outbuildings, its kitchen and stores, occasionally its cloister, and sometimes a separate master’s house.

Fig. 90.—PLANS OF INFIRMARY TYPES:⁠—BEAMSLEY HOSPITAL, YORKS; ST. MARY’S HOSPITAL, CHICHESTER; THE BEDE HOUSE, HIGHAM FERRERS; BROWNE’S HOSPITAL, STAMFORD.

The second method of arrangement was based upon the Carthusian plan of separate dwellings or cells, generally [222]grouped around a cloister or courtyard, and this proved not only the most useful provision for inmates who were not bedridden, but a popular compromise, as it were, in that it afforded a way of dispensing with the stricter monastic idea without losing the benefits of communal life. Thus arose the recognised almshouse plan of post-Reformation days, which persists to our own time.

The dormitory plan seems at first sight a somewhat primitive method, and the thirteenth-century building of St. Mary’s Hospital, Chichester, where the almspeople still live under the one wide roof of their great hall, is looked upon as a singular survival from another age. The idea, no doubt, in its communal aspect, is a distinctly mediæval one, but a little reflection will show that it was also a perfectly sound one. Our hospitals for the sick of the present day have their wards with a large number of beds side by side, and the up-to-date Rowton lodging-house is composed of long apartments divided by dwarf partitions into cubicles not dissimilar to those of the ancient hospitals. Mr. Edward S. Prior has long shown that the Middle Ages had their own very sound ideas on sanitation, and there is no reason to believe that these lofty infirmaries were not perfectly clean and wholesome. For the sick, at least, they formed practically the only satisfactory arrangement, and we know that in many foundations the sisterhood was the nursing staff for the aged and bedridden poor. The greater number of these infirmary halls have been destroyed. Wigston’s Hospital, Leicester (1513), must have been a building of wonderful size and beauty with its two storeys and chapel to the east. Its sister establishment, Trinity Hospital (“The Newarke”) reconstituted in 1355, the buildings of which still exist, included a dean, 12 secular canons, 12 vicars, 3 clerks, 6 choristers, 50 poor men, 50 poor women, and 10 nurses. Examples of surviving halls are to be found in the Bede House, Higham Ferrers (1423); St. John’s Hospital, Northampton (founded 1140); Browne’s Hospital, [225]Stamford (c. 1485); St. John’s Hospital, Sherborne (1437); St. Mary Magdalene’s, Glastonbury (thirteenth century); St. Nicholas, Salisbury (1214); St. Saviour’s, Wells (1436). The beautiful hospital of St. Giles, Norwich, called also the Great Hospital (founded 1246), with its cloister and master’s house, is attached to the church of St. Helen, part of the latter being divided up into wards after the ancient manner, the women in the Eagle ward (the chancel) to the east, and the men in the nave towards the west. Browne’s Hospital, Stamford, has a fine “audit” room over the dormitory which occupies the usual position west of the chapel. (See plan, p. 221.)

Fig. 91.—QUADRANGLE, LEICESTER’S HOSPITAL, WARWICK.

Fig. 92.—GREAT CHAMBER, WHITGIFT HOSPITAL.

Drawn by

W. H. Godfrey.

The examples of the second type of plan—the group of separate dwellings round a courtyard—date chiefly from the fifteenth century and onwards. Courtyards and quadrangular forms of building had, of course, been connected with the dormitory type, for this was the recognised method of mediæval planning (cf. Browne’s Hospital, Stamford, and St. Cross, Winchester), but the new quadrangle was a departure in principle from the older plan, and, as noted above, it followed the establishments of the Carthusian order. An early instance of a new foundation with quadrangle and cloister walk is the well-known hospital at Ewelme (Oxon), founded by the Duke and Duchess of Suffolk—the latter a granddaughter of Geoffrey Chaucer—in 1434. Here the almshouses are situated close to the parish church, to which they are connected by a passage at the tower, and, as the south aisle was specially allocated to the brethren, the presence of a separate chapel was rendered unnecessary. The second of the two foundations connected with the Great Hospital of St. Cross seems to have been responsible for the beautiful stone cottages which still stand, having been probably erected by Cardinal Beaufort in 1445, and here the noble church of the older hospital performs the function of the chapel. With St. Cross should be compared such foundations as the Vicar’s Close at Wells (which has many similarities [226]to the almshouse or hospital) and the colleges of chantry priests, one at least of which—the college at Cobham in Kent (1362)—was in 1597 converted into an almshouse proper under the title of New College. Occasionally the quadrangle was so small as to be scarcely more than an “area” in the building, each room of which was the home of a different occupant. Such is Ford’s Hospital, Coventry (1529), commonly called the Grey Friars, a specimen of Gothic woodwork which has often been illustrated on account of its great richness. Timber-built almshouses are not infrequent, and the Earl of Leicester’s fine hospital at Warwick (1571) has a quadrangular plan of two storeys, each with a graceful cloister of wooden arcading.

Fig. 93.—LEICESTER’S HOSPITAL, WARWICK.

Fig. 94.—LEICESTER’S HOSPITAL.

Drawn by

W. H. Godfrey.

These hospitals with their separate dwellings show many minor differences of plan. A dining hall, a “great [228]chamber” or common room, and a kitchen, were often included in the range of buildings or were annexed to it. The gatehouse or simple gateway, the master’s rooms, the muniment room, and the outside staircases, gave opportunity for variation in grouping; and the hospital chapel, when present, invested the whole block with its chief distinction. At Warwick the hospital has the use of the old Guild Chapel over the west town-gate that still survives.

The influence of the Reformation was most decidedly in favour of those institutions which, like the last considered, adopted only semi-monastic customs. Prejudice against the monasteries had sunk too deep to allow of the older establishments remaining unharmed, and many were reconstituted so as to conform to the later ideas. The independence of thought fostered by the Reformation, and the individualism which directed the Renaissance, both made for the confirmation and extension of the system of separate dwellings. Occasionally we get a reversion to the old type, as in the curious little building of Beamsley Hospital, Yorks (1593), which is circular, the chapel being in the middle and lighted by a clerestory, while seven cubicles surrounding it form an ambulatory, very much like the circular aisle of the nave to the Temple Church. (See plan, p. 221.) Exceptions though there may be, the principle of community of interest remained sufficiently familiar to the people in their trade guilds and companies to prevent their dispensing with the hospital idea and substituting what in modern times we call outdoor relief. So the incorporated hospital continued, and quadrangles were still planned, but now in the manner of the courtyards of the rapidly advancing domestic architecture of the day.

Fig. 95.—WHITGIFT HOSPITAL.

Plan by W. H. Godfrey.

Fig. 96.—ABBOT’S HOSPITAL.

The dissolution of the monasteries had made the necessity for almshouses even greater than it had been before, and we find that the problem of the poor had assumed serious proportions by the reign of Elizabeth, and led to a great increase in the number of hospitals. They continued to [229]become augmented, and the records of the seventeenth and eighteenth centuries are crowded with the names of the new foundations. The Whitgift Hospital, Croydon (1597); Jesus Hospital, Lyddington (1602); Sackville College, East Grinstead (1608); Weekley Hospital, Northants (1611); Chipping Campden (1612); the three hospitals of the Earl of Northampton—Trinity Hospital, Greenwich (1613); Trinity Hospital, Castle [230]Rising (1614); and Trinity Hospital, Clun (1614)—Coningsby Hospital, Hereford (1614); Eyre’s Hospital, Salisbury (1617); Abbot’s Hospital, Guildford (1619); Wyatt’s Hospital, Godalming (1622); Penrose Almshouses, Barnstaple (1627); and Jesus Hospital, Bray (1627)—these are a few of the interesting buildings of about the time of James I., and the Guildford example is in many ways typical of them all, although the contemporary enthusiasm for design found in them wide opportunities for variation. Archbishop Abbot had before him the fine example of his predecessor, John Whitgift, whose hospital at Croydon attracted wide notice, if we are to believe the contemporary [233]testimony of John Stow, and probably Whitgift’s work inspired many of the later benefactors to imitate him. The two buildings are curiously similar in plan, although there is a marked difference in their architectural treatment, the work at Guildford being more pretentious than that of the earlier hospital. In both cases the administrative block or rather that containing the principal and common apartments, was placed on the side opposite to the entrance with its gatehouse, the cottages of the pensioners occupying the rest of the courtyard. In this they were following in effect the usual plan of the larger country houses of the fourteenth and fifteenth centuries, the same rooms being provided in the main block as were required for private occupation, while the usual quarters of the domestic staff are here transferred to the almspeople. The common hall or dining-room occupied a position near the centre—at Croydon to the left, and at Guildford to the right of the passage and archway into the gardens. In each building the kitchen is placed in the extreme left-hand corner, and the chapel in a similar position to the right. The house of the warden or master, however, is at Croydon placed over the common hall and kitchen, and contains the “audience” or great chamber as its principal apartment, whereas at Guildford the master occupies a part of the street front, the great chamber (called here the library) being placed, as before, over the hall.

Fig. 97.—ABBOT’S HOSPITAL. COURTYARD.

Fig. 98.—ABBOT’S HOSPITAL. LOWER HALL.

Fig. 99.—ABBOT’S HOSPITAL. UPPER HALL.

Abbot’s Hospital provides for some twenty-five inmates, including the master, as compared with forty at Whitgift; but, as already remarked, it is more ambitious in its architectural treatment. The quadrangle is entered by a fine brick tower with four octagonal turrets, in the centre of the street front. The tower is of three storeys, and like the rest of the building is of brick with stone dressings, the turrets being taken up a good height above the parapet, and finished with excellent lead-covered cupolas, and vanes. The two opposite lateral blocks which enclose the courtyard are projected towards the street to form [234]wings, and are finished with Dutch gables. The windows on the ground and first floors vary from four to five lights in width and are divided by transomes. The quadrangle itself is quietly treated; a shallow stepped gable on the side opposite to the tower gives space for a clock and a tablet below is inscribed with the name of the founder, while an octagonal cupola is raised above the roof. Perhaps the finest external features are the cut brick chimney-stacks with separate octagonal shafts and finely moulded caps and bases. The internal work in the chief rooms and in the master’s house is of a sumptuous character, and points to the fact that Archbishop Abbot—like Whitgift before him—intended as much to leave a “monument of his own time” behind him as a noble work of charity. The Jacobean fan-treatment of the doorways is very well executed, and all the woodwork is substantial and well made. Both the hall and the great chamber above—the latter of which is panelled—have good chimneypieces and overmantels, and there is much excellent furniture.

In this self-contained and well-appointed building is housed a little community which differs very slightly from those of the pre-Reformation hospitals. The ideas of the early part of the seventeenth century have relaxed the severity of the monastic rule somewhat, and have given to the architectural features much of the new character of the Renaissance. Enough, however, of the old conception, both of establishment and of fabric, remains to link it definitely with its predecessors, and to witness to the continuity of the old conception of a charitable refuge for the poor.

Fig. 100.—ABBOT’S HOSPITAL, DETAIL OF DOOR.

Drawn by

Sydney A. Newcombe.

Further illustration of this fact can be adduced from the large number of similar examples found in the succeeding periods. In whatever age the almshouse was built the idea was recognised as perennially “old-fashioned,” and the style of its architecture is therefore inevitably of a somewhat earlier character than seems warranted by its actual date. Each builder in turn raised his building [236]intentionally in a somewhat antique manner, and as the seventeenth century advanced the Jacobean detail gave way very slowly before the new fashions of the later Renaissance. The gatehouse disappeared, but the gateway remained; the street front and its two wings assumed the Queen Anne treatment of heavy cornice and hipped roofs. The cloistered arcade, which in Christ’s Hospital, Abingdon (1553), and Penrose Almshouses, Barnstaple (1627), had been placed in front of the buildings, reverted to the manner of Ewelme (1434) and surrounded the inner court as at Bromley College (1666) and Morden College, Blackheath (1695). The chapel was placed generally in the centre of the farther side of the square, and projected from it, or stood alone at the end of the perspective of two lines of cottages as at Trinity Ground, Mile End (1695). The simple row of almshouses, too, which existed at all periods for smaller buildings, was developed and often cleverly grouped on either side of the central feature of the chapel, as at Colfe’s Almshouses, Lewisham (1664). The variations in the style of the architecture are unending, and numerous features such as heraldic shields, sundials, cupolas, stone terraces, stained glass, statuary, furniture, are scattered about them, here in profusion, there in fewer number, but none the less tasteful and in keeping. A few examples occur to one at random in addition to those just mentioned:⁠—Ingram’s Hospital, York (1640); Smyth’s Almshouses, Maidenhead (1659); Lucas’s Hospital, Wokingham (1663); Corsham Almshouses (1668); Kirkleatham Hospital, Yorks (1676); Jesus Hospital, Newcastle (1681); Collegium Matrarum, Salisbury (1682); Winwood’s Almshouses, Quainton (1687); Hall’s Almshouses, Bradford-on-Avon (1700); Fishmongers’ Almshouses, Yarmouth (1702); Trinity Almshouses, Salisbury (1702); Collins’s Almshouses, Nottingham (1709); Christ’s Hospital (second building, 1718) and Tompkin’s Almshouses, Abingdon (1733); Somerset Hospital, Petworth (1746); and Millington’s Hospital, Shrewsbury (1748). [237]Several of these names are well-known, and will recall to the reader’s mind the character of the almshouse that obtained until the middle of the eighteenth century. There has been no lack of similar buildings since, but they have suffered from the general decline in the art of building. They have also revived with the renewed interest of the present day in the old methods, and they compete, and will still compete, successfully with the scattered cottage homes which are for the moment in vogue. The virtue in the old ideas, whether in the economy and beauty afforded to the buildings or in the charm and usefulness of the little close community, has not gone away. An institution that has stood the test of 800 years, and has weathered the storms of such varied social changes, is bound to live and flourish for many years to come, and it is to be hoped that the original examples, weatherworn, but with the beauty of age and of their time-honoured usefulness upon them, will be preserved to show the future the triumphs of their modest excellence.

The foregoing is but an imperfect little sketch of a subject which is of wide interest and endless fascination. Sir Christopher Wren well understood the significance of the idea, and with his customary skill he has given us a fine interpretation of its beauty in his Royal Hospital at Chelsea. Here is a good starting point for the Londoner, from which he may trace the story backwards.

—W. H. G.


THE FRIARS AS
BUILDERS


[240]

Fig. 101.—BLACKFRIARS, NORWICH.


[241]

XV.
THE FRIARS AS BUILDERS.

THE LONDON HOUSES OF BLACKFRIARS AND WHITEFRIARS.

The mendicant orders as a factor in the history and development of English Gothic have not only never received the recognition they deserve, but their building activity has been left in the almost complete oblivion to which the iconoclasts of the Reformation did their best to consign it. The general interest in the friars has been centred entirely in their history, in the eventful lives of their founders, and in the vast influence which they exercised upon the main currents of mediæval life. Consequently, while the general reader is well acquainted with the figures of St. Francis or St. Dominic, he is often entirely unaware of any connection between them and their followers on the one hand, and the course of English architecture upon the other.

The nature and aims of the mendicant orders rendered it almost essential for their convents to be placed either in or near the great towns, and the presence of so many quarries of worked stone was a circumstance unlikely to be long neglected by the townsmen of Tudor and Stuart times, whose utilitarianism was no whit less developed than that of the present day. Consequently the continued existence (with one or two exceptions) of any fragment of friars’ architecture is as purely fortuitous as the survival of any fragment of domestic architecture of the same date.

As a whole the mendicants present so marked a divergence from the older orders of monks and canons that their buildings are stamped with a very definite and striking individuality. These divergences were, indeed, so intimate as to make the study of them essential to the proper understanding of the architecture they produced.

[242]

In sharp distinction to the Benedictines or Cistercians, who were continually adding “house to house and field to field,” the friars were forbidden by their rule to own any property. As their name “mendicants” implies, they were to be beggars, receiving alms only in the form of food, shelter, or clothing, the rule of St. Francis expressly prohibiting the acceptance of money or land, and thus in its original simplicity reducing their architectural opportunities to a minimum, or, rather, rendering them non-existent. The severities of the rule were, however, early evaded, the later practice being for the convent and precinct to be vested in some outside authority, such as the Corporation of the town or the Bishop of the diocese, to hold in trust for the friars in perpetuity, thus keeping the letter while breaking the spirit of the rule. How slight a check it was eventually to prove upon their building activities was early evinced by the magnificent convent of San Francesco at Assisi, which rose around the tomb of the founder under the supervision of his immediate successor. Nevertheless, the general system of non-endowment remained largely in force until the end, and in Henry VIII.’s Visitation the majority of friaries returned the estimated annual value of their convent site and buildings as their sole possession.

Considering the fact that at the Dissolution of the Monasteries the friars numbered over two hundred houses in England and Wales, their architectural remains are neither important nor impressive, and in most cases require searching for; but while they in no case display the massive and imposing memorials of the earlier orders, they are nevertheless of no mean interest to the student of mediæval architecture.

Preaching, while pre-eminently the characteristic of the Dominicans, nevertheless figured largely amongst the duties of the other three orders, and was undoubtedly responsible for the imposing dimensions to which many of their churches ultimately attained.

[243]

The mendicant orders being primarily preachers, the first building to be erected (especially in England, where the climatic conditions were inimical to regular open-air preaching) was the church built in the main for that object, and consequently as near as possible to the main street. Proximity to the chief thoroughfare bordering their site will be found almost invariably to determine the position of the friars’ church. This is well exemplified in the convents of the London friars: thus the Franciscan church adjoined Newgate Street with the cloister on the north, the Carmelite was approached from Fleet Street with the domestic buildings on the south, and the Austin Friars fronted Broad Street with the cloister again upon the north. It will be seen that the time-honoured custom of placing the cloister and domestic buildings on the south of the nave for protection from the wind is no longer the governing feature of the plan.

In the churches of the English friars a marked peculiarity is at once apparent in the general absence of the transept—a large aisled nave, an aisleless choir with a belfry between, is the usual and typical form. In a few cases, such as the Austin Friars, Warrington, and the Franciscans at Richmond (Yorkshire), a transept is added on the side opposite the domestic buildings, but the presence of both arms of the cross is very rare. In the Irish friaries the one-armed transept is more the rule than the exception, but here again the complete cross is almost unknown.

The nave of the average canons’ or monks’ church is divided into two unequal parts by a solid screen or pulpitum, against which, on the east, stood the choir stalls, occupying two, three, or more bays of the structural nave, the rest being used for processions, chapels, and as a general burial-place for the lesser patrons of the establishment. In the friars’ churches all the available floor-space was required for the congregation, and consequently the stalls were removed into the structural choir, and in place of the solid stone screens of the older orders a steeple was built [244]pierced by two narrow openings at the base, practically shutting the stalls off from the nave.

The finest remaining examples of the English preaching nave are the Austin Friars, London (153 ft. by 83 ft.), and the Dominican Church, Norwich, now St. Andrew’s Hall (124 ft. by 64 ft.). Both are distinguished by great space and openness, the former being amongst the broadest churches in the country.

In the centre of the typical English friars’ church stood the belfry, which formed its most original and distinctive feature. The friars’ tower was apparently a spontaneous innovation amongst the English mendicants, for there is no evidence that it was either borrowed from Continental sources or copied from other orders at home.

It appears to have been customary for each house of friars to have but one great bell, for though there are instances of two being hung in the steeple, yet the friaries of London, according to Stow, had only one each, and it is evident that this peculiarity was largely instrumental in deciding the unusual form which the steeple assumed.

Situated between the choir and the nave, the steeple rested on two parallel walls which ran north and south across the church, and were pierced by two main arches opposite one another opening respectively into the nave and choir; these walls were placed close together, generally some ten feet apart, thus forming an oblong space under the crossing. Between them and high above the arches before mentioned two lesser arches were thrown across the open space (sometimes dying away into the walls and sometimes resting upon corbels projecting from them) to carry the north and south walls of the tower above.

The building in most cases was so arranged that the outside faces of the north and south tower walls were in a line with the inside faces of the piers of the two arches opening into the nave and choir, the lower voussoirs of which thus supported the whole weight of the cross walls above them. The oblong thus became a square, and by this arrangement [245]it was possible to raise a small stone tower in the centre of the church, while at the same time retaining the two arched openings between the nave and the choir.

Upon this base a light stone or brick lantern was raised, which in England was generally octagonal in form, but in Ireland invariably square, the additional number of worked quoin stones required for the former plan being probably the reason for its rejection in the poorer country. Occasionally the tower was finished with a stone spire, but as a rule any addition in that direction was of timber only. A good example, however, occurs at Coventry in the central tower of the Franciscan Church (the sole remnant of that house), and as now incorporated in the modern Christ Church, it forms one of the trio of spires for which the City of Coventry is famous. The Grey Friars’ tower at Lynn Regis, Norfolk, is again the sole remnant of the convent of which it formed a part, and is a brick and stone building of Perpendicular date, octagonal, and finished with a battlemented parapet. This town is also singular in having formerly possessed two parish churches, with octagonal central towers. Now, though octagonal upper stages are comparatively common, especially in the eastern counties, instances of the whole tower of this shape are very rare; and since the Lynn examples were probably copied from one or other of the four friaries of the town, it is not extravagant to surmise that it was the mendicants who first introduced the octagonal form into England. At Richmond, Yorkshire, stands the only other friars’ tower which has survived; this, however, is of a more ordinary type. It is a beautifully proportioned square structure, with belfry windows, and a pierced parapet of Perpendicular work, and was evidently only just completed at the Reformation, when the whole church was in course of reconstruction.

Dunbar contains the only example of a typical friars’ steeple in Scotland, the Carmelite tower of South Street, Queensferry, being of the more ordinary type; but in Ireland a remarkable series is still standing, including [246]among its numbers the celebrated ruins of Quinn, Ennis, Clare, Galway, Rosserk, Drogheda, and Athenry.

The space beneath the tower was commonly continued in the form of a passage right across the church, and served as the chief means of communication between the cloister and the outside world.

Turning now to the choir of the friars’ churches: they were usually aisleless parallelograms, and almost always square ended. Their chief feature will be found to be the magnificent proportions of the windows. The choir of the Dominicans at Norwich has a magnificent Decorated east window of seven lights; the Franciscans of Chichester another, with five graduated lancets under one hood; and even a small house like the Austin Friars at Rye had an east window (now built up) of imposing dimensions.

The apsidal termination usual on the Continent has one example in this country in the Grey Friars at Winchelsea, a fourteenth-century structure, and a very graceful example of Decorated work. A wide chancel arch, with banded sideshafts, opened from the nave (which has now gone), into the choir of four bays, with a three-sided apse, each face of which is pierced with a tall Decorated window. A Scotch example of very similar type exists in the Dominicans at St. Andrews, but in this instance the apse belonged to a side chapel and is much smaller in all its dimensions. The stone vault remains in part, and, like its Sussex counterpart, it is the sole remaining fragment of the church. In both these instances the use of the apsidal end may be ascribed to French influence, which was particularly strong in the Cinque Ports at this time, owing to the French wars of Edward III.

Adjoining the church, in some instances, lay an open yard provided with an outside pulpit either for overflow meetings or for more general use in the heat of the summer. The space outside the Dominican Church at Norwich was long known as the “Preaching Yard,” and the beautiful octagonal stone pulpit cross formerly outside the [247]west front of the church of the same order at Hereford remains intact. It is, now, perhaps, the only remaining example of such a structure in England—an existing counterpart to the rich cross “y-tight with tabernacles” of Pierce Ploughman’s Creed.

Two unusual features distinguish the planning of the domestic buildings of a friary—the first an emphasis upon the secular nature of most of the church, the second the result of a necessity for economy.

The cloister of a friary was placed without any general rule, but most generally it partly adjoined the nave with a portion overlapping the choir, and when the whole or any part adjoined the nave it was not unusual to introduce a narrow open court between the church wall and the cloister walk. The Cistercians had a somewhat similar arrangement in the “lane” which, in many of their houses, separated the buildings of the monks from those of the “conversi,” and, in the case of the mendicant orders the court served to separate the domestic portion of the house from their public preaching-place. In England this feature, which occurs in the Black Friars at Norwich, the Franciscan houses at London and Cardiff and elsewhere, is almost confined to the mendicant orders, the only other existing example outside their ranks being the secular cathedral of Salisbury, and here, as in the friars’ houses, a short corridor communicates between the cloister and the church.

The second noticeable feature in the planning of the domestic buildings is found in the general practice of building the first-floor apartments over one, two, or more walks of the cloister, effecting by this means an economy both in wall masonry and in the flat lead roofing of the cloister alleys. Examples of this treatment are very numerous, and occur in all parts of the country. Thus, at Hulne, Northumberland, two alleys were built over—the east and west. At Norwich Black Friars and Dunwich Grey Friars one or more walks are similarly treated, while the Walsingham Franciscans apparently built their frater [248]half over the south walk of the great cloister and half over the north walk of the little cloister. That lack of funds was the chief cause of this somewhat niggardly arrangement is rendered more certain by the fact that the only other order in which it occurs—the Gilbertine—was the most poorly endowed of all the older communities.

Turning now from the subject of the actual structure and arrangement of the friars’ houses the larger question arises: What influence, if any, had all this mass of building upon the outside world, and upon the architecture practised among the people at large? It may be safely postulated at the outset that the influence exercised by the friars will be found, firstly and most definitely, in the structure of the parish church and, in its earliest manifestations, in the parish church of the towns, for not only were they the nearest ecclesiastical neighbours, but the objects served by each class of buildings were, within certain limits, identical.

The great towns of England during the twelfth and early thirteenth centuries were split up into a very large number of parishes, each with its church, and as the town enlarged its borders or multiplied its population, additional churches were built to supply its increased needs. London, even in the time of Fitzstephen (temp. Henry II.), had 120 parish churches; Norwich, at a little later date, had over forty; Lincoln twenty or more; Winchester a dozen; and a small town like St. Albans five. The practice was evidently at this period to meet the demand for increased accommodation, not by enlarging existing churches but by building new ones. The average town church of the Norman period was, comparatively speaking, of small dimensions and limited accommodation, and in London, with hardly an exception, they remained to the end architecturally insignificant, solely because their numbers were such as to meet all possible demands that could be made upon them.

Fig. 102.—PLAN OF AUSTIN FRIARS, LONDON.

Drawn by

A. W. Clapham.

The period of the greatest architectural activity of the friars may be dated to the last quarter of the thirteenth [249]and the first quarter of the fourteenth centuries, or, roughly, to the reigns of the first two Edwards, and by about the middle of this period they had evolved a type of church which for its purpose was as nearly perfect as experience and experiment could make it. The comfort of the largest congregation was secured by an ample floor-space, while the heavy piers of the older buildings had given way to the [250]lofty and slender columns of the Austin Friars at London, only just large enough for structural stability and leaving an almost uninterrupted view of the preacher from all parts of the church.

The culmination and final expression of their views of what a congregational church should be took form in the great Franciscan church begun in Newgate Street, London, in 1306, and probably the largest friars’ church in England. This building, with its 300 ft. of length, its slender piers, its long range of clerestory, aisle, and end windows, is a type which is without a parallel of its own date and outside its own order as the expression of a new and original idea in church building, departing equally from the insignificant dimensions of the contemporary parish church and the massive and cavernous construction of the monastic nave.

It is at this precise point that a radical alteration is observable in the planning of the parish church, an alteration which, in view of its ultimate results, was almost revolutionary.

The old idea of the multiplication of the small town churches is suddenly and for no apparent reason abandoned, and the single church of huge dimensions takes its place. It is not asserted that, previous to this date, there were no large buildings of this class, but such as already existed were almost entirely in country districts, and with their cruciform shape and central tower they were evidently inspired by the monastic churches of the older orders.

An examination of the plan of one of the towns which rose into prominence in the fourteenth and fifteenth centuries will reveal a remarkable and striking contrast when compared with that of one of the older towns. In the former case one or two parishes embrace the whole city, while in the latter it is subdivided into ten, twenty, thirty, or more, and while the one has perhaps a single parish fane which dominates the town, the other has towers and spires rising on every hand.

[251]

Fig. 103.—PLAN OF GREYFRIARS, LONDON.

[252]

Fig. 104.—PREACHING CROSS, BLACKFRIARS, HEREFORD.

[253]

The outset of the new regime may perhaps be definitely dated to the foundation by Edward I. of several new towns, of which Hull in the north, and Winchelsea in the south, are the best-known examples, and in each of these places a single great church is deemed sufficient for the needs of the whole town.

It would be easy to multiply examples. The great port of Boston or the trading centre of Newark, whose prosperity dates from the fourteenth century, each built for themselves a single church on an almost cathedral scale, and in the same sequence are ranged most of the great churches of East Anglia.

The new type of church is one having the great open nave, the long ranges of windows, and the slender piers which became so general in the Perpendicular period. They are, in fact, copies of the great friars’ churches which immediately preceded them. The friars originated and perfected the type which in the fulness of time was accepted and adopted by the parish church builder as the best and most suitable structure for his purpose which had yet been evolved.

The church of the Holy Trinity, Hull, the forerunner of the new movement, provides an additional element of probability to the theory. Founded by Edward I., and built under the auspices of his son, it had in both its royal parents a close relationship to the great Franciscan church of London, erected through the bounty of the wife of the one and the step-mother of the other, and it is not improbable that the personal element was brought to bear on the design of the later building with far-reaching results.

Once the new idea had taken root under royal patronage it rapidly spread over England, and in the next century some even of the old town churches were rebuilt in the then prevailing style, and it is perhaps not too much to say that the great Perpendicular parish church, of which there are so many noble examples, is the direct outcome and lineal [255]descendant of the friars’ buildings, which have unfortunately so nearly disappeared.

Fig. 105.—BLACKFRIARS, LONDON.

Plan by

A. W. Clapham.

BLACKFRIARS, LONDON.

Blackfriars to the modern Londoner is as familiar a title as that of any part in the City, and to all frequenters of Fleet Street the district of Whitefriars must be little less familiar. Yet the homes of the Dominicans and the Carmelites, their churches and the numerous buildings within their precincts, have disappeared so completely that it is doubtful if the majority of people who daily use their names have any intelligent idea of the origin of the terms. And even for those who have given thought to the subject there has been no definite description of the buildings such as would enable them to reconstruct in their minds the great monastic establishments of the two orders. It is possible, however, from various sources to draw out with tolerable accuracy the plans of the houses of the Blackfriars and the Whitefriars and to ascertain the accurate position of all their principal apartments. The arrangements of the Blackfriars has an additional interest in that the Guest House is still exactly defined by the Hall of the Apothecaries’ Company, and the Upper Frater which lay across the entrance to Printing House Square served not only as the Parliament House in the reign of Henry VIII. but was later converted into the celebrated Blackfriars Theatre.

The priory of the Dominican or Black Friars in London was founded in 1221 on a site to the south of Holborn and east of Chancery Lane. In 1274, however, a new site was given them on the north bank of the Thames, just east of the Fleet ditch. This necessitated the pulling down of that part of the city wall south of Ludgate, and a new wall was built running eastwards from the gate and turning south to the river within the Fleet. It appears that the church was not begun until 1279.

Although there is little documentary information regarding the buildings before the Dissolution, it is some [256]evidence of their importance that the meetings of Privy Councils were held here during the first part of Henry VI.’s reign, and that three Parliaments met here in 1450, 1523–4, and 1529. The Emperor Charles V. lodged in the Guest House in 1522, and a gallery was built by Henry VIII. to connect his apartments with Bridewell Palace, where his train was accommodated. In 1529 the King’s divorce from Catherine of Arragon was tried in the “Parliament Chamber,” Henry VIII. and his queen being in residence in Bridewell.

In an anonymous fourteenth-century Wickliffite lampoon upon the friars, entitled Pierce the Ploughman’s Creed , there is a long passage which refers almost certainly to the London house of the Blackfriars, since, whenever the details can be tested, they are found to be accurate. As the lines are not only of peculiar interest from their remarkably vivid description of a great friary in its architectural prime, but also from their containing the most graphic purely architectural description in the whole range of English mediæval literature, a free rendering of them is quoted below:⁠—

Then thought I to question the first of these four orders,
And pressed to the Preachers to make proof of their will;
I hied to their house to learn more about them,
And when I came to their Court I gazed all about.
Such a boldly built pile on earthly heights
Certain, I have not seen for a long time.
I thought on that house and long thereon looked,
How the pillars were painted and finely adorned
And quaintly were carven with curious knots,
With windows well wrought, lofty and wide.
Then entered I in and went all about,
And everywhere there were walls around the dwelling
With posterns for passing privately whenever they list,
Orchards and arbours arranged with neatness,
And a curious cross craftily constructed
With tabernacles encircled facing all sides—
The price of a ploughland in pennies so round
To adorn that pillar were little indeed.
Then I gat me forth to look at the Church,
[257]
And found it well and wonderfully built,
With arches on each side, embellished and carven
With crockets on their angles and knots of gold.
The wide windows all wrought with numberless writings
Shining with shapely shields to make a display,
With merchants’ marks all figured between,
To the number of more than twice two and twenty
(There is no herald that hath half such a roll),
And newly set out as if by a Ragman.
Tombs upon tabernacles raised up aloft,
Railed in with iron, with many an effigy
In armour, of alabaster, seemingly clad;
Laid upon marble in divers manners,
Were knights now clothed in their martial dress—
All, it seemed, saints who were sacred on earth!—
And lovely carved ladies lay by their sides
In many gay garments that were beaten gold;
Though the taxes of ten years were truly gathered
It could not make half that church, I trow.
Then came I to the Cloister and gazed about
How it was pillared and painted and carved so well,
All roofed with lead low on the stones
And paved with painted tiles, one after another,
With conduits of clean tin, closed all about,
Washing basins wrought of shining latten;
I trow the price of the ground in a great shire
Would not apparel that place from beginning to end.
Then was the Chapter House wrought like a great church,
Carven and roofed and curiously constructed,
With a beautiful ceiling set up aloft,
Like a Parliament-house all painted about.
Then fared I to the Frater and found there again
A hall for a great king, to hold his household,
With broad tables and benches beautifully furnished,
And windows of glass, wrought like a church.
Then walked I further and went all about,
And saw halls full high and houses full noble,
Chambers with chimneys, and chapels gay,
And kitchens such as kings may have in castles,
And the Dorter furnished with strong doors;
Farmery and frater with many more houses,
All of strong stone walls raised up on high
With garrets, great and gay, and every window glazed;
And other houses now in which to lodge the queen,
And yet these builders will beg a bag full of wheat
Of a poor man that may, for once, pay
Half his rent in a year and half be behind.

[258]

Apart from the general description contained in these lines, the sources of our information regarding the buildings of the Blackfriars date from after the Dissolution and are contained in certain grants of property, and some surveys of the time of Edward VI., the latter preserved at Loseley, near Guildford. From these it is possible to reconstruct the greater part of the Friary, an outline of which is given below.

The position of the Church is determined by the Cloister, the east walk of which is now marked by the passage called Church Entry, and its western range of buildings by the Apothecaries’ Hall. The name “Church Entry” points fairly conclusively to the usual passage between the nave and chancel—passing north and south beneath the steeple—that has been already referred to as characteristic of the friars’ plans. The nave with its two aisles measured some 114 feet by 60 feet internally, and alongside its northern aisle at the west end was the Lady Chapel, which increased the width of the west front to 90 feet externally. There is a record of this chapel as early as 1437; but from the will of Robert Castell we gather that it had been rebuilt by Lady Ingoldsthorpe, who died in 1494, sister of John Tiptoft, Earl of Worcester (“the Butcher”), who was executed in 1470. The occasion of the rebuilding may have been the interment of his body, and beside him was later buried the headless body of James Touchet, Lord Audley, who suffered death at the hands of the executioner in 1497.

The steeple between the nave and choir, called in the grant to Sir Thomas Cawarden (1550) “the Campanile,” is shown in the view of London by Van der Wyngaerde. Polygonal in form, and with pinnacled parapet and spire, it obviously followed the same model as those still to be seen at Coventry and Lynn.

The choir, in all probability aisleless, measured 90 feet from east to west, making six bays. The great cloister (110 feet square) lay to the south of the Church, and, unlike [259]the general practice among the friars, its walks were roofed and not built over. The description in Pierce the Ploughman’s Creed is borne out by the surveys at Loseley, and there is little doubt that the poet’s admiration was well founded. Some curious particulars of burials in the cloister are preserved. In the will of Sir Robert Southwell, Knight, dated 1514, is a desire to be buried “in the Cloister of the Friars Preachers in the city of London, under or near the Lavatory there nigh to the picture of the holy Crucifix there set.” In his further directions he says: “I will that that friar of the same place, appointed daily for the work to say there the mass of the Trinity, by the space of xx years next after my decease say every day a special collect in his mass for my soul, also de profundis with a pater and ave and crede for my said soul ... at the said lavatory immediately when the convent of the same place or the most part of them shall go to dinner. Item I will that that friar being a priest that first happen to come any day during the said xx years, in the morning first to the said lavatory to wash his hands and then and there to say de profundis for the souls before said, have for his so doing 1d.” Besides this, he desires the prior and sub-prior to say “God have mercy on my soul every day after dinner,” and awards them 13s. 4d. a year for the purpose.

Another curious legacy is that of William Stalworth, a citizen and merchant-tailor, who was also buried in the Cloister, and in his will, dated 1519, says: “I will that there shall be distributed to the Friars Preachers every Lent for ten years a barrel of white herrings, and to the young friars of the same house for the same time a frayle of fygges.”

The extensive buildings of the Friary lay round the Great Cloister, and considerably to the south and east. The Chapter House stood in the centre of the eastern range, and over its vestibule and various rooms on the ground floor stretched the dorter (or dormitory), which is described as having a stairway down into the Church. Behind the [260]northern part of the dorter was the Prior’s lodging,⁠[39] and leading eastwards from its southern part was a second or south dorter, built over a vaulted undercroft, remains of which were discovered in 1900. This last-named appears to have been the Provincial’s lodging, and the whole building formed the northern range of the Infirmary or Inner Cloister. The infirmary on the west, the upper and lower libraries on the east, and the bakehouse and brewhouse on the south completed the enclosure.

[39] To the prior’s lodging belonged two gardens, described as adjacent to the lodging called the priory lodging on the east side, and above the great royal garde-robe, vulgarly called “the King’s great Wardrobe on the west side thereof, containing by estimation one acre of land.” These gardens are of considerable interest, as it was in this neighbourhood that Shakespeare’s house in Blackfriars formerly stood.—Archæologia , vol. LXIII.

Of the Great Cloister the southern range was occupied by the Frater (or dining hall), and on the east was the Guest House, which, even before the Dissolution, was let out to tenants. This was the lodging prepared for Charles V. in 1522, and the porter’s lodge behind marks the point at which commenced the gallery built by Henry VIII. for the Emperor’s convenience, between the Guest House and Bridewell. A window appears to have been formed between the nave of the Church and the Guest rooms, occupying much the same position as that to be seen at Westminster Abbey. South of this range and communicating with the Frater were the Buttery and Kitchen. The Guest House ultimately passed into the hands of the Apothecaries’ Company (1632), who rebuilt it after the Great Fire. In size and position, therefore, the present building follows precisely that which gave shelter to the Emperor Charles V. To the south of the Kitchen and Buttery was the Chapel of St. Anne, which, though not a parish church, was no doubt erected for the benefit of the various lay inhabitants of the precinct. Its site is now occupied by The Times printing office, and considerable remains came to light in the course of rebuilding in 1872.

[261]

Regarding the “Upper Frater,” which stands still farther south, I will quote from my contribution to Archæologia (vol. lxiii.):⁠—“The only buildings now remaining to be noticed formed a block of considerable size lying to the south-west of the cloister, and quite separate from the ranges flanking it. The main structure of the group was a building of such unusual size and obscure designation that it will be necessary to consider it at some length. Hugh Losse describes it as ‘One house called the upper frater containeth in length 107 ft. by 52 ft., abutting south and east to the Lady Kingston’s house and garden, north to a hall where the King’s revels lieth at this present and west toward the Duchy chamber and Mr. Portinary’s house. A void room being an entry towards the little kitchen and a coal house containing in length 30 ft. and in breadth 17 ft. One chamber called the Duchy chamber, with a dark lodging thereunder containing in length 50 ft. and in breadth 16 ft., abutting against the north end of the said frater and abutting west upon Mr. Portinary’s parlour.’

“The mention of Mr. Portinary’s parlour fixes the position of the whole block, and shows that the Duchy chamber flanked the kitchen yard (mentioned above) on the south side, for the same parlour is mentioned as the southern boundary of the yard.

“Setting it out on these lines we find that the eastern wall of the upper frater must have been the western building line of Printing House Square, while its southern end is represented approximately by Huish Court.

“A second description of this building is to be found in a rather unexpected quarter. In 1597 Sir William More, of Loseley, as executor to Sir T. Cawarden, sold to James Burbidge a certain great building with yards and subsidiary structures adjoining, of which the description in the deed of sale leaves no doubt that it was the upper frater and its adjoining buildings of the earlier survey.⁠[40] If any further [262]proof were needed beyond the similarity in description it is found in the fact that the upper frater is the only available building once belonging to Sir Thomas Cawarden that his executor could have sold. The description in the deed is too lengthy and involved to be quoted in full, but it describes a building three storeys high, the top floor being formerly one great room with staircases leading up to it, bounded on the north by the Pipe office and its yard (formerly the kitchen yard). This was the structure that James Burbidge transformed into the celebrated Blackfriars Theatre, and a document recently discovered by Dr. Wallace gives its internal dimensions as 66 ft. by 46 ft.⁠[41] It will be at once seen that the width 46 ft. internal agrees admirably with the external width of the upper frater, 52 ft., allowing some 3 ft. for each side wall. The difference in length is accounted for by the fact that Burbidge did not make use of the whole building, but divided off the northern part into ante-rooms and apartments for the children of the chapel, &c., leaving 66 ft. out of 107 ft. for the theatre itself.⁠[42]

[40] Printed in full in Halliwell-Phillipps’s Outlines of the Life of Shakespeare , Vol. II., p. 299.

[41] Dr. Wallace, The Children of the Chapel at Blackfriars , p. 39.

[42] A drawing in the Gardner Collection, supposed to represent the front of the theatre, is reproduced in G. P. Baker’s The Development of Shakespeare as a Dramatist . It indicates a classic building with an open colonnaded portico, but the ascription is doubtful.

“With regard to the monastic use of this building it was obviously not the common frater of the friars, which here flanked the cloister. There is, however, one mediæval building, of the existence of which there is documentary evidence—‘the Parliament Chamber’—which in all probability is the structure in question. It was the great apartment used for the sittings of two parliaments of Henry VIII., and which also witnessed the trial for the divorce of Catherine of Arragon and Henry VIII. before Cardinals Campeggio and Wolsey.

“The writ of summons for this trial describes it as the ‘Parliament Chamber near the Friars Preachers.’ The fact that this name is used is sufficient proof that the great frater [263]of the priory is not referred to, while the term ‘near’ implies that it was not one of the main block of the priory buildings grouped round the cloister, but lay somewhere within the precinct.

“The upper frater will be found to satisfy all the conditions required. It was the largest hall in the precinct, and a large apartment would be essential both for the ceremonial of the trial and for the sittings of Parliament. Secondly, it was situated on the outskirts of the priory buildings, suiting admirably the description. Thirdly, there is no record of the existence of any other hall of sufficient dimensions in a similar situation; and lastly, the small structure adjoining it was called the Duchy chamber, which argues an official use at some time of these apartments.

“All things considered, then, there is every likelihood of the identity of the ‘Parliament Chamber’ with the house called the upper frater and the Blackfriars Theatre of later times, and we may conclude that when Shakespeare’s Henry VIII. was played at Blackfriars the celebrated trial scene was acted within the actual walls that witnessed the real drama that ruined the fortunes of the great cardinal and put an unhappy termination to Queen Catherine’s married life.”

WHITEFRIARS, LONDON.

The London house of the Carmelites or the White Friars lay between Fleet Street and the River Thames, their precinct being bounded on the west by the Inner Temple—the present houses of King’s Bench Walk—and on the east, roughly by the present Whitefriars Street. Bouverie Street runs across the nave of their Church and traverses the site of the west walk of the cloister.

Fig. 106.—WHITEFRIARS, LONDON.

Plan by

A. W. Clapham.

Although little has been hitherto known concerning the buildings, it is possible, with the assistance of a plan of seventeenth century date, of documentary evidence of the period of the Suppression, and of the evidence of remains [265]discovered on the site, to present a very fair idea of the general arrangements of the Priory of Our Lady of Mount Carmel before its destruction.

The house of the White Friars in London was founded by Sir Ralph Gray in 1241, and Stow tells us that in the fourteenth century their Church was rebuilt by Hugh Courtenay, Earl of Devon, whose house adjoined the precinct. Various additions were made to their property about this time. Courtenay was succeeded as patron by Sir Robert Knolles, and the choir, presbytery, and steeple were rebuilt by Robert Marshall, Bishop of Hereford, in 1404–16. The precinct was extended to the Thames by the year 1396.

The position of the cloister is accurately shown on the seventeenth century plan already referred to. The Church lay to the north of it, and the north-east angle of the nave was discovered incorporated in some old buildings in Bouverie Street. It was a massive structure of fourteenth or fifteenth century date, built of chalk and ragstone with quoins of Godstone stone. The wall returned at right angles at the east end of the yard at the back of the house, and apparently continued westward right under Bouverie Street, the south having been the internal face. Within the angle was a vault containing the remains perhaps of Sir John Paston, who in his will, dated 1477, bequeaths “my body if I die in the city of London [to the church] of our Lady in the White Friars there, at the north-east corner of the body of the Church, and there to be made an oratory ... to the value of xx ls.”

The height of the wall makes it almost certain that the aisle was lighted by lofty windows similar to those to be seen at Austin Friars, and that the clerestory was omitted, as indeed is distinctly shown on Wyngaerde’s view of London. If this were so, it would have been necessary to leave an open court between the cloister and the Church to light the south aisle precisely as was done at the Grey Friars. The nave would thus be some 80 ft. wide and apparently some 150 ft. or 9 bays long.

[266]

From the list of burials and other sources we learn that there was the usual “walk between the choir and the church,” or passage way beneath the steeple. The fifteenth century choir was almost certainly aisleless, and to the south of it, separated by an open space, was the “old quire” of Sir Ralph Gray’s thirteenth century building, which had been left standing while the new church was in process of construction.

From particulars of the grants made at the Dissolution, and with the help of the sixteenth century plan in the Print Room of the British Museum, it is possible to extract the following information. The cloister measured 97 ft. 6 in. from east to west and 91 ft. from north to south, including the walks which were built over in accordance with the general practice of the friars. The eastern range held the dorter on the first floor and the southern range the frater, while the western buildings perhaps contained the library (which is mentioned in connection with the cloister), since the Guest Hall must almost certainly be assigned to a long building shown on the plan extending westwards from this side parallel with the nave of the Church. The Chapter House was built out from the eastern range, and south of it was the prior’s lodging, probably on the spot where still lies a small vaulted crypt beneath the pavement of Britton’s Court—the sole remaining relic of the Carmelite Priory. This vault, some 12 ft. 6 in. square, has a small door at the north end of the west wall, and is of a curious domed form with diagonal and intermediate ribs meeting at a carved boss in the centre, which apparently represents a full-length figure within a large Tudor rose.

Beyond this our information is uncertain; it is impossible to locate the infirmary, and such names as “the Court Place,” “the Brewhouse,” and the “Mill House” can only be approximately referred to any given locality. It is to be feared that little further information is likely to come to light unless some extensive rebuilding takes place upon the site. With the means at our disposal, however, the main [267]buildings have been identified, although the little vaulted cellar under the prior’s house and the nameless grave in the nave now filled with concrete are the only existing relics of the great convent that stood for three hundred years upon the Strand of the Thames between Temple Garden and St. Bride’s Church.

—A. W. C.


QUEENBOROUGH
CASTLE


[270]

Fig. 107.—QUEENBOROUGH CASTLE.

From a Drawing by

Hollar.


[271]

XVI.
QUEENBOROUGH CASTLE AND ITS BUILDER, WILLIAM OF WYKEHAM.

The existing architectural works of William of Wykeham are sufficient, both in extent and magnificence, to place him in the foremost rank amongst the great building prelates of the Middle Ages. His own cathedral of Winchester bears ample marks of his munificence, but the twin educational establishments of Winchester and New Colleges are perhaps a finer monument of the foresight that warned him that the days of monasticism were numbered, and that the founding of a college was a more enduring work than the rearing of a minster.

The precise amount of personal control and guidance exercised by the building prelates over the works that they initiated must always remain a moot point, and modern criticism seems inclined to divest them of all credit save that of patrons of the arts. Nevertheless, it is nowise inconsistent with the extraordinary versatility of the mediæval mind that the great statesman and ecclesiastic should also be an adept at architecture, and this is more than likely in the case of William of Wykeham, whose earlier years were spent in supervising the Royal works.

Born in 1324, he became surveyor, at the age of thirty-two, to the works at Henley and Easthampstead (a Royal hunting-box on the skirts of Windsor Park), and later was entrusted with the more important operations at Windsor Castle. Alterations to Leedes (Kent), Dover, and Hadleigh castles came in turn under his care, and in 1361–7 he superintended the building of the entirely new castle of Queenborough.

In those days prolonged and valued service to the Crown was commonly rewarded by ecclesiastical preferment, a form of recompense agreeable alike to both parties; for, [272]while it cost the donor nothing, it provided a lucrative sinecure for the recipient. Thus Wykeham became a noted pluralist, holding as many as a dozen prebends, besides numerous other offices. He was for some years Dean of St. Martin-le-Grand in London, and in 1366 became Bishop of Winchester, a position he occupied for nearly forty years.

His ecclesiastical works at Winchester and Oxford have long received their due meed of admiration, and it is not with them that we are now concerned, but rather with the remarkable castle of Queenborough, the erection of which he supervised.

Fig. 108.—QUEENBOROUGH CASTLE.

Plan from the

Hatfield MSS.

The Island of Sheppey, on which it stood, is a dreary tract of country, separated by a sluggish waterway from the mainland of Kent, and rising on the north side in the low hills of Minster. Since the destruction of the castle, its sole claims to architectural interest are centred in the priory church of Minster and the fine parish church at Eastchurch. The Castle of Queenborough, of which only the earthworks now remain, was begun by Edward III. about the year 1361, and took about six years to build; but from that time little is heard of it till it entered into the extensive schemes of Henry VIII. for the defences of the southern coast, when the building was repaired and brought up to date. On the triumph of the Parliament, Queenborough, in 1650, was surveyed by their orders, with the other Crown lands, with a view to its sale. In this survey it is described as “lying within the common belonging to the town of Queenborough and containing about twelve rooms of one range of building below stairs, and about forty rooms from the first storey upward, being circular and built of stone with six towers and certain out-offices, all the roof being covered with lead. Within the circumference of the castle was one little round court paved with stone, and in the middle one great well, and without the castle was one great court surrounding it, both court and castle being surrounded with a great stone wall, and the outside of that moated round.” The [274]Commissioners speak of it somewhat contemptuously as having been built in the time of bows and arrows, and it was almost immediately sold and pulled down. Fortunately a careful ground plan, here reproduced, is preserved amongst the Hatfield papers, and a drawing by Hollar taken shortly before its demolition gives some indication of the remarkable form and unusual appearance it formerly presented.

In the history of English military architecture the Castle of Queenborough occupies an isolated position. It was almost the earliest example of the fort, in the modern sense, as opposed to the fortified dwelling-house, and was the immediate precursor of the “castles,” so called, of Henry VIII. Castle-building under Edward I., as exemplified in the great structures reared by that sovereign in Wales, is but little altered in general form from the larger fortifications of the Norman and Angevin kings, the rectangular keep and mound, however, being abandoned. Conway, Carnarvon, and Beaumaris are familiar examples of this period, which was followed by a rapid transition. The tendency became all for compactness and centralisation, the result being a great square block, with towers at the angles and a central courtyard. Numerous buildings of this class, such as Bolton-in-Wensleydale, Wressle, and Sheriff Hutton, were erected towards the close of the fourteenth century, and form almost the latest type of domestic combined with genuine military architecture which this country produced. Queenborough, as we have said, stands quite apart from either class. It provides no domestic accommodation worthy of the name, and its fifty-odd rooms, while imposing in number, were insignificant in size, being placed one above the other in the six lofty circular towers that surrounded the central courtyard. The perfect symmetry of the design is another unusual feature, in which the value of the circular plan, in the defensive warfare of those days, is fully appreciated.

The building which approaches it most nearly in form is the castle of Camber, built by Henry VIII. nearly two [275]hundred years later, in the flat saltmarsh on the seaward side of Rye. Here, however, we have a circular keep in the centre, and the flanking towers are transferred to the perimeter of the polygonal outer curtain; and, furthermore, the danger of lofty towers in the face of artillery has reduced the whole structure to a low, squat form, far different from the aspiring turrets of Queenborough.

Attempts have been made, notably in the Winchester volume of the Archæological Journal , to recover the plan of Queenborough, but the drawing here reproduced for the first time sets at rest all question as to its form, and provides another interesting landmark in the history of architectural development.

—A. W. C.

(Triangle shaped decorative design with leaves and vines)

INDEX.


PRINTED BY VACHER AND SONS, LTD. WESTMINSTER HOUSE LONDON, S.W.


TRANSCRIBER’S NOTE

Illustrations in this eBook have been positioned between paragraphs and outside quotations.

Illustrations without captions have had a description added, this is denoted with parentheses.

The index was not checked for proper alphabetization or correct page references.

Some hyphens in words have been silently removed, some added, when a predominant preference was found in the original book.

Obvious typographical errors and punctuation errors have been corrected after careful comparison with other occurrences within the text and consultation of external sources.

Except for those changes noted below, all misspellings in the text, and inconsistent or archaic usage, have been retained.

Pg vi: ‘Archælogia’ replaced with ‘Archæologia’
xi: ‘Beamesley’ replaced with ‘Beamsley’
200: ‘Souvaigne’ replaced with ‘Souvraigne’
258: ‘Ingoldsthorp’ replaced with ‘Ingoldsthorpe’